Eladó Ház- házrész
Hirdetéskód: 9122281
Füredi Kapu (DunaHouse)
Ez a hirdetés megfelelhet a FIX 3%-os programnak.
Tudj meg többet a részletekről itt.
190.00 m2
ALAPTERÜLET4
SZOBASZÁMnincs megadva
ÉPÍTÉSnincs megadva
FŰTÉS- CSOK igénybe vehető nem
- Tetőtér beépíthető nem
- Építés éve 2025
- Klíma nem
- Szigetelt nem
A+++
A++
A+
A
B
C
D
E
F
G
H
I
Az ingatlan leírása
ÚJÉVI AJÁNDÉK ! A TELJES TERÜLET KÖRBE KERÍTÉSE 2 M-ES BETON KERÍTÉSSEL AZ UTCA FRONTON EGYEDI IGÉNYEKHEZ IGAZODÓ KIVITELEZÉS ! A BELSŐ ELOSZTÁSNÁL +1 FÜRDŐSZOBA KIALAKÍTÁSA ! AZ ÁR TARTALMAZZA A MUNKÁLATOK KÖLTSÉGÉT.!
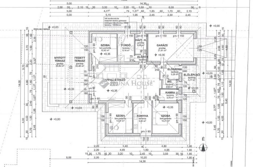
Debrecen - NI Hungary Kft közelében, Kishegyesi útból nyíló csendes utcában nappali+3 szobás új építésű családi ház ELADÓ!A családi ház földszintes, mely magában foglal egy központi teret, ahová elhelyezésre kerül tágas nappali és étkező, melyhez közvetlenül csatlakozik a konyha. A nappaliból közvetlen kijárási lehetőség van a fedett és abból a nyitott teraszra.Jellemző az épületre a szobák tagoltsága, ennek megfelelően a nappali a központi traktusban, a hálószobák az épület hátsó és az oldalsó traktusában vannak kialakítva.Az utcafront felőli épületrészben lett elhelyezve az épület részét képező garázs, melyet az előszobából is meg lehet közelíteni.Fűtés és meleg víz ellátás kondenzációs gázkazánról lesz biztosítva. A hűtést a nappaliban és a 3 db hálószobában hőszivattyús inverteres MULTI SPLIT berendezés biztosítja. A berendezések a hűtés mellett a fűtés funkciót is ellátják.A meghirdetett ár kulcsra kész állapotra vonatkozik.- teljes építési folyamat az alaptól a tetőig, fő és válasz falak megépítését a héjazat elkészítését- az épület körül 1 m szélességben járda burkolat- az épület gépészeti, villanyszerelési vezetékek kiépítése, fűtés rendszerhez kapcsolódó radiátorok, padlófűtés és a kazán elhelyezése- homlokzati szigetelés és nemes vakolat készítése, belső falak vakolása fehér festése.- meleg és hideg burkolatokat- szanitereket- villanykapcsolókat és lámpatesteket- belső ajtókatAz építkezés várható befejezés 2025. 12. hónap.Bővebb információért forduljon hozzám bizalommal!
Debrecen - NI Hungary Kft közelében, Kishegyesi útból nyíló csendes utcában nappali+3 szobás új építésű családi ház ELADÓ!A családi ház földszintes, mely magában foglal egy központi teret, ahová elhelyezésre kerül tágas nappali és étkező, melyhez közvetlenül csatlakozik a konyha. A nappaliból közvetlen kijárási lehetőség van a fedett és abból a nyitott teraszra.Jellemző az épületre a szobák tagoltsága, ennek megfelelően a nappali a központi traktusban, a hálószobák az épület hátsó és az oldalsó traktusában vannak kialakítva.Az utcafront felőli épületrészben lett elhelyezve az épület részét képező garázs, melyet az előszobából is meg lehet közelíteni.Fűtés és meleg víz ellátás kondenzációs gázkazánról lesz biztosítva. A hűtést a nappaliban és a 3 db hálószobában hőszivattyús inverteres MULTI SPLIT berendezés biztosítja. A berendezések a hűtés mellett a fűtés funkciót is ellátják.A meghirdetett ár kulcsra kész állapotra vonatkozik.- teljes építési folyamat az alaptól a tetőig, fő és válasz falak megépítését a héjazat elkészítését- az épület körül 1 m szélességben járda burkolat- az épület gépészeti, villanyszerelési vezetékek kiépítése, fűtés rendszerhez kapcsolódó radiátorok, padlófűtés és a kazán elhelyezése- homlokzati szigetelés és nemes vakolat készítése, belső falak vakolása fehér festése.- meleg és hideg burkolatokat- szanitereket- villanykapcsolókat és lámpatesteket- belső ajtókatAz építkezés várható befejezés 2025. 12. hónap.Bővebb információért forduljon hozzám bizalommal!