Eladó Ház- házrész
Hirdetéskód: 9258805

Balogh Attila

Felújításhoz személyi kölcsönt keres? Kalkuláljon itt! →
FIX 3% Program

Ez a hirdetés megfelelhet a FIX 3%-os programnak.
Tudj meg többet a részletekről itt.

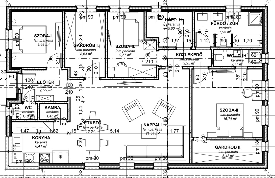
100.00 m2
ALAPTERÜLET
3
SZOBASZÁM
Könnyű szerkezetes
ÉPÍTÉS
Elektromos
FŰTÉS
  • CSOK igénybe vehető igen
  • Belső szintek 1
  • Tetőtér beépíthető nem
  • Kilátás Kertre néző
  • Tájolás Délnyugat
  • Ingatlan komfort Összkomfortos
  • Parkolási lehetőség Udvari beálló
  • Építés éve 2026
  • Fűtés Elektromos
  • Építőanyag Könnyű szerkezetes
  • Klíma igen
  • Szigetelt igen
  • Bútorozott nem
  • Akadálymentesített igen
  • Víz telken belül
  • Csatorna telken belül
  • Gáz utcában
  • Villany telken belül

Energetikai besorolás: A+

A+++
A++
A+
A
B
C
D
E
F
G
H
I

Az MBH Bank személyi kölcsön ajánlata

Fizetett hirdetés
1 millió Ft
6 évre
20 585 Ft/hó
THM: 14.5%
Részletek →
2 millió Ft
6 évre
41 169 Ft/hó
THM: 14.5%
Részletek →
3 millió Ft
6 évre
61 754 Ft/hó
THM: 14.5%
Részletek →

A tájékoztatás nem teljes körű és nem minősül ajánlattételnek.

Az ingatlan leírása

Modern, fém-könnyűszerkezetes technológiával épült, kiváló energetikai teljesítményű családi ház várja új tulajdonosát. A szabadon álló ingatlan bruttó 100 négyzetméteres alapterületű, A+ besorolású, és klímaberendezéssel van felszerelve a kényelmes fűtés és hűtés érdekében.


A ház kialakítása egy nappaliból, egy amerikai konyhából, kamrából, három hálószobából, egy fürdőszobából (kád/zuhany és két WC-vel) és egy külön WC/mosóhelyiségből áll.


Az ingatlan korszerű műszaki megoldásokkal készült. Az alapozás beton síkalapból, zsalukő lábazatból és szerelőbetonból készült, bitumenes szigetelő lemezzel és XPS szigeteléssel. A falazat egyedi acélvázon nyugszik, 10 centiméteres szendvicspanelből, 5 centiméteres PS szigetelésből és nemesvakolatból áll, belül gipszkarton burkolattal. A mennyezet gipszkarton, párazáró fóliával és kőzetgyapot hőszigeteléssel. A tető vasszerkezetű, cserepes lemezfedéssel, speciális filc bevonattal és páraáteresztő fóliával. A nyílászárók 3 rétegű, 7 légkamrás, argon gázzal töltött műanyag kivitelűek.


A ház gépészeti felszereltségéhez tartozik két, egyenként 3.5 kW-os Gree légkondicionáló, egy villanybojler a melegvíz-termelésre, míg gázvezeték nincs kiépítve. Az elektromos kialakítás korszerű: a helyiségekben 4-6 konnektor, kapcsolók és mennyezeti világítás található.


A burkolatokra keretösszegek állnak rendelkezésre. A vevő kiválaszthatja a kívánt szanitert, járólapot, csempét, laminált padlót vagy teraszburkolatot a megadott keretek között (pl. szaniter 200.000 Ft-ig, járólap 350.000 Ft-ig), és ezek beszerzése, szállítása és beépítése már az árban foglalt.


Számos feláras kiegészítő és extra elérhető, mint például hangulat-LED világítás, spotlámpák, garázsépítés, járda- és kerítéskészítés, teljes bebútorozás, udvarrendezés, medence, vagy akár rejtett hűtés-fűtés rendszer.


Bővebb információért kérjük, vegye fel velünk a kapcsolatot telefonon. Szolgáltatásaink között szerepel ingyenes, bankfüggetlen hitelközvetítés, értékbecslés, energetikai tanúsítvány kiállítása és jogi háttérmunka is, hogy ingatlanvásárlása zökkenőmentes legyen.

Térkép

Ingatlan adásvétel ügyvédi díja
279 000 Ft
a hirdetésben szereplő ár alapján
  • A vételár 0,45%-a
  • Szerződéscsomag teljeskörű képviselettel
  • Ingyenes tulajdoni lap ellenőrzés
  • Az ÁFA-t már tartalmazza
Érdekel az ajánlat →
A tájékoztatás nem teljes körű és nem minősül ajánlattételnek. Minimum díj: 150 000 Ft, maximum díj: 600 000 Ft. A díj kizárólag lakóingatlan adásvételére vonatkozik.

A hirdető elérhetősége

Teleingatlanportál

Balogh Attila
+36 30 953