Eladó Ház- házrész
Hirdetéskód: 9306889
Kulcs-Pont Ingatlan Kft.
Felújításhoz személyi kölcsönt keres? Kalkuláljon itt! →
Ez a hirdetés megfelelhet a FIX 3%-os programnak.
Tudj meg többet a részletekről itt.
116.00 m2
ALAPTERÜLET5
SZOBASZÁMnincs megadva
ÉPÍTÉSEgyéb fűtés
FŰTÉS- CSOK igénybe vehető nem
- Tetőtér beépíthető nem
- Építés éve 2026
- Fűtés Egyéb fűtés
- Klíma nem
- Szigetelt nem
A+++
A++
A+
A
B
C
D
E
F
G
H
I
Az ingatlan leírása
Dányban eladó, újépítésű, 4 szoba + nappalis, önálló családi ház, dupla fürdőszobával, hőszivattyús fűtéssel, 966 nm-es telekkel!
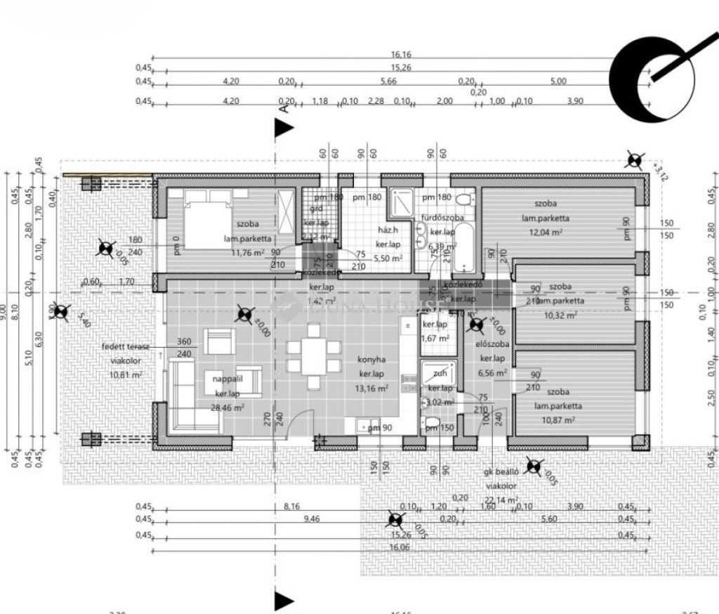
Belső nettó hasznos élhető tér 116.39 nm! + fedett terasz 10.81 nm
Telek területe 966 m2, 17 méter széles és 56 méter hosszú.
Várható átadás : 2026.10 hó10 % önerővel szerződhető!
Helyiségeit tekintve nagyon jó elosztással rendelkezik, alábbiakban sorolom fel négyzetméterek megjelölésével:
- előszoba (6.56 nm)
- 4 önálló bejáratú szoba (11.76 nm, 12.04 nm, 10.32 nm, 10.87 nm)
- teraszkapcsolatos nagy nappali étkezővel, konyhával (41.62 nm)
- közlekedő (4.52 nm)
- háztartási helyiség (5.50 nm)
- fürdőszoba + wc (6.39 nm)
- zuhanyzó + wc (3.02 nm)
- kamra (1.67 nm)
- gardrób (2.12 nm)
Műszaki leírás:
- hőszivattyús fűtés, padlófűtéssel
- klíma a nappaliban
- burkolat 6000 ft / nm (hideg, meleg)
- 15 cm homlokzati hőszigetelés
- 10 cm lábazati hőszigetelés
- 30 cm üveggyapot tető hőszigetelés
- nyílászárók: típus műanyag szerkezetek, 3 rtg.hőszig.üveggel
- festés: belsőben páraáteresztő falfestékkel, színezve igény szerint
- csaptelepek 15 000 ft / db
- beltéri ajtók 60 000 ft / db
- alföldi márkájú szaniterek választhatóak
Dány egy csendes, barátságos település Pest vármegyében, a Gödöllői-dombság lankái között. A község ideális választás mindazok számára, akik nyugodt, vidéki környezetben szeretnének élni, ugyanakkor fontos számukra a főváros közelsége Budapest autóval körülbelül 40-50 perc alatt elérhető.
A település rendezett, folyamatosan fejlődő infrastruktúrával rendelkezik: megtalálható óvoda, iskola, orvosi rendelő, valamint alapvető kereskedelmi és szolgáltató egységek.
A közösségi élet aktív, a helyi rendezvények és hagyományőrző programok erősítik az összetartó lakóközösséget.
Dány különösen vonzó lehet családok számára, hiszen a nyugodt környezet, a tiszta levegő és a zöldterületek kiváló életminőséget biztosítanak. A természet közelsége kirándulási és kikapcsolódási lehetőségeket kínál, miközben a mindennapi élethez szükséges szolgáltatások könnyen elérhetők.
Összességében Dány ideális választás azoknak, akik a város zajától távol, mégis jól megközelíthető helyen keresnek otthont.Amennyiben felkeltettem érdeklődésed keress nyugodtan, és gyere, nézd meg velem az ingatlant!
Hitel ügyintézés, eladás és vétel teljes körű ügyintézése, ingyenes tanácsadás, értékbecslés, megbízható ügyvédi háttér biztosítása.
Belső nettó hasznos élhető tér 116.39 nm! + fedett terasz 10.81 nm
Telek területe 966 m2, 17 méter széles és 56 méter hosszú.
Várható átadás : 2026.10 hó10 % önerővel szerződhető!
Helyiségeit tekintve nagyon jó elosztással rendelkezik, alábbiakban sorolom fel négyzetméterek megjelölésével:
- előszoba (6.56 nm)
- 4 önálló bejáratú szoba (11.76 nm, 12.04 nm, 10.32 nm, 10.87 nm)
- teraszkapcsolatos nagy nappali étkezővel, konyhával (41.62 nm)
- közlekedő (4.52 nm)
- háztartási helyiség (5.50 nm)
- fürdőszoba + wc (6.39 nm)
- zuhanyzó + wc (3.02 nm)
- kamra (1.67 nm)
- gardrób (2.12 nm)
Műszaki leírás:
- hőszivattyús fűtés, padlófűtéssel
- klíma a nappaliban
- burkolat 6000 ft / nm (hideg, meleg)
- 15 cm homlokzati hőszigetelés
- 10 cm lábazati hőszigetelés
- 30 cm üveggyapot tető hőszigetelés
- nyílászárók: típus műanyag szerkezetek, 3 rtg.hőszig.üveggel
- festés: belsőben páraáteresztő falfestékkel, színezve igény szerint
- csaptelepek 15 000 ft / db
- beltéri ajtók 60 000 ft / db
- alföldi márkájú szaniterek választhatóak
Dány egy csendes, barátságos település Pest vármegyében, a Gödöllői-dombság lankái között. A község ideális választás mindazok számára, akik nyugodt, vidéki környezetben szeretnének élni, ugyanakkor fontos számukra a főváros közelsége Budapest autóval körülbelül 40-50 perc alatt elérhető.
A település rendezett, folyamatosan fejlődő infrastruktúrával rendelkezik: megtalálható óvoda, iskola, orvosi rendelő, valamint alapvető kereskedelmi és szolgáltató egységek.
A közösségi élet aktív, a helyi rendezvények és hagyományőrző programok erősítik az összetartó lakóközösséget.
Dány különösen vonzó lehet családok számára, hiszen a nyugodt környezet, a tiszta levegő és a zöldterületek kiváló életminőséget biztosítanak. A természet közelsége kirándulási és kikapcsolódási lehetőségeket kínál, miközben a mindennapi élethez szükséges szolgáltatások könnyen elérhetők.
Összességében Dány ideális választás azoknak, akik a város zajától távol, mégis jól megközelíthető helyen keresnek otthont.Amennyiben felkeltettem érdeklődésed keress nyugodtan, és gyere, nézd meg velem az ingatlant!
Hitel ügyintézés, eladás és vétel teljes körű ügyintézése, ingyenes tanácsadás, értékbecslés, megbízható ügyvédi háttér biztosítása.