Eladó Ház- házrész
Hirdetéskód: 9162685
Dintrada kft.
Ez a hirdetés megfelelhet a FIX 3%-os programnak.
Tudj meg többet a részletekről itt.
123 m2
ALAPTERÜLET4
SZOBASZÁMnincs megadva
ÉPÍTÉSEgyéb fűtés
FŰTÉS- CSOK igénybe vehető nem
- Belső szintek 1
- Tetőtér beépíthető nem
- Építés éve 2026
- Fűtés Egyéb fűtés
- Klíma nem
- Szigetelt nem
A+++
A++
A+
A
B
C
D
E
F
G
H
I
Az ingatlan leírása
Új építésű önálló családi ház Csörög településen a Munkácsi Mihály utcában.
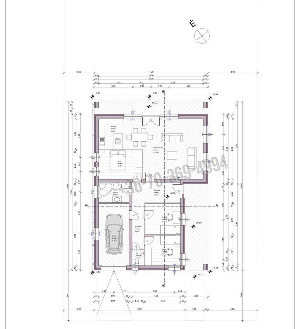
A tervezési koncepció szerint az épületben elhelyezkedő helyiségek:
Konyha parketta 7,03 m2
Nappali-étkező parketta 41,91 m2
Fürdő kerámia 5,99 m2
Szoba parketta 12,49 m2
Szoba parketta 10,57 m2
Szoba parketta 10,57 m2
WC kerámia 1,48 m2
Közlekedő kerámia 5,44 m2
Előszoba kerámia 9,70 m2
Lakás összesen: 105,18 m2
Garázs 18,46 m2
Fedett első terasz
123,64 m2
Fedett hátsó terasz kerámia 19,29 m2 és 13,58 m2
Tervezési koncepció szerint a telekre egy új építésű földszintes lakóház épül. Az
építési övezet szabadon álló, az épület 3 m-es oldalkerttel, 5 m előkerttel épül.
A lakóház az övezeti előírásoknak megfelelően egy lakást foglal magába. Az épület személy- és garázs bejárata egyaránt a Munkácsy utcáról nyílik. A
családi ház 1 állásos garázst foglal magában.
Tervezett fűtési rendszer az épületben levegő-víz hőszivattyús rendszer, hőleadás padlófűtésen keresztül történik.
Csörög település infrastrukturálisan kifejezetten jó ellátott. Az ingatlantól pár perc sétával a vasút-autóbusz-állomáson lehetünk, onnan Vácra vagy Budapest irányába is eljuthatunk. A település mellett halad az M2 autóút, mely 2x2 sávosra bővült, így megrövidítve a Budapestre valóbejutást.Az ingatlan településen belüli elhelyezkedése kifejezetten ideális,néhány perces sétával orvosi rendelő, óvoda, bevásárlási lehetőség, posta és játszótér is elérhető. A közeljövőben egy nagyobb minden igényt kielégítő szupermarket épül a településen, mely kiszolgáló kereskedelmi egységekkel bővül, mintpéldául gyógyszertárral.
A településen több utca aszfaltos útburkolatot kapott, ily módon is megkönnyítve a közlekedést, illetve számos kulturális-fesztivál eseménynek is otthont ad. Jöjjön, fedezze fel a házban rejlő lehetőségeket.
További információért várom hívását a hét bármely napján.
További információért várom hívását a hét bármely napján.
A tervezési koncepció szerint az épületben elhelyezkedő helyiségek:
Konyha parketta 7,03 m2
Nappali-étkező parketta 41,91 m2
Fürdő kerámia 5,99 m2
Szoba parketta 12,49 m2
Szoba parketta 10,57 m2
Szoba parketta 10,57 m2
WC kerámia 1,48 m2
Közlekedő kerámia 5,44 m2
Előszoba kerámia 9,70 m2
Lakás összesen: 105,18 m2
Garázs 18,46 m2
Fedett első terasz
123,64 m2
Fedett hátsó terasz kerámia 19,29 m2 és 13,58 m2
Tervezési koncepció szerint a telekre egy új építésű földszintes lakóház épül. Az
építési övezet szabadon álló, az épület 3 m-es oldalkerttel, 5 m előkerttel épül.
A lakóház az övezeti előírásoknak megfelelően egy lakást foglal magába. Az épület személy- és garázs bejárata egyaránt a Munkácsy utcáról nyílik. A
családi ház 1 állásos garázst foglal magában.
Tervezett fűtési rendszer az épületben levegő-víz hőszivattyús rendszer, hőleadás padlófűtésen keresztül történik.
Csörög település infrastrukturálisan kifejezetten jó ellátott. Az ingatlantól pár perc sétával a vasút-autóbusz-állomáson lehetünk, onnan Vácra vagy Budapest irányába is eljuthatunk. A település mellett halad az M2 autóút, mely 2x2 sávosra bővült, így megrövidítve a Budapestre valóbejutást.Az ingatlan településen belüli elhelyezkedése kifejezetten ideális,néhány perces sétával orvosi rendelő, óvoda, bevásárlási lehetőség, posta és játszótér is elérhető. A közeljövőben egy nagyobb minden igényt kielégítő szupermarket épül a településen, mely kiszolgáló kereskedelmi egységekkel bővül, mintpéldául gyógyszertárral.
A településen több utca aszfaltos útburkolatot kapott, ily módon is megkönnyítve a közlekedést, illetve számos kulturális-fesztivál eseménynek is otthont ad. Jöjjön, fedezze fel a házban rejlő lehetőségeket.
További információért várom hívását a hét bármely napján.
További információért várom hívását a hét bármely napján.