Eladó Ház- házrész
Hirdetéskód: 9185212

Győr Bajcsy-Zsilinszky út 27 - OTP Ingatlanpont Iroda

FIX 3% Program

Ez a hirdetés megfelelhet a FIX 3%-os programnak.
Tudj meg többet a részletekről itt.

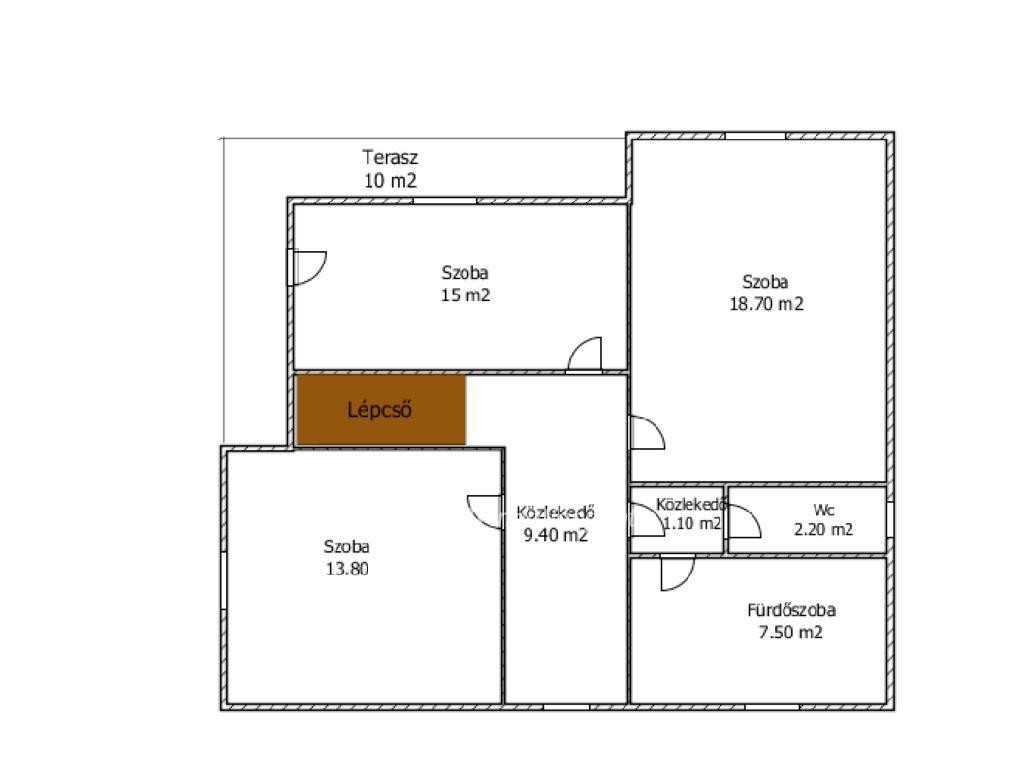
140 m2
ALAPTERÜLET
4
SZOBASZÁM
nincs megadva
ÉPÍTÉS
nincs megadva
FŰTÉS
  • CSOK igénybe vehető nem
  • Tetőtér beépíthető nem
  • Építés éve 1985
  • Klíma nem
  • Szigetelt nem
Energetikai besorolás: Nincs meghatározva
A+++
A++
A+
A
B
C
D
E
F
G
H
I

Az ingatlan leírása

Az ingatlan megfelel az Otthon Start Hitelprogram feltételeinek! Csorna belvárosában keresi új tulajdonosát egy belső kétszintes, jó elosztású, duplakomfortos családi ház. Az ingatlan 140 m2-es, 3 szoba+ nappalis, igény szerint felújítandó állapotú. Az otthon melegét vegyestüzelésű kazán ill. gázkazán biztosítja, radiátoros hőleadással. Az autódat egy fűtött garázsban biztonságban tudhatod. Amennyiben hirdetésem felkeltette az érdeklődését, keressen bizalommal!


Referenciaszám: M314052

Térkép

A hirdető elérhetősége

Győr Bajcsy-Zsilinszky út 27 - OTP Ingatlanpont Iroda

Vörös Brigitta
+36 30 650