Eladó Ház- házrész
Hirdetéskód: 9248183
OTP Ingatlanpont Csongrád
165.00 m2
ALAPTERÜLET6
SZOBASZÁMnincs megadva
ÉPÍTÉSnincs megadva
FŰTÉS- CSOK igénybe vehető nem
- Tetőtér beépíthető nem
- Építés éve 1950
- Klíma nem
- Szigetelt nem
A+++
A++
A+
A
B
C
D
E
F
G
H
I
Az ingatlan leírása
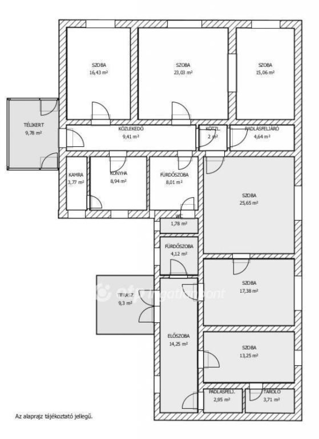
Többféle hasznosítási lehetőséggel kínálunk eladásra Csongrádon a Piroskaváros szívében egy 165m2-es hasznos alapterületű családi házat! Csak az OTP Ingatlanpont kínálatában!
Az ingatlan rendkívül frekventált helyen van, ezért akár üzlethelyiségnek (üzlet, cukrászda, orvosi rendelő, szépségszalon...) is alkalmas.
A 736m2-es telken 2 lakóház található, 3-3 lakószobával. Az egyik lakóház 86m2 hasznos alapterületű, jó szerkezetű tégla épület, jó vízszigeteléssel, amelyben jelenleg 3 szoba, előszoba, konyha, kamra, fürdőszoba került kialakításra. A másik (tégla alapon) vályog lakrész nettó 79m2 alapterületű, amiben szintén 3 szoba, előszoba, fürdő, WC, tároló kapott helyet.
Az ingatlanhoz tartozik egy dupla garázs.
Minden közmű be van vezetve az ingatlanba, a két lakóépület villanyórája külön van, a víz is elkülöníthető, ha szükséges.
Az újabb házrészben mindenhol gázkonvektoros fűtés van, a régebbi házrészben ezt egy cserépkályha egészíti ki. Egy esetleges leválasztás után a régi részben a gáz nem lesz elérhető, de be lehet vezetni.
Ajánlom akár üzleti célra, üzlethelyiségnek, raktárral, vagy 2 generációs családnak, teljesen külön bejárattal, ahol nem lesz közös kertrész, mert az ingatlan adottságainak köszönhetően (jogilag is) leválasztható úgy, hogy külön utcai bejárat legyen.
Amennyiben felkeltettem érdeklődését, hívjon bizalommal!
Az OTP Ingatlanpont teljes körű ügyintézéssel áll az eladók és vevők rendelkezésére. A kínálatunkból választott ingatlan finanszírozásához kedvezményes hitelkonstrukciót biztosítunk. Az OTP Banknál elérhető Otthon Start Hitelprogram, Babaváró, falusi CSOK, CSOK Plusz hitel és egyéb kölcsönök intézését díjmentesen vállaljuk. Az adásvételi szerződés megkötéséhez igény szerint ügyvédet biztosítunk. Irodáink Szentes, Petőfi utca 12. a buszmegálló felől, és Csongrád, Fő utca 54. szám alatt várjuk a személyes érdeklődőket. Válasszuk ki együtt az Önnek legmegfelelőbb ajánlatot banki sorban állás nélkül!
Az ingatlan rendkívül frekventált helyen van, ezért akár üzlethelyiségnek (üzlet, cukrászda, orvosi rendelő, szépségszalon...) is alkalmas.
A 736m2-es telken 2 lakóház található, 3-3 lakószobával. Az egyik lakóház 86m2 hasznos alapterületű, jó szerkezetű tégla épület, jó vízszigeteléssel, amelyben jelenleg 3 szoba, előszoba, konyha, kamra, fürdőszoba került kialakításra. A másik (tégla alapon) vályog lakrész nettó 79m2 alapterületű, amiben szintén 3 szoba, előszoba, fürdő, WC, tároló kapott helyet.
Az ingatlanhoz tartozik egy dupla garázs.
Minden közmű be van vezetve az ingatlanba, a két lakóépület villanyórája külön van, a víz is elkülöníthető, ha szükséges.
Az újabb házrészben mindenhol gázkonvektoros fűtés van, a régebbi házrészben ezt egy cserépkályha egészíti ki. Egy esetleges leválasztás után a régi részben a gáz nem lesz elérhető, de be lehet vezetni.
Ajánlom akár üzleti célra, üzlethelyiségnek, raktárral, vagy 2 generációs családnak, teljesen külön bejárattal, ahol nem lesz közös kertrész, mert az ingatlan adottságainak köszönhetően (jogilag is) leválasztható úgy, hogy külön utcai bejárat legyen.
Amennyiben felkeltettem érdeklődését, hívjon bizalommal!
Az OTP Ingatlanpont teljes körű ügyintézéssel áll az eladók és vevők rendelkezésére. A kínálatunkból választott ingatlan finanszírozásához kedvezményes hitelkonstrukciót biztosítunk. Az OTP Banknál elérhető Otthon Start Hitelprogram, Babaváró, falusi CSOK, CSOK Plusz hitel és egyéb kölcsönök intézését díjmentesen vállaljuk. Az adásvételi szerződés megkötéséhez igény szerint ügyvédet biztosítunk. Irodáink Szentes, Petőfi utca 12. a buszmegálló felől, és Csongrád, Fő utca 54. szám alatt várjuk a személyes érdeklődőket. Válasszuk ki együtt az Önnek legmegfelelőbb ajánlatot banki sorban állás nélkül!