Eladó Ház- házrész
Hirdetéskód: 9247809
OTP Ingatlanpont Csongrád
85.00 m2
ALAPTERÜLET3
SZOBASZÁMnincs megadva
ÉPÍTÉSnincs megadva
FŰTÉS- CSOK igénybe vehető nem
- Tetőtér beépíthető nem
- Építés éve 1950
- Klíma nem
- Szigetelt nem
A+++
A++
A+
A
B
C
D
E
F
G
H
I
Az ingatlan leírása
Jó állapotú kertesház Csongrádon, a Széchenyi út közelében! Kizárólag az OTP Ingatlanpontnál!
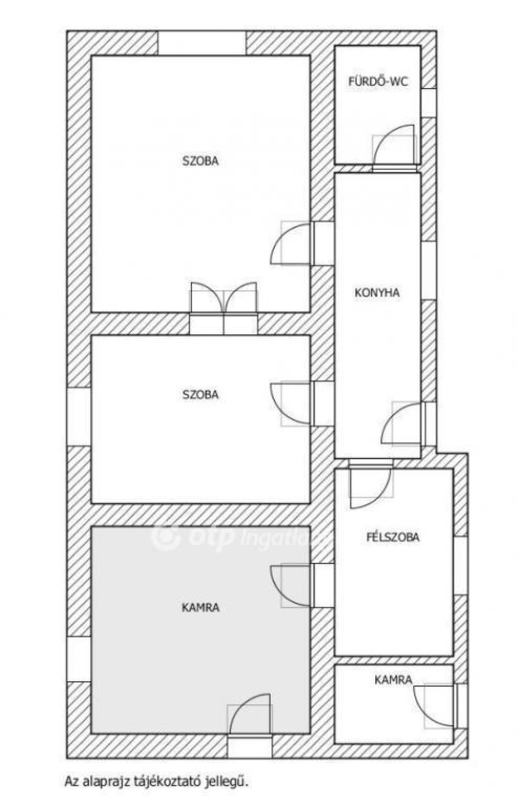
Megvételre kínálok egy 85m2-es hasznos alapterületű, jó szerkezeti állapotú családi házat 300 m2-es telekkel.
A ház vegyes falazatú, cseréptetős, jó szerkezetű, 3 szobás, de a jelenleg kamrának használt 20m2-es helyiség szobává alakítható. Kívül rendezett, szép állapotú, belül felújítást igényel. A villanyvezetékek ki lettek cserélve. A belső felújítást követően egy élhető, kényelmes családi otthon válhat belőle.
A fűtés gázkonvektorokkal és hordozható cserépkályhával van megoldva, minden közmű rendelkezésre áll.
A környék rendezett. A közelben iskola, óvoda, élelmiszerbolt megtalálható.
Az ingatlan tehermentes.
Az OTP Ingatlanpont teljes körű ügyintézéssel áll az eladók és vevők rendelkezésére. A kínálatunkból választott ingatlan finanszírozásához kedvezményes hitelkonstrukciót biztosítunk. Az OTP Banknál elérhető Babaváró, falusi CSOK, CSOK Plusz hitel és egyéb kölcsönök intézését díjmentesen vállaljuk. Az adásvételi szerződés megkötéséhez igény szerint ügyvédet biztosítunk. Irodáink Szentes, Petőfi utca 12. a buszmegálló felől, és Csongrád, Fő utca 54. szám alatt várjuk a személyes érdeklődőket. Válasszuk ki együtt az Önnek legmegfelelőbb ajánlatot banki sorban állás nélkül!
Megvételre kínálok egy 85m2-es hasznos alapterületű, jó szerkezeti állapotú családi házat 300 m2-es telekkel.
A ház vegyes falazatú, cseréptetős, jó szerkezetű, 3 szobás, de a jelenleg kamrának használt 20m2-es helyiség szobává alakítható. Kívül rendezett, szép állapotú, belül felújítást igényel. A villanyvezetékek ki lettek cserélve. A belső felújítást követően egy élhető, kényelmes családi otthon válhat belőle.
A fűtés gázkonvektorokkal és hordozható cserépkályhával van megoldva, minden közmű rendelkezésre áll.
A környék rendezett. A közelben iskola, óvoda, élelmiszerbolt megtalálható.
Az ingatlan tehermentes.
Az OTP Ingatlanpont teljes körű ügyintézéssel áll az eladók és vevők rendelkezésére. A kínálatunkból választott ingatlan finanszírozásához kedvezményes hitelkonstrukciót biztosítunk. Az OTP Banknál elérhető Babaváró, falusi CSOK, CSOK Plusz hitel és egyéb kölcsönök intézését díjmentesen vállaljuk. Az adásvételi szerződés megkötéséhez igény szerint ügyvédet biztosítunk. Irodáink Szentes, Petőfi utca 12. a buszmegálló felől, és Csongrád, Fő utca 54. szám alatt várjuk a személyes érdeklődőket. Válasszuk ki együtt az Önnek legmegfelelőbb ajánlatot banki sorban állás nélkül!