Eladó Ház- házrész
Hirdetéskód: 9247393
OTP Ingatlanpont Csongrád
110.00 m2
ALAPTERÜLET4
SZOBASZÁMnincs megadva
ÉPÍTÉSnincs megadva
FŰTÉS- CSOK igénybe vehető nem
- Tetőtér beépíthető nem
- Építés éve 1950
- Klíma nem
- Szigetelt nem
A+++
A++
A+
A
B
C
D
E
F
G
H
I
Az ingatlan leírása
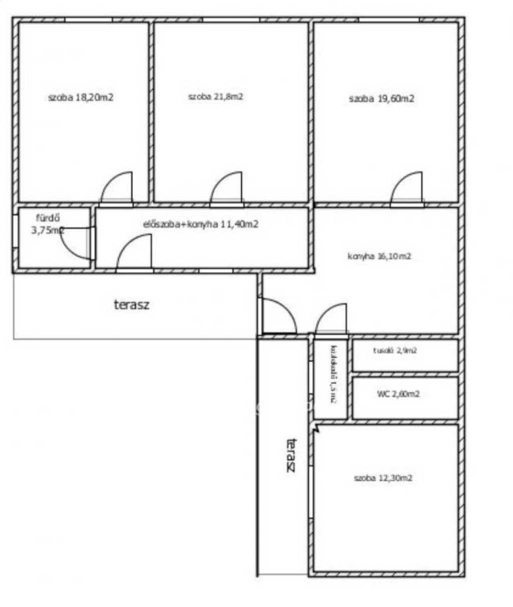
Összeköltözőknek és befektetőknek egyaránt remek lehetőség Csongrád közkedvelt Tisztitelepi részén! Eladó egy teljes körűen felújított, összesen 110 m2-es ingatlan, amely két külön bejáratú, egyenként 55 m2-es lakásból áll. Mindkét lakásban két tágas szoba, világos konyha, modern fürdőszoba és hangulatos, fedett terasz kapott helyet, így akár két generáció együttélésére, akár kiadásra is tökéletes választás.
A felújítás során új, 32A-es villanyhálózat készült, a fűtés gazdaságos gáz-cirkó kazánnal és radiátoros hőleadással működik. A gipszkarton belső falak, a külső 10 cm-es hőszigetelés és a padlásszigetelés kiváló energiahatékonyságot biztosítanak, a magas lábazatnak és a gondosan kialakított szigetelésnek köszönhetően pedig az ingatlan száraz és tartós. A 383 m2-es, könnyen kezelhető telek ideális pihenéshez és kerti partikhoz egyaránt.
Ez az ingatlan ritka lehetőség a környéken: kényelmes, modern, jól szigetelt otthon két külön egységgel, amely egyszerre jelent praktikus családi megoldást és biztos befektetést.
Az OTP Bankcsoport teljes körű ügyintézéssel áll az eladók és a vevők rendelkezésére! A kínálatunkból választott ingatlan finanszírozásához kedvezményes hitel konstrukciókat kínálunk. Az adásvételi szerződés megkötéséhez igény szerint megbízható ügyvédi közreműködést biztosítunk, és segítséget nyújtunk az adásvételhez kapcsolódó ügyek intézéséhez. Akár hétvégén is hívható vagyok! Amennyiben igényli, kérem küldjön sms-t és szívesen visszahívom!
Irodáink Szentes, Petőfi utca 12. A buszmegálló felől, és Csongrád, Fő utca 54. szám alatt várja a személyes érdeklődőket. VÁLASSZUK KI EGYÜTT AZ ÖNNEK LEGMEGFELELŐBB AJÁNLATOT! BANKI SORBAN ÁLLÁS NÉLKÜL!
A felújítás során új, 32A-es villanyhálózat készült, a fűtés gazdaságos gáz-cirkó kazánnal és radiátoros hőleadással működik. A gipszkarton belső falak, a külső 10 cm-es hőszigetelés és a padlásszigetelés kiváló energiahatékonyságot biztosítanak, a magas lábazatnak és a gondosan kialakított szigetelésnek köszönhetően pedig az ingatlan száraz és tartós. A 383 m2-es, könnyen kezelhető telek ideális pihenéshez és kerti partikhoz egyaránt.
Ez az ingatlan ritka lehetőség a környéken: kényelmes, modern, jól szigetelt otthon két külön egységgel, amely egyszerre jelent praktikus családi megoldást és biztos befektetést.
Az OTP Bankcsoport teljes körű ügyintézéssel áll az eladók és a vevők rendelkezésére! A kínálatunkból választott ingatlan finanszírozásához kedvezményes hitel konstrukciókat kínálunk. Az adásvételi szerződés megkötéséhez igény szerint megbízható ügyvédi közreműködést biztosítunk, és segítséget nyújtunk az adásvételhez kapcsolódó ügyek intézéséhez. Akár hétvégén is hívható vagyok! Amennyiben igényli, kérem küldjön sms-t és szívesen visszahívom!
Irodáink Szentes, Petőfi utca 12. A buszmegálló felől, és Csongrád, Fő utca 54. szám alatt várja a személyes érdeklődőket. VÁLASSZUK KI EGYÜTT AZ ÖNNEK LEGMEGFELELŐBB AJÁNLATOT! BANKI SORBAN ÁLLÁS NÉLKÜL!