Eladó Ház- házrész
Hirdetéskód: 9310851
OTP Ingatlanpont Csongrád
Felújításhoz személyi kölcsönt keres? Kalkuláljon itt! →61.00 m2
ALAPTERÜLET2
SZOBASZÁMnincs megadva
ÉPÍTÉSGáz (cirkó)
FŰTÉS- CSOK igénybe vehető nem
- Tetőtér beépíthető nem
- Építés éve 1975
- Fűtés Gáz (cirkó)
- Klíma nem
- Szigetelt nem
A+++
A++
A+
A
B
C
D
E
F
G
H
I
Az ingatlan leírása
Kizárólag az OTP Ingatlanpontnál!
Megvételre kínálok egy kiváló szerkezeti állapotú 2 szobás tégla házat Csongrádon, a Piroskavárosban, a piachoz közel!
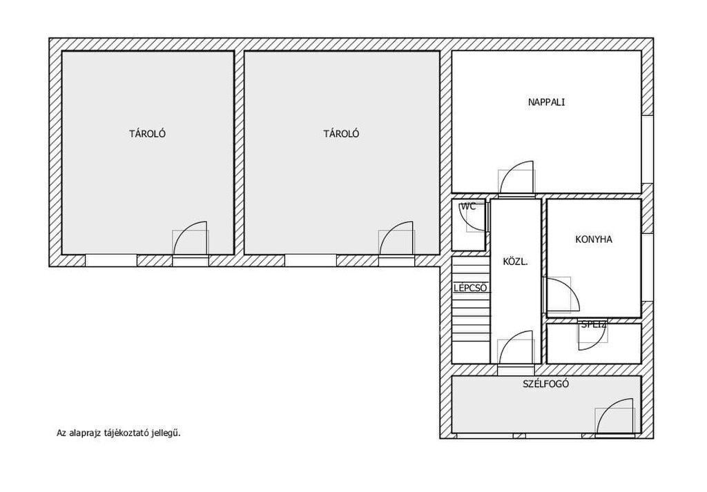
Az 1975-ben épült kétszintes lakóház 61m2 hasznos alapterületű, 2 külön nyíló szobával rendelkezik. A melléképület átalakításával további 2 szoba nyerhető.
Szerkezetileg kitűnő állapotban van, a földszinti szoba parkettás, az emeleti szoba új, laminált padlóval burkolt. A központi fűtést gázkazán szolgálja ki. Az ablakok dupla üvegezésű műanyagra lettek cserélve, redőnnyel felszereltek. A villanyhálózat fel van újítva.
Egy klíma is beszerelésre került, ami a nyári melegben biztosítja a kellemes hőmérsékletet.
A ház mellé két nagy tároló helyiséget magába foglaló melléképület épült, amely összekapcsolható a lakóépülettel, ezáltal további szobák kialakítására van lehetőség.
A 394m2-es telken egy garázs, valamint további tárolók és ólak találhatók.
Az OTP Ingatlanpont teljeskörű ügyintézéssel áll az eladók és vevők rendelkezésére. A kínálatunkból választott ingatlan finanszírozásához kedvezményes hitelkonstrukciót biztosítunk. Az OTP Banknál elérhető Babaváró, Otthon Start Hitel, falusi CSOK, CSOK Plusz hitel és egyéb kölcsönök intézését díjmentesen vállaljuk. Az adásvételi szerződés megkötéséhez igény szerint ügyvédet biztosítunk.Válasszuk ki együtt az Önnek legmegfelelőbb ajánlatot banki sorban állás nélkül!
Megvételre kínálok egy kiváló szerkezeti állapotú 2 szobás tégla házat Csongrádon, a Piroskavárosban, a piachoz közel!
Az 1975-ben épült kétszintes lakóház 61m2 hasznos alapterületű, 2 külön nyíló szobával rendelkezik. A melléképület átalakításával további 2 szoba nyerhető.
Szerkezetileg kitűnő állapotban van, a földszinti szoba parkettás, az emeleti szoba új, laminált padlóval burkolt. A központi fűtést gázkazán szolgálja ki. Az ablakok dupla üvegezésű műanyagra lettek cserélve, redőnnyel felszereltek. A villanyhálózat fel van újítva.
Egy klíma is beszerelésre került, ami a nyári melegben biztosítja a kellemes hőmérsékletet.
A ház mellé két nagy tároló helyiséget magába foglaló melléképület épült, amely összekapcsolható a lakóépülettel, ezáltal további szobák kialakítására van lehetőség.
A 394m2-es telken egy garázs, valamint további tárolók és ólak találhatók.
Az OTP Ingatlanpont teljeskörű ügyintézéssel áll az eladók és vevők rendelkezésére. A kínálatunkból választott ingatlan finanszírozásához kedvezményes hitelkonstrukciót biztosítunk. Az OTP Banknál elérhető Babaváró, Otthon Start Hitel, falusi CSOK, CSOK Plusz hitel és egyéb kölcsönök intézését díjmentesen vállaljuk. Az adásvételi szerződés megkötéséhez igény szerint ügyvédet biztosítunk.Válasszuk ki együtt az Önnek legmegfelelőbb ajánlatot banki sorban állás nélkül!