Eladó Ház- házrész
Hirdetéskód: 9313782
OTP Ingatlanpont Csongrád
Felújításhoz személyi kölcsönt keres? Kalkuláljon itt! →103.00 m2
ALAPTERÜLET2
SZOBASZÁMnincs megadva
ÉPÍTÉSGáz (cirkó)
FŰTÉS- CSOK igénybe vehető nem
- Tetőtér beépíthető nem
- Építés éve 1984
- Fűtés Gáz (cirkó)
- Klíma nem
- Szigetelt nem
A+++
A++
A+
A
B
C
D
E
F
G
H
I
Az ingatlan leírása
Kizárólag az OTP Ingatlanpontnál!
Családi házat vagy nyaralót keres Csongrádon? Megtalálta!
Megvételre kínálok egy teljeskörűen felújított családi házat Csongrád központi részén, a Tisza mellett, festői környezetben.
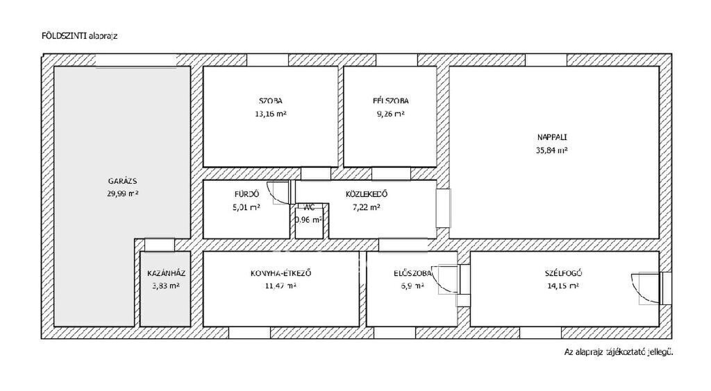
A tégla építésű ház jelenleg egy szélfogót, előszobát, hatalmas nappalit, két hálószobát, konyhát, fürdőt, WC-t foglal magában (103,6m2) , amihez egy 33m2-es fűtött garázs is tartozik. A tetőtér beépítésével további 70m2-es hasznos alapterület nyerhető. A ház különlegessége egy csodálatos, tágas, Tiszai panorámával rendelkező fedett tetőterasz, ami igazán értékessé teszi az ingatlant.
A felújítás során a villany-, víz-, csatorna- és gázvezetékek ki lettek cserélve. A falak homlokzati hőszigetelést kaptak, új nyílászárók kerültek beépítésre. A központi fűtést új, gazdaságos gázkazán szolgálja ki, ami a melegvíz ellátást is biztosítja. A padlóburkolatok, a fürdőszoba, WC és a konyha is megújult.
A tetőtér kialakítása az új tulajdonos feladata. Ha nagy privát udvarra vágyik, akkor ez nem az Ön ingatlana, viszont ha nem szeretne a fűnyírással bajlódni, de élvezni szeretné a természet közelségét, akkor ez az ingatlan Önnek való! Mindenképpen érdemes megnézni, a megtekintésért hívjon bizalommal!
Az OTP Ingatlanpont teljes körű ügyintézéssel áll az eladók és vevők rendelkezésére. A kínálatunkból választott ingatlan finanszírozásához kedvezményes hitelkonstrukciót biztosítunk. Az OTP Banknál elérhető Babaváró, falusi CSOK, CSOK Plusz hitel és egyéb kölcsönök intézését díjmentesen vállaljuk. Az adásvételi szerződés megkötéséhez igény szerint ügyvédet biztosítunk. Irodáink Szentes, Petőfi utca 12. a buszmegálló felől, és Csongrád, Fő utca 54. szám alatt várjuk a személyes érdeklődőket. Válasszuk ki együtt az Önnek legmegfelelőbb ajánlatot banki sorban állás nélkül!
Családi házat vagy nyaralót keres Csongrádon? Megtalálta!
Megvételre kínálok egy teljeskörűen felújított családi házat Csongrád központi részén, a Tisza mellett, festői környezetben.
A tégla építésű ház jelenleg egy szélfogót, előszobát, hatalmas nappalit, két hálószobát, konyhát, fürdőt, WC-t foglal magában (103,6m2) , amihez egy 33m2-es fűtött garázs is tartozik. A tetőtér beépítésével további 70m2-es hasznos alapterület nyerhető. A ház különlegessége egy csodálatos, tágas, Tiszai panorámával rendelkező fedett tetőterasz, ami igazán értékessé teszi az ingatlant.
A felújítás során a villany-, víz-, csatorna- és gázvezetékek ki lettek cserélve. A falak homlokzati hőszigetelést kaptak, új nyílászárók kerültek beépítésre. A központi fűtést új, gazdaságos gázkazán szolgálja ki, ami a melegvíz ellátást is biztosítja. A padlóburkolatok, a fürdőszoba, WC és a konyha is megújult.
A tetőtér kialakítása az új tulajdonos feladata. Ha nagy privát udvarra vágyik, akkor ez nem az Ön ingatlana, viszont ha nem szeretne a fűnyírással bajlódni, de élvezni szeretné a természet közelségét, akkor ez az ingatlan Önnek való! Mindenképpen érdemes megnézni, a megtekintésért hívjon bizalommal!
Az OTP Ingatlanpont teljes körű ügyintézéssel áll az eladók és vevők rendelkezésére. A kínálatunkból választott ingatlan finanszírozásához kedvezményes hitelkonstrukciót biztosítunk. Az OTP Banknál elérhető Babaváró, falusi CSOK, CSOK Plusz hitel és egyéb kölcsönök intézését díjmentesen vállaljuk. Az adásvételi szerződés megkötéséhez igény szerint ügyvédet biztosítunk. Irodáink Szentes, Petőfi utca 12. a buszmegálló felől, és Csongrád, Fő utca 54. szám alatt várjuk a személyes érdeklődőket. Válasszuk ki együtt az Önnek legmegfelelőbb ajánlatot banki sorban állás nélkül!