Eladó Ház- házrész
Hirdetéskód: 9247324
OTP Ingatlanpont Csongrád
86.00 m2
ALAPTERÜLET3
SZOBASZÁMnincs megadva
ÉPÍTÉSnincs megadva
FŰTÉS- CSOK igénybe vehető nem
- Tetőtér beépíthető nem
- Építés éve 1935
- Klíma nem
- Szigetelt nem
A+++
A++
A+
A
B
C
D
E
F
G
H
I
Az ingatlan leírása
Csak az OTP Ingatlanpont kínálatában!
Csongrád központhoz közeli csendes utcájában eladó, egy jó szerkezetű, felújítandó családi ház!
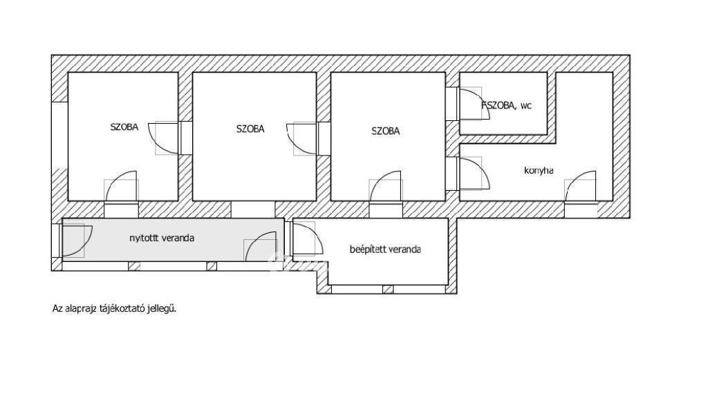
Az ingatlan kiváló lokációval rendelkezik. Az 559m2-es telken egy vegyes falazatú, felújításra szoruló lakóépület található. A 86m2 hasznos alapterületű házban 4 nagyobb helyiség, egy fürdőszoba, valamint egy nyitott és egy beépített veranda kapott helyet.
Villany, víz, csatorna közművel rendelkezik, a gáz a telken belül van, de gázóra jelenleg nincs.
A villanyhálózat részleges felújításon esett át, befejezésre vár.
A szobák betonosak.
Az ingatlan per, teher, és igénymentes.
Amennyiben felkeltettem érdeklődését, hívjon bizalommal!
Az OTP Ingatlanpont teljeskörű ügyintézéssel áll az eladók és vevők rendelkezésére. A kínálatunkból választott ingatlan finanszírozásához kedvezményes hitelkonstrukciót biztosítunk. Az OTP Banknál elérhető Babaváró, Otthon Start Hitelprogram, falusi CSOK, CSOK Plusz hitel és egyéb kölcsönök intézését díjmentesen vállaljuk. Az adásvételi szerződés megkötéséhez igény szerint ügyvédet biztosítunk. Irodáink Szentes, Petőfi utca 12. a buszmegálló felől, és Csongrád, Fő utca 54. szám alatt várjuk a személyes érdeklődőket. Válasszuk ki együtt az Önnek legmegfelelőbb ajánlatot banki sorban állás nélkül!
Csongrád központhoz közeli csendes utcájában eladó, egy jó szerkezetű, felújítandó családi ház!
Az ingatlan kiváló lokációval rendelkezik. Az 559m2-es telken egy vegyes falazatú, felújításra szoruló lakóépület található. A 86m2 hasznos alapterületű házban 4 nagyobb helyiség, egy fürdőszoba, valamint egy nyitott és egy beépített veranda kapott helyet.
Villany, víz, csatorna közművel rendelkezik, a gáz a telken belül van, de gázóra jelenleg nincs.
A villanyhálózat részleges felújításon esett át, befejezésre vár.
A szobák betonosak.
Az ingatlan per, teher, és igénymentes.
Amennyiben felkeltettem érdeklődését, hívjon bizalommal!
Az OTP Ingatlanpont teljeskörű ügyintézéssel áll az eladók és vevők rendelkezésére. A kínálatunkból választott ingatlan finanszírozásához kedvezményes hitelkonstrukciót biztosítunk. Az OTP Banknál elérhető Babaváró, Otthon Start Hitelprogram, falusi CSOK, CSOK Plusz hitel és egyéb kölcsönök intézését díjmentesen vállaljuk. Az adásvételi szerződés megkötéséhez igény szerint ügyvédet biztosítunk. Irodáink Szentes, Petőfi utca 12. a buszmegálló felől, és Csongrád, Fő utca 54. szám alatt várjuk a személyes érdeklődőket. Válasszuk ki együtt az Önnek legmegfelelőbb ajánlatot banki sorban állás nélkül!