Eladó Ház- házrész
Hirdetéskód: 9309649
OTP Ingatlanpont Csongrád
Felújításhoz személyi kölcsönt keres? Kalkuláljon itt! →
Ez a hirdetés megfelelhet a FIX 3%-os programnak.
Tudj meg többet a részletekről itt.
258.00 m2
ALAPTERÜLET6
SZOBASZÁMnincs megadva
ÉPÍTÉSGáz (cirkó)
FŰTÉS- CSOK igénybe vehető nem
- Tetőtér beépíthető nem
- Építés éve 1985
- Fűtés Gáz (cirkó)
- Klíma nem
- Szigetelt nem
A+++
A++
A+
A
B
C
D
E
F
G
H
I
Az ingatlan leírása
------ Kizárólag az OTP Ingatlanpontnál! ------
Többféle hasznosítási lehetőséget kínáló ingatlan eladó Csongrádon, forgalmas, bejáratott helyen!
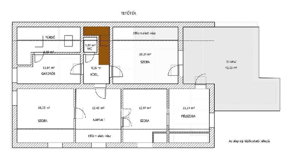
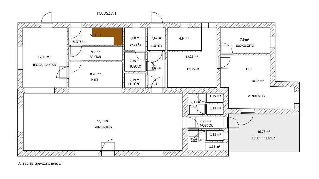
A 258m2 hasznos alapterületű teljeskörűen felújított és korszerűsített ingatlan földszinti része nettó 163m2 alapterületű, eredetileg vendéglátó funkcióra lett kialakítva, de akár üzletnek, irodának is kiválóan alkalmas lehet. A tetőtérben kialakított külön bejáratú lakás hasznos (190cm belmagasságot elérő) alapterülete 95m2, amely 5 lakószobát, gardrób szobát, fürdőszobát, WC-t foglal magában, valamint egy hangulatos, tágas (40m2-es), részben fedett terasz növeli az életteret, ahová 2 szobából is kijuthatunk.
Az ingatlan napelemmel felszerelt így a központi fűtés villany kazánról gazdaságosan üzemeltethető, de gázkazán, vegyes tüzelésű kazán, valamint gázkonvektorok is rendelkezésre állnak. A melegvíz előállítása is többféle módon megoldható.
Az ingatlanba több klíma is felszerelésre került. A burkolatok, nyílászárók felújításra kerültek, a falazat és a tető is kiváló állapotban van.
A 609m2-es szépen parkosított telken egy garázs is megtalálható.
Az épület kívül-belül stílusos, igényes kialakítású, arra vár, hogy a leendő tulajdonosok megtalálják benne a megélhetési és lakhatási lehetőségeiket.
A tulajdoni lapon kivett lakóház, üzlet és udvar megnevezéssel szerepel. További információért hívjon bizalommal!
Az OTP Ingatlanpont teljes körű ügyintézéssel áll az eladók és vevők rendelkezésére. A kínálatunkból választott ingatlan finanszírozásához kedvezményes hitelkonstrukciót biztosítunk. Az OTP Banknál elérhető Otthon Start Program, Babaváró, falusi CSOK, CSOK Plusz hitel és egyéb kölcsönök intézését díjmentesen vállaljuk. Az adásvételi szerződés megkötéséhez igény szerint ügyvédet biztosítunk. Irodáink Szentes, Petőfi utca 12. a buszmegálló felől, és Csongrád, Fő utca 54. szám alatt várjuk a személyes érdeklődőket. Válasszuk ki együtt az Önnek legmegfelelőbb ajánlatot banki sorban állás nélkül! Legyen Ön is megbízónk, és adja el rajtunk keresztül ingatlanát!
Többféle hasznosítási lehetőséget kínáló ingatlan eladó Csongrádon, forgalmas, bejáratott helyen!
A 258m2 hasznos alapterületű teljeskörűen felújított és korszerűsített ingatlan földszinti része nettó 163m2 alapterületű, eredetileg vendéglátó funkcióra lett kialakítva, de akár üzletnek, irodának is kiválóan alkalmas lehet. A tetőtérben kialakított külön bejáratú lakás hasznos (190cm belmagasságot elérő) alapterülete 95m2, amely 5 lakószobát, gardrób szobát, fürdőszobát, WC-t foglal magában, valamint egy hangulatos, tágas (40m2-es), részben fedett terasz növeli az életteret, ahová 2 szobából is kijuthatunk.
Az ingatlan napelemmel felszerelt így a központi fűtés villany kazánról gazdaságosan üzemeltethető, de gázkazán, vegyes tüzelésű kazán, valamint gázkonvektorok is rendelkezésre állnak. A melegvíz előállítása is többféle módon megoldható.
Az ingatlanba több klíma is felszerelésre került. A burkolatok, nyílászárók felújításra kerültek, a falazat és a tető is kiváló állapotban van.
A 609m2-es szépen parkosított telken egy garázs is megtalálható.
Az épület kívül-belül stílusos, igényes kialakítású, arra vár, hogy a leendő tulajdonosok megtalálják benne a megélhetési és lakhatási lehetőségeiket.
A tulajdoni lapon kivett lakóház, üzlet és udvar megnevezéssel szerepel. További információért hívjon bizalommal!
Az OTP Ingatlanpont teljes körű ügyintézéssel áll az eladók és vevők rendelkezésére. A kínálatunkból választott ingatlan finanszírozásához kedvezményes hitelkonstrukciót biztosítunk. Az OTP Banknál elérhető Otthon Start Program, Babaváró, falusi CSOK, CSOK Plusz hitel és egyéb kölcsönök intézését díjmentesen vállaljuk. Az adásvételi szerződés megkötéséhez igény szerint ügyvédet biztosítunk. Irodáink Szentes, Petőfi utca 12. a buszmegálló felől, és Csongrád, Fő utca 54. szám alatt várjuk a személyes érdeklődőket. Válasszuk ki együtt az Önnek legmegfelelőbb ajánlatot banki sorban állás nélkül! Legyen Ön is megbízónk, és adja el rajtunk keresztül ingatlanát!