Eladó Ház- házrész
Hirdetéskód: 9248810
OTP Ingatlanpont Csongrád
Felújításhoz személyi kölcsönt keres? Kalkuláljon itt! →
Ez a hirdetés megfelelhet a FIX 3%-os programnak.
Tudj meg többet a részletekről itt.
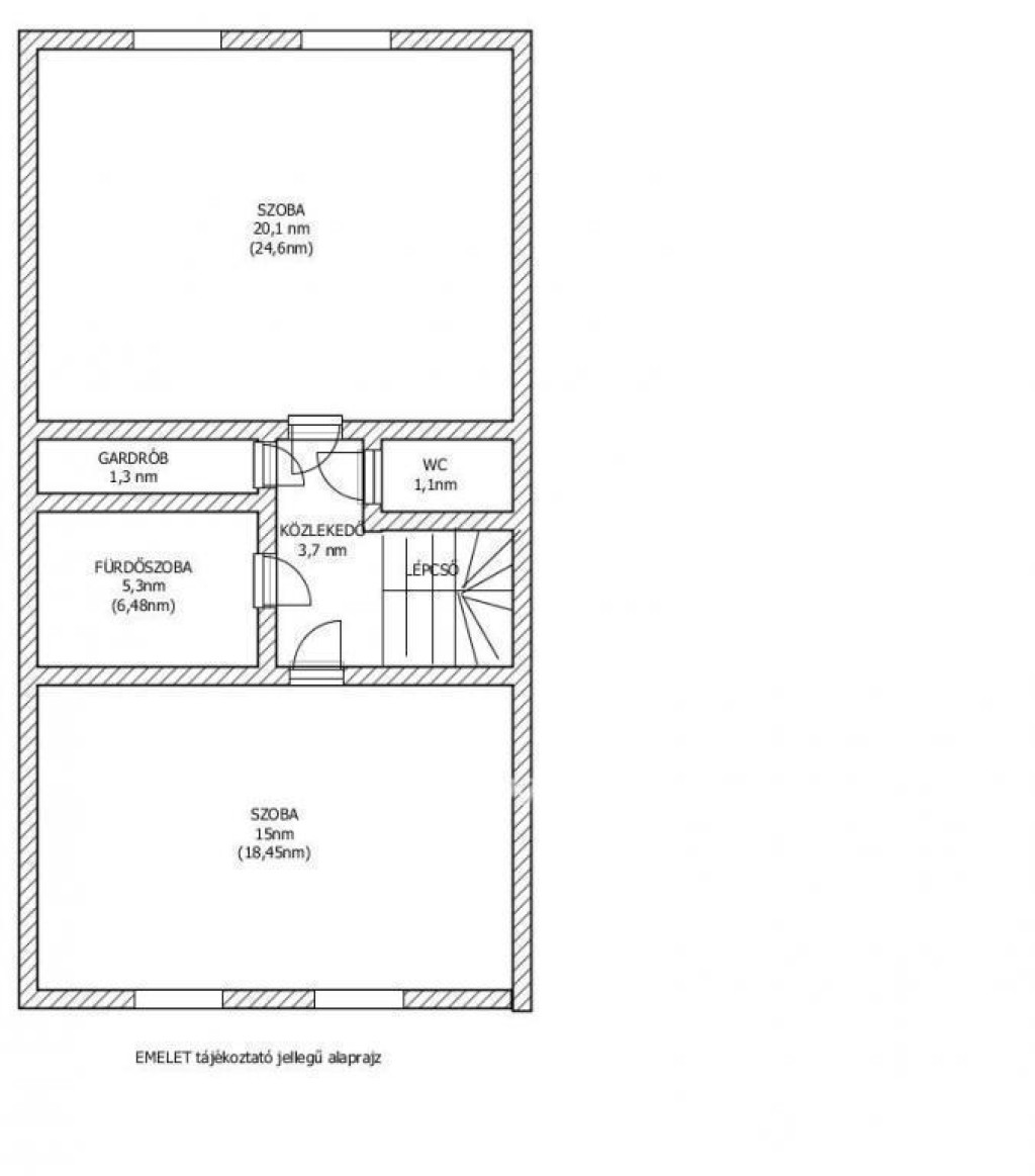
120.00 m2
ALAPTERÜLET3
SZOBASZÁMnincs megadva
ÉPÍTÉSGáz (cirkó)
FŰTÉS- CSOK igénybe vehető nem
- Tetőtér beépíthető nem
- Építés éve 1990
- Fűtés Gáz (cirkó)
- Klíma nem
- Szigetelt nem
A+++
A++
A+
A
B
C
D
E
F
G
H
I
Az ingatlan leírása
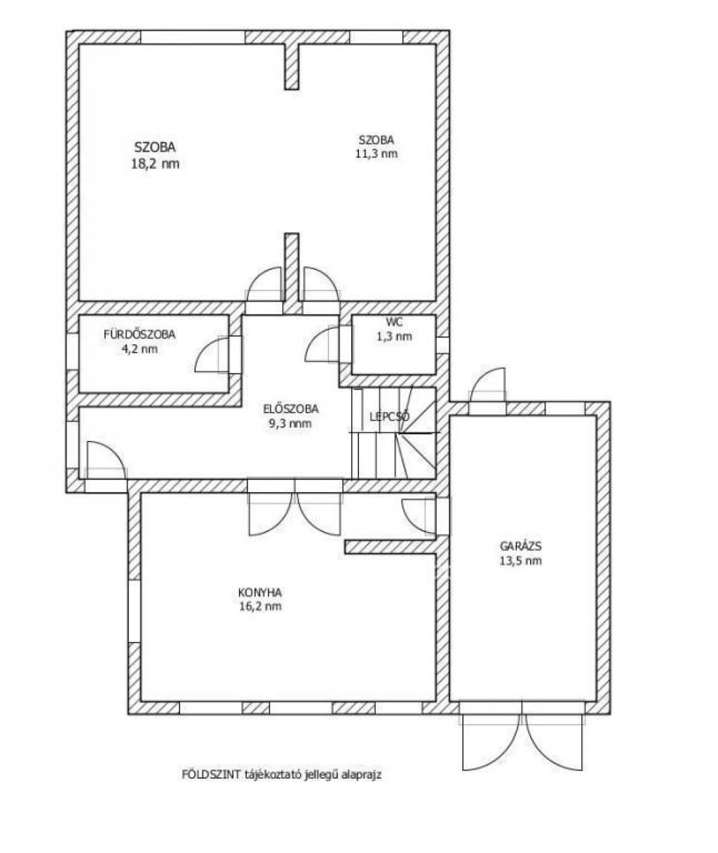
** CSAK AZ OTP INGATLANPONT KÍNÁLATÁBAN! *** Eladóvá vált egy 1990-ben épült tégla szerkezetű dupla komfortos családi ház a városközpont közelében 734 m2 telken.LIDL, PEPCO, KIK a közelben. A ház tetőtér beépítéses 3 és fél szobás, kiváló elosztásával alkalmas akár egy nagyobb család számára is. A nappaliban hangulatos cserépkályha biztosít kellemes meleget a hidegebb hónapokban, mellette pedig gáz-központi fűtés is üzemel, ami a kényelmet szolgálja. A fa nyílászárók dupla üvegezésűek, redőnnyel felszereltek. A nyár melegét klíma ellensúlyozza.A lakó helyiségek másfél éve kaptak új padlóburkolatot.
A kert rendezett, karbantartott, alkalmas pihenésre, kerti sütögetésre és a fedett kerti kiülő biztosítja a teret a családi, baráti összejövetelekre.1 kocsiállásos garázs is van, melyet a főépületen belülről is meg lehet közelíteni.
A házhoz tartozik még egy több mint 100 m2-es 6 helyiségből álló tornácos épület, egykor lakásként szolgált, ma felújításra szorul. Kiváló lehetőség üzlethelyiség létrehozására is. Önálló bejárattal rendelkezik.
Amennyiben felkeltettem érdeklődését, hívjon bizalommal! Az OTP Ingatlanpont teljes körű ügyintézéssel áll az eladók és vevők rendelkezésére. A kínálatunkból választott ingatlan finanszírozásához kedvezményes hitelkonstrukciót biztosítunk. Az OTP Banknál elérhető Otthon Start Hitelprogram, Babaváró, falusi CSOK, CSOK Plusz hitel és egyéb kölcsönök intézését díjmentesen vállaljuk. Az adásvételi szerződés megkötéséhez igény szerint ügyvédet biztosítunk. Irodáink Csongrád, Fő utca 54. szám és Szentes, Petőfi utca 12. (buszmegálló felől) várjuk a személyes érdeklődőket. Válasszuk ki együtt az Önnek legmegfelelőbb ajánlatot banki sorban állás nélkül!
Értékegyeztetéssel lakáscsere (nem panel) is megoldható Csongrád, Szeged, Kecskemét viszonylatában. 3 szobás legyen, ami lehet 1 +2 1/2 is.
Az energetikai tanúsítvány készítése folyamatban van, amint rendelkezésre áll, úgy azzal a hirdetés frissítésre kerül.
A kert rendezett, karbantartott, alkalmas pihenésre, kerti sütögetésre és a fedett kerti kiülő biztosítja a teret a családi, baráti összejövetelekre.1 kocsiállásos garázs is van, melyet a főépületen belülről is meg lehet közelíteni.
A házhoz tartozik még egy több mint 100 m2-es 6 helyiségből álló tornácos épület, egykor lakásként szolgált, ma felújításra szorul. Kiváló lehetőség üzlethelyiség létrehozására is. Önálló bejárattal rendelkezik.
Amennyiben felkeltettem érdeklődését, hívjon bizalommal! Az OTP Ingatlanpont teljes körű ügyintézéssel áll az eladók és vevők rendelkezésére. A kínálatunkból választott ingatlan finanszírozásához kedvezményes hitelkonstrukciót biztosítunk. Az OTP Banknál elérhető Otthon Start Hitelprogram, Babaváró, falusi CSOK, CSOK Plusz hitel és egyéb kölcsönök intézését díjmentesen vállaljuk. Az adásvételi szerződés megkötéséhez igény szerint ügyvédet biztosítunk. Irodáink Csongrád, Fő utca 54. szám és Szentes, Petőfi utca 12. (buszmegálló felől) várjuk a személyes érdeklődőket. Válasszuk ki együtt az Önnek legmegfelelőbb ajánlatot banki sorban állás nélkül!
Értékegyeztetéssel lakáscsere (nem panel) is megoldható Csongrád, Szeged, Kecskemét viszonylatában. 3 szobás legyen, ami lehet 1 +2 1/2 is.
Az energetikai tanúsítvány készítése folyamatban van, amint rendelkezésre áll, úgy azzal a hirdetés frissítésre kerül.