Eladó Ház- házrész
Hirdetéskód: 9247219
OTP Ingatlanpont Csongrád
160.00 m2
ALAPTERÜLET5
SZOBASZÁMnincs megadva
ÉPÍTÉSnincs megadva
FŰTÉS- CSOK igénybe vehető nem
- Tetőtér beépíthető nem
- Építés éve 1988
- Klíma nem
- Szigetelt nem
A+++
A++
A+
A
B
C
D
E
F
G
H
I
Az ingatlan leírása
Kizárólag az OTP Ingatlanpont kínálatában!
Megvételre kínálok egy kiváló szerkezeti állapotú 5 szobás, kétszintes tégla házat Csongrádon, a Bökény városrész közkedvelt kertvárosi övezetében!
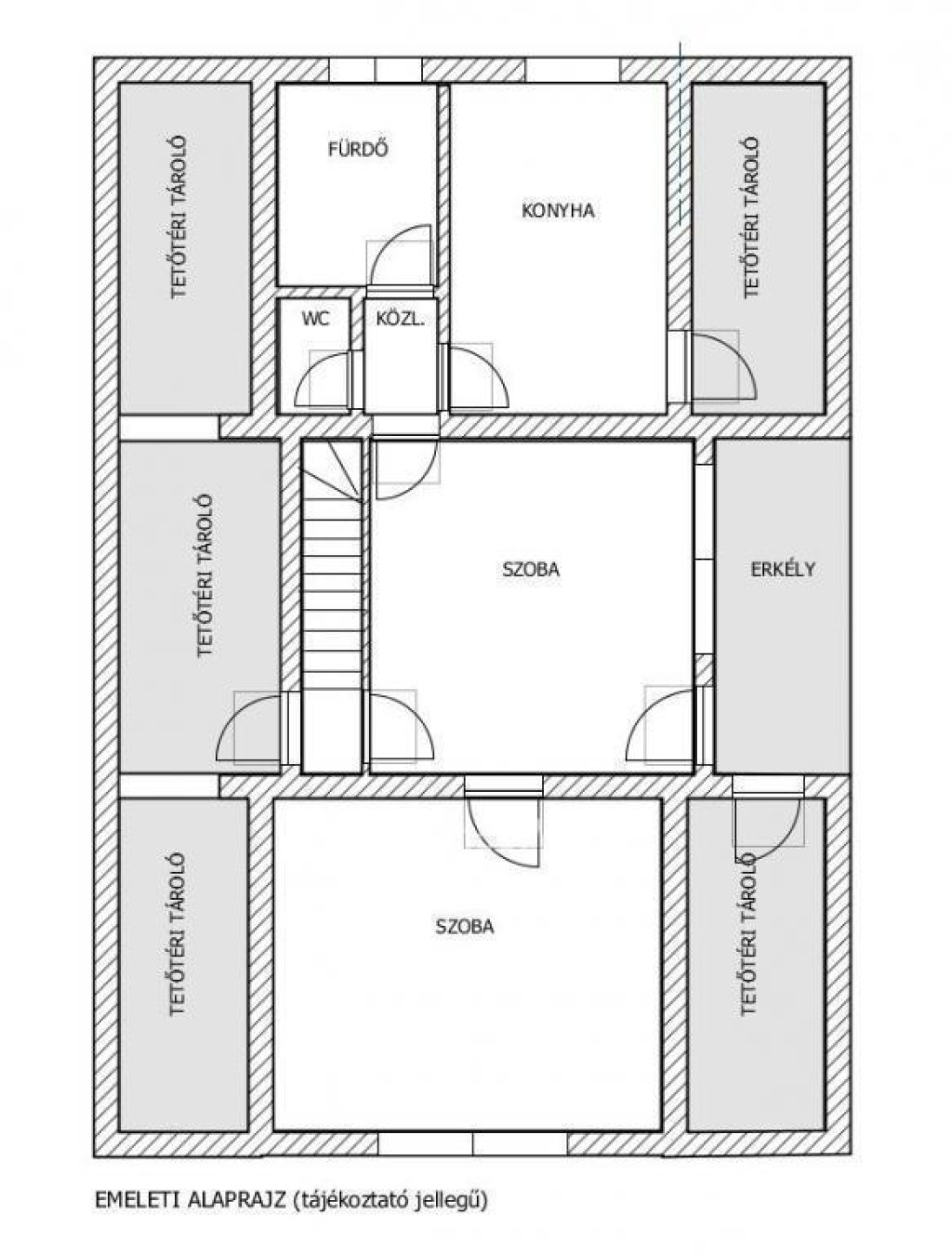
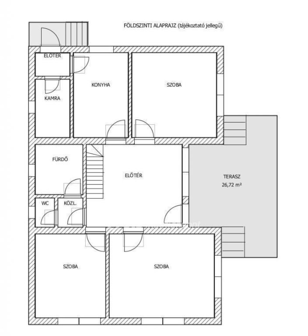
Az 1988-ban épült lakóház falazata Thermoton tégla, amely belső hőszigetelő betéttel rendelkezik. 160m2 hasznos alapterületű ház földszintjén egy nagy előtér, 3 külön nyíló szoba, tágas konyha, kamra, fürdőszoba és külön WC helyezkedik el, az előtérhez nagy terasz kapcsolódik. Az emeleti részen teljes értékű, 250cm belmagasságú helyiségek kerültek kialakításra, ami akár külön lakrészként is használható, mivel a nagy, erkélyes nappali mellett egy tágas szoba, konyha, külön fürdőszoba és WC kapott benne helyet, továbbá 5 praktikus tetőtéri tároló helyiség is rendelkezésre áll.
A homlokzat jó állapotú (nemesvakolat), csakúgy, mint a tetőszerkezet és héjazat (cserép). A szobák mindegyikében kifogástalan állapotú a parketta, az előtér, konyha és a vizes helyiségek kerámia burkolatúak. Mindkét fürdőszobában fürdőkád van, a melegvizet gázüzemű bojlerek szolgáltatják. A fűtés gázkonvektorokkal van megoldva. Az emeleti nappaliban egy klíma is beszerelésre került.
A fa nyílászárók dupla üvegezésűek, redőnnyel felszereltek.
A 625m2-es telken lehetőség van akár egy konyhakert kialakítására is, amelyet fúrt kútról lehet öntözni.
A ház a Holt-Tisza közvetlen közelében helyezkedik el, ami remek kiránduló hely és kiváló horgászvíz is egyben. Csendes nyugodt környék, az utca átmenő forgalomtól mentes. A közelben óvoda, iskola, élelmiszer bolt, egészségügyi ellátás, gyorsétterem és helyi járatos buszmegálló is megtalálható. A Körös-toroki strand biciklis távolságra van.
Az ingatlan per-, teher-, és igénymentes, minden közmű megtalálható benne. (A földszinti és az emeleti rész külön villanyórával rendelkezik.) A térképvázlat rendben van. Rövid határidővel birtokba vehető.
Amennyiben felkeltettem érdeklődését, hívjon bizalommal!
Az OTP Ingatlanpont teljes körű ügyintézéssel áll az eladók és vevők rendelkezésére. A kínálatunkból választott ingatlan finanszírozásához kedvezményes hitelkonstrukciót biztosítunk. Az OTP Banknál elérhető Babaváró, falusi CSOK, CSOK Plusz hitel és egyéb kölcsönök intézését díjmentesen vállaljuk. Az adásvételi szerződés megkötéséhez igény szerint ügyvédet biztosítunk. Irodáink Szentes, Petőfi utca 12. a buszmegálló felől, és Csongrád, Fő utca 54. szám alatt várjuk a személyes érdeklődőket. Válasszuk ki együtt az Önnek legmegfelelőbb ajánlatot banki sorban állás nélkül!
Megvételre kínálok egy kiváló szerkezeti állapotú 5 szobás, kétszintes tégla házat Csongrádon, a Bökény városrész közkedvelt kertvárosi övezetében!
Az 1988-ban épült lakóház falazata Thermoton tégla, amely belső hőszigetelő betéttel rendelkezik. 160m2 hasznos alapterületű ház földszintjén egy nagy előtér, 3 külön nyíló szoba, tágas konyha, kamra, fürdőszoba és külön WC helyezkedik el, az előtérhez nagy terasz kapcsolódik. Az emeleti részen teljes értékű, 250cm belmagasságú helyiségek kerültek kialakításra, ami akár külön lakrészként is használható, mivel a nagy, erkélyes nappali mellett egy tágas szoba, konyha, külön fürdőszoba és WC kapott benne helyet, továbbá 5 praktikus tetőtéri tároló helyiség is rendelkezésre áll.
A homlokzat jó állapotú (nemesvakolat), csakúgy, mint a tetőszerkezet és héjazat (cserép). A szobák mindegyikében kifogástalan állapotú a parketta, az előtér, konyha és a vizes helyiségek kerámia burkolatúak. Mindkét fürdőszobában fürdőkád van, a melegvizet gázüzemű bojlerek szolgáltatják. A fűtés gázkonvektorokkal van megoldva. Az emeleti nappaliban egy klíma is beszerelésre került.
A fa nyílászárók dupla üvegezésűek, redőnnyel felszereltek.
A 625m2-es telken lehetőség van akár egy konyhakert kialakítására is, amelyet fúrt kútról lehet öntözni.
A ház a Holt-Tisza közvetlen közelében helyezkedik el, ami remek kiránduló hely és kiváló horgászvíz is egyben. Csendes nyugodt környék, az utca átmenő forgalomtól mentes. A közelben óvoda, iskola, élelmiszer bolt, egészségügyi ellátás, gyorsétterem és helyi járatos buszmegálló is megtalálható. A Körös-toroki strand biciklis távolságra van.
Az ingatlan per-, teher-, és igénymentes, minden közmű megtalálható benne. (A földszinti és az emeleti rész külön villanyórával rendelkezik.) A térképvázlat rendben van. Rövid határidővel birtokba vehető.
Amennyiben felkeltettem érdeklődését, hívjon bizalommal!
Az OTP Ingatlanpont teljes körű ügyintézéssel áll az eladók és vevők rendelkezésére. A kínálatunkból választott ingatlan finanszírozásához kedvezményes hitelkonstrukciót biztosítunk. Az OTP Banknál elérhető Babaváró, falusi CSOK, CSOK Plusz hitel és egyéb kölcsönök intézését díjmentesen vállaljuk. Az adásvételi szerződés megkötéséhez igény szerint ügyvédet biztosítunk. Irodáink Szentes, Petőfi utca 12. a buszmegálló felől, és Csongrád, Fő utca 54. szám alatt várjuk a személyes érdeklődőket. Válasszuk ki együtt az Önnek legmegfelelőbb ajánlatot banki sorban állás nélkül!