Eladó Ház- házrész
Hirdetéskód: 9258836

-

Felújításhoz személyi kölcsönt keres? Kalkuláljon itt! →
FIX 3% Program

Ez a hirdetés megfelelhet a FIX 3%-os programnak.
Tudj meg többet a részletekről itt.

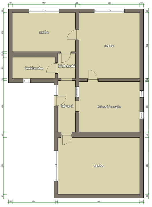
95.00 m2
ALAPTERÜLET
3
SZOBASZÁM
Tégla
ÉPÍTÉS
Központi fűtés
FŰTÉS
  • CSOK igénybe vehető igen
  • Kilátás Utcai
  • Tájolás Délkelet
  • Ingatlan komfort Összkomfortos
  • Parkolási lehetőség Udvari beálló
  • Építés éve 1950
  • Fűtés Központi fűtés
  • Építőanyag Tégla
  • Klíma igen
  • Szigetelt nem
  • Bútorozott nem
  • Víz telken belül
  • Csatorna telken belül
  • Gáz utcában
  • Villany telken belül

Energetikai besorolás: G

A+++
A++
A+
A
B
C
D
E
F
G
H
I

Az MBH Bank személyi kölcsön ajánlata

Fizetett hirdetés
1 millió Ft
6 évre
20 585 Ft/hó
THM: 14.5%
Részletek →
2 millió Ft
6 évre
41 169 Ft/hó
THM: 14.5%
Részletek →
3 millió Ft
6 évre
61 754 Ft/hó
THM: 14.5%
Részletek →

A tájékoztatás nem teljes körű és nem minősül ajánlattételnek.

Az ingatlan leírása

Pannónia Ring közelében (5 km), Csönge kis településen, csendes környezetben található a részben felújított lakóház. A fűtését egy Totya vegyestüzelésű kazán biztosítja, lapradiátoros hőleadással, valamint hűtő-fűtő klímákkal is szerelt. A nyílászárók cseréje is megtörtént az udvarban több melléképület is található ezekből kis ráfordítással garázsokat is ki lehet alakítani. 


Érd.:
Molnár Zsolt
Ingatlanvagyon értékelő
Ingatlan értékesítő 06302174888


További részletekért forduljon hozzám bizalommal.
Kérdéseivel kapcsolatban irodai konzultáció keretében, illetve telefonon állok szíves rendelkezésére.
Teljeskörű Otthon Start Hitel, Piaci Hitel ügyintézéssel! 

Térkép

Ingatlan adásvétel ügyvédi díja
150 000 Ft
a hirdetésben szereplő ár alapján
  • A vételár 0,45%-a
  • Szerződéscsomag teljeskörű képviselettel
  • Ingyenes tulajdoni lap ellenőrzés
  • Az ÁFA-t már tartalmazza
Érdekel az ajánlat →
A tájékoztatás nem teljes körű és nem minősül ajánlattételnek. Minimum díj: 150 000 Ft, maximum díj: 600 000 Ft. A díj kizárólag lakóingatlan adásvételére vonatkozik.

A hirdető elérhetősége

S1Ingatlan

Csuka Milán
+36 30 217