Eladó Ház- házrész
Hirdetéskód: 9265349
Duna House - Új-Lak Bázis Kft.
99.00 m2
ALAPTERÜLET4
SZOBASZÁMnincs megadva
ÉPÍTÉSnincs megadva
FŰTÉS- CSOK igénybe vehető nem
- Tetőtér beépíthető nem
- Építés éve 2026
- Klíma nem
- Szigetelt nem
A+++
A++
A+
A
B
C
D
E
F
G
H
I
Az ingatlan leírása
ÖNÁLLÓ CSALÁDI HÁZ eladó Csévharaszt új építésű negyedében,
kiváló adottságú NAGY TELEKKEL!
Egy üzlet vagy iroda is építhető még a ház mellé, így akár VÁLLALKOZAS számára is ideális.
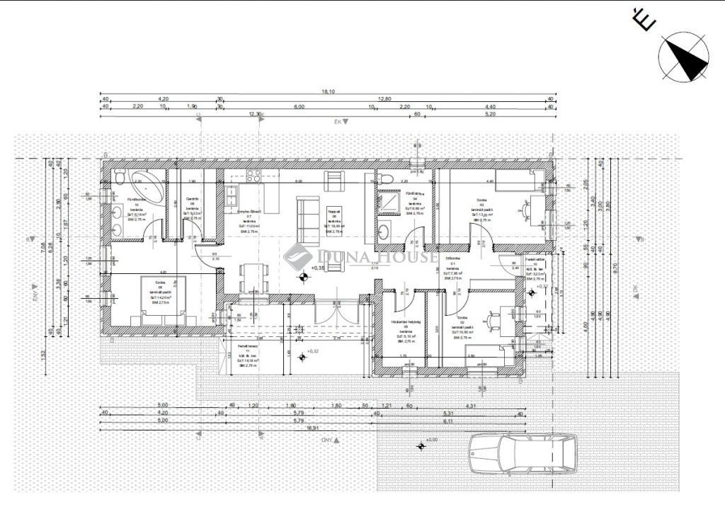
Az ingatlan hasznos alapterülete 99 m2, 3 hálószoba + amerikai konyhás nappalival kialakított,
2 FÜRDŐSZOBÁVAL ELLÁTOTT.
16 m2-es FEDETT TERASSZAL rendelkezik, ahonnan a lenyugvó napot csodálhatja minden délután.
A falazata YTONG (30 cm-es Viablokk) + 10 cm grafitos külső hőszigetelés.
A tető kialakítása szeglemezes, beton tetőcseréppel, 15 cm kőzetgyapot födém szigeteléssel.
A lábazat 7 cm, a padló 10 cm szigeteléssel ellátott.
A ház fűtése HŐSZIVATTYÚS padlófűtéssel kialakított, valamint egy KLÍMA kerül beépítésre a nappaliban,
melynek a működését H tarifás villamosenergia ellátás biztosítja.
VÁLASZTHATÓ:
- Hideg burkolat: 8000 Ft/m2
- Meleg burkolat: 5500 Ft/m2
- Beltéri ajtó: 70.000 Ft
- Szaniterek: Kád 70.000 Ft; Mosdó 30.000 Ft, Csap 25.000 Ft, WC Geberit 85.000 Ft
A fürdőszobában épített zuhany lesz kialakítva üvegfallal.
A NYÍLÁSZÁRÓK korszerű, háromrétegű üvegezésű ablakok, műanyag redőnnyel felszerelve.
VÁRHATÓ ÁTADÁS: 2026. nyár
Telek területe 1680 m2, ami ideális választás ha élhető nagy teret szeretne, akár MEDENCÉVEL, PARKOSÍTOTT KERTTEL, SAJÁT JÁTSZÓTÉRREL,
TÖBB AUTÓ PARKOLÁSI LEHETŐSÉGGEL.
Csévharaszt fejlődő település, hangulatos falu.
50 méteren belül található a háztól BÖLCSŐDE, ISKOLA, BOLTOK, ORVOSI RENDELŐ.
A településen található a méltán híres kirándulóhely is az ŐSBORÓKÁS, ahol túraútvonalak, és kikapcsolódási lehetőségek várják az arra látogatókat.
kiváló adottságú NAGY TELEKKEL!
Egy üzlet vagy iroda is építhető még a ház mellé, így akár VÁLLALKOZAS számára is ideális.
Az ingatlan hasznos alapterülete 99 m2, 3 hálószoba + amerikai konyhás nappalival kialakított,
2 FÜRDŐSZOBÁVAL ELLÁTOTT.
16 m2-es FEDETT TERASSZAL rendelkezik, ahonnan a lenyugvó napot csodálhatja minden délután.
A falazata YTONG (30 cm-es Viablokk) + 10 cm grafitos külső hőszigetelés.
A tető kialakítása szeglemezes, beton tetőcseréppel, 15 cm kőzetgyapot födém szigeteléssel.
A lábazat 7 cm, a padló 10 cm szigeteléssel ellátott.
A ház fűtése HŐSZIVATTYÚS padlófűtéssel kialakított, valamint egy KLÍMA kerül beépítésre a nappaliban,
melynek a működését H tarifás villamosenergia ellátás biztosítja.
VÁLASZTHATÓ:
- Hideg burkolat: 8000 Ft/m2
- Meleg burkolat: 5500 Ft/m2
- Beltéri ajtó: 70.000 Ft
- Szaniterek: Kád 70.000 Ft; Mosdó 30.000 Ft, Csap 25.000 Ft, WC Geberit 85.000 Ft
A fürdőszobában épített zuhany lesz kialakítva üvegfallal.
A NYÍLÁSZÁRÓK korszerű, háromrétegű üvegezésű ablakok, műanyag redőnnyel felszerelve.
VÁRHATÓ ÁTADÁS: 2026. nyár
Telek területe 1680 m2, ami ideális választás ha élhető nagy teret szeretne, akár MEDENCÉVEL, PARKOSÍTOTT KERTTEL, SAJÁT JÁTSZÓTÉRREL,
TÖBB AUTÓ PARKOLÁSI LEHETŐSÉGGEL.
Csévharaszt fejlődő település, hangulatos falu.
50 méteren belül található a háztól BÖLCSŐDE, ISKOLA, BOLTOK, ORVOSI RENDELŐ.
A településen található a méltán híres kirándulóhely is az ŐSBORÓKÁS, ahol túraútvonalak, és kikapcsolódási lehetőségek várják az arra látogatókat.