Eladó Ház- házrész
Hirdetéskód: 9201894
Gold Balaton Home Keszthely
Felújításhoz személyi kölcsönt keres? Kalkuláljon itt! →
Ez a hirdetés megfelelhet a FIX 3%-os programnak.
Tudj meg többet a részletekről itt.
65.00 m2
ALAPTERÜLET2
SZOBASZÁMnincs megadva
ÉPÍTÉSElektromos
FŰTÉS- CSOK igénybe vehető nem
- Tetőtér beépíthető nem
- Építés éve 1960
- Fűtés Elektromos
- Klíma nem
- Szigetelt nem
A+++
A++
A+
A
B
C
D
E
F
G
H
I
Az ingatlan leírása
Részben BALATONI panorámás, központközeli családi ház, csendes zsákutcában Cserszegen.
A Gold Balaton Home Ingatlaniroda megvételre kínálja a 250052608-as sorszámú, felújításra szoruló, de kitűnő szerkezeti állapotban lévő CSERSZEGTOMAJI családi házat.
Tavaszi árcsökkenés, most 4 MFt-al kedvezőbb irányáron, 49 MFt-ról 45 MFt-ra!!!
Műszaki paraméterek:
- 1960-es években épült, tégla falazattal
- felújított tetőszerkezet, palafedéssel
- tájolás: dél
- eredeti fa nyílászárók
- fűtés: a két szoba közé épített cserépkályha elektromos fűtőbetéttel; hűtő-fűtő klíma; sparhelt a konyhában
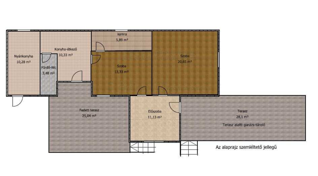
- alapterület 65 m2 (teraszok nélkül) plusz 10m2-es nyárikonyha
Az ingatlan egyéb jellemzői:
- főépülethez csatlakozó gazdasági épületek (füstölő és tárolók)
- tágas garázs a terasz alatt- könnyű parkolás
- gáz és csatorna a telekhatárról beköthető
- ipari áram
Az ingatlan felújítás -átalakítás után ideális választás lehet állandó lakhatásra, de a telek mérete és elhelyezkedése miatt biogazdálkodásra, hobbitanyának, vagy nyaralónak is.
Nézzük meg együtt és tegyen ajánlatot!!
Amennyiben hirdetésem felkeltette érdeklődését, kérem keressen bizalommal!
Irodánk szolgáltatásai igény esetén: ügyvéd, energetikai tanúsítvány, hitelügyintézés, értékbecslés, statikus, földmérő, belsőépítész.
Biztonság, szakértelem - GOLD BALATON HOME - „Élj ott, ahol mások nyaralnak”
A Gold Balaton Home Ingatlaniroda megvételre kínálja a 250052608-as sorszámú, felújításra szoruló, de kitűnő szerkezeti állapotban lévő CSERSZEGTOMAJI családi házat.
Tavaszi árcsökkenés, most 4 MFt-al kedvezőbb irányáron, 49 MFt-ról 45 MFt-ra!!!
Műszaki paraméterek:
- 1960-es években épült, tégla falazattal
- felújított tetőszerkezet, palafedéssel
- tájolás: dél
- eredeti fa nyílászárók
- fűtés: a két szoba közé épített cserépkályha elektromos fűtőbetéttel; hűtő-fűtő klíma; sparhelt a konyhában
- alapterület 65 m2 (teraszok nélkül) plusz 10m2-es nyárikonyha
Az ingatlan egyéb jellemzői:
- főépülethez csatlakozó gazdasági épületek (füstölő és tárolók)
- tágas garázs a terasz alatt- könnyű parkolás
- gáz és csatorna a telekhatárról beköthető
- ipari áram
Az ingatlan felújítás -átalakítás után ideális választás lehet állandó lakhatásra, de a telek mérete és elhelyezkedése miatt biogazdálkodásra, hobbitanyának, vagy nyaralónak is.
Nézzük meg együtt és tegyen ajánlatot!!
Amennyiben hirdetésem felkeltette érdeklődését, kérem keressen bizalommal!
Irodánk szolgáltatásai igény esetén: ügyvéd, energetikai tanúsítvány, hitelügyintézés, értékbecslés, statikus, földmérő, belsőépítész.
Biztonság, szakértelem - GOLD BALATON HOME - „Élj ott, ahol mások nyaralnak”