Eladó Ház- házrész
Hirdetéskód: 9320960
Fővállalkozó Balla és Balla Kft
Felújításhoz személyi kölcsönt keres? Kalkuláljon itt! →65.00 m2
ALAPTERÜLET2
SZOBASZÁMnincs megadva
ÉPÍTÉSGáz (konvektor)
FŰTÉS- CSOK igénybe vehető nem
- Tetőtér beépíthető nem
- Építés éve 1960
- Fűtés Gáz (konvektor)
- Klíma nem
- Szigetelt nem
A+++
A++
A+
A
B
C
D
E
F
G
H
I
Az ingatlan leírása
A megvételre kínált családi ikerház Csernely községben, a Szabadság utcában található.
A Bükk- hegység lábánál elhelyezkedő településről gyönyörű kilátás nyílik a környékre. Közelben rövid autóúttal elérhető Ózd, Szilvásvárad, Eger, Miskolc, valamint a Magyar-Szlovák határ is.
A ház téglából épült 1000 négyzetméteres telken.
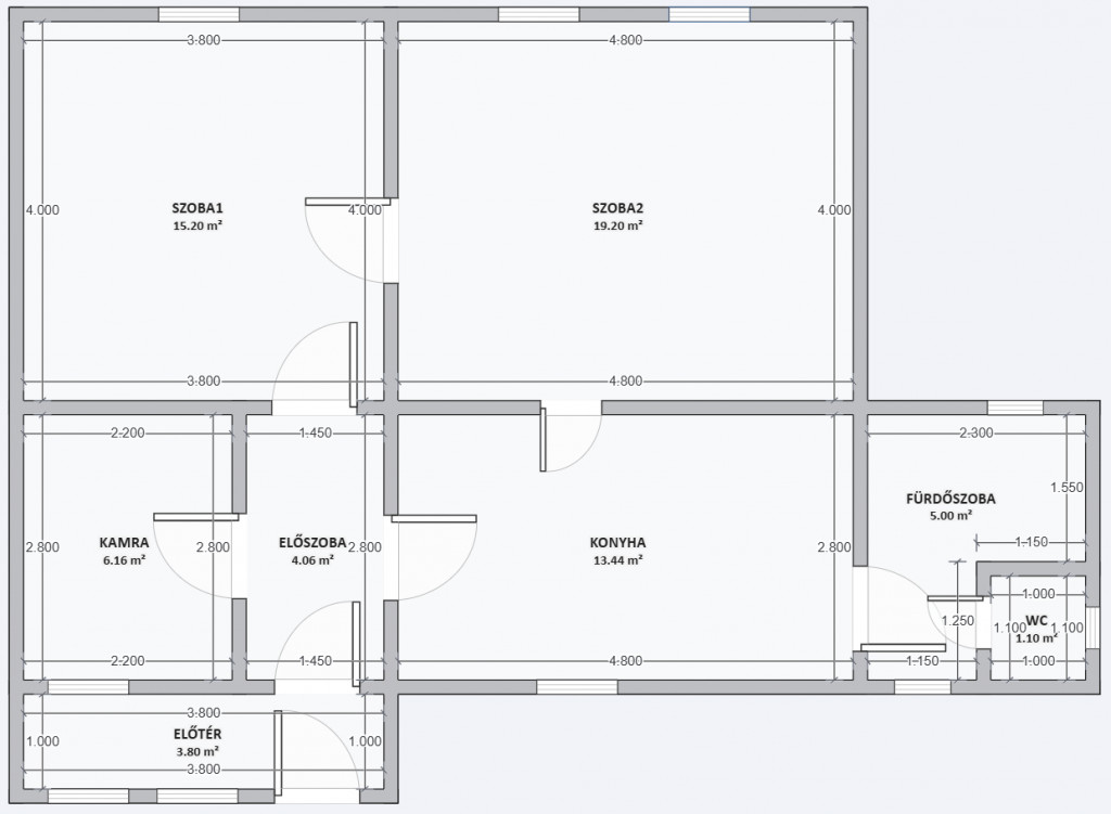
A 65 négyzetméteren két nagy szoba, előszoba, nagy étkezős konyha, kamra, egy fürdő és egy WC helyiségek találhatóak.
Az udvaron melléképületek, illetve egy nyári konyha is helyet kapott.
A ház részben felújítandó, a fűrdőszobarész teljes felújítást igányel.
A szobák jó állapotú hajópadlóval, minden egyéb helyiség járólappal burkolt!
Az előszoba fa lambéria borítást kapott.
A ház modernizálásra vár, de jelen állapotában is költözhető!
A fűtést gázkonvektorok, a melegvizet egy gáz-víz átfolyós vízmelegítő szolgáltatja!
Minden közművel rendelkezik! Gáz, Víz, Villany, Csatorna, valamint Optikai internetkábel is elérhető.
Ha nincs elég készpénze, segíthetünk az államilag támogatott, illetve lakáshitelek ügyintézésében.
Megtekintés csak előre egyeztetett időpontban lehetséges!
Érdeklődni, a megadott telefonszámon 9:00 és 18:00 óra között!s
TALÁLJA MEG ÚJ OTTHONÁT AZ
ÚJ OTTHON INGATLANIRODÁNÁL !!
A Bükk- hegység lábánál elhelyezkedő településről gyönyörű kilátás nyílik a környékre. Közelben rövid autóúttal elérhető Ózd, Szilvásvárad, Eger, Miskolc, valamint a Magyar-Szlovák határ is.
A ház téglából épült 1000 négyzetméteres telken.
A 65 négyzetméteren két nagy szoba, előszoba, nagy étkezős konyha, kamra, egy fürdő és egy WC helyiségek találhatóak.
Az udvaron melléképületek, illetve egy nyári konyha is helyet kapott.
A ház részben felújítandó, a fűrdőszobarész teljes felújítást igányel.
A szobák jó állapotú hajópadlóval, minden egyéb helyiség járólappal burkolt!
Az előszoba fa lambéria borítást kapott.
A ház modernizálásra vár, de jelen állapotában is költözhető!
A fűtést gázkonvektorok, a melegvizet egy gáz-víz átfolyós vízmelegítő szolgáltatja!
Minden közművel rendelkezik! Gáz, Víz, Villany, Csatorna, valamint Optikai internetkábel is elérhető.
Ha nincs elég készpénze, segíthetünk az államilag támogatott, illetve lakáshitelek ügyintézésében.
Megtekintés csak előre egyeztetett időpontban lehetséges!
Érdeklődni, a megadott telefonszámon 9:00 és 18:00 óra között!s
TALÁLJA MEG ÚJ OTTHONÁT AZ
ÚJ OTTHON INGATLANIRODÁNÁL !!