Eladó Ház- házrész
Hirdetéskód: 9309254
OTP Ingatlanpont Csongrád
Felújításhoz személyi kölcsönt keres? Kalkuláljon itt! →
Ez a hirdetés megfelelhet a FIX 3%-os programnak.
Tudj meg többet a részletekről itt.
172.00 m2
ALAPTERÜLET3
SZOBASZÁMnincs megadva
ÉPÍTÉSGáz (cirkó)
FŰTÉS- CSOK igénybe vehető nem
- Tetőtér beépíthető nem
- Építés éve 2025
- Fűtés Gáz (cirkó)
- Klíma nem
- Szigetelt nem
A+++
A++
A+
A
B
C
D
E
F
G
H
I
Az ingatlan leírása
Eladó egy 2025-ös új építésű családi otthon Ceglédbercel központjában!
Lépjen be egy olyan új életbe, ahol a modern luxus és az energiatakarékos megoldások találkoznak, mindezt a stresszes építkezés és az elszálló költségek nélkül!
Ceglédbercel központjában, mégis békés, természetközeli környezetben várja Önt ez a 2025-ban, rendkívüli gondossággal és dokumentált minőségben megépített, 173 négyzetméteres családi ház. A lokáció tökéletes: autóval az M4/M5 autópályákon könnyen és gyorsan Budapesten lehetünk, Köki is kényelmesen, kb. 40 perc alatt elérhető vonattal. A mindennapi élethez szükséges infrastruktúra: óvoda, iskola, posta, kisbolt, hentes, háziorvos, mindössze sétatávolságra található.
Ez az otthon egyedülálló a környéken, átgondolt tervezés eredménye az optimális terek és elosztás, amelyet egy közel nulla energiaigényű (A+) besorolás tesz gazdaságossá. A falazat 30-as Porotherm tégla, melyet 20 cm homlokzati, 15 cm aljzati és 30 cm födémszigetelés véd. A fűtési rendszert hőszivattyú, kondenzációs gázkazán (padlófűtéssel, külön vezérelhető emeleti zónával) és egy Romotop kandalló alkotja. A délutáni nap melege télen pedig természetes fűtést ad a nappali 6x2,4 méteres üvegfelületén keresztül, így a leghidegebb hónapokban is maximum 12.000 Ft volt a teljes fűtésköltség! A nyári hőséget motoros, wifi-s alumínium redőnyrendszer tartja távol.
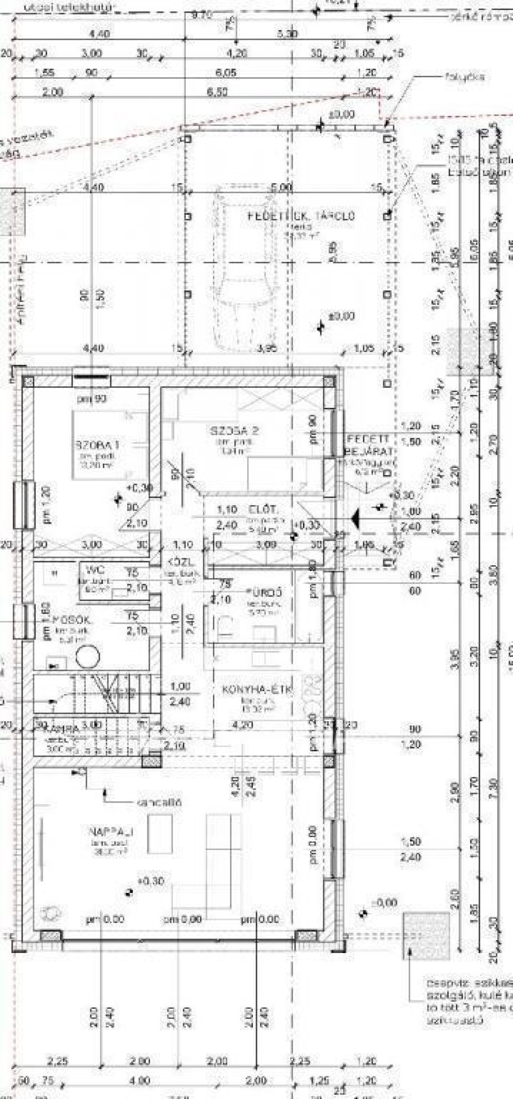
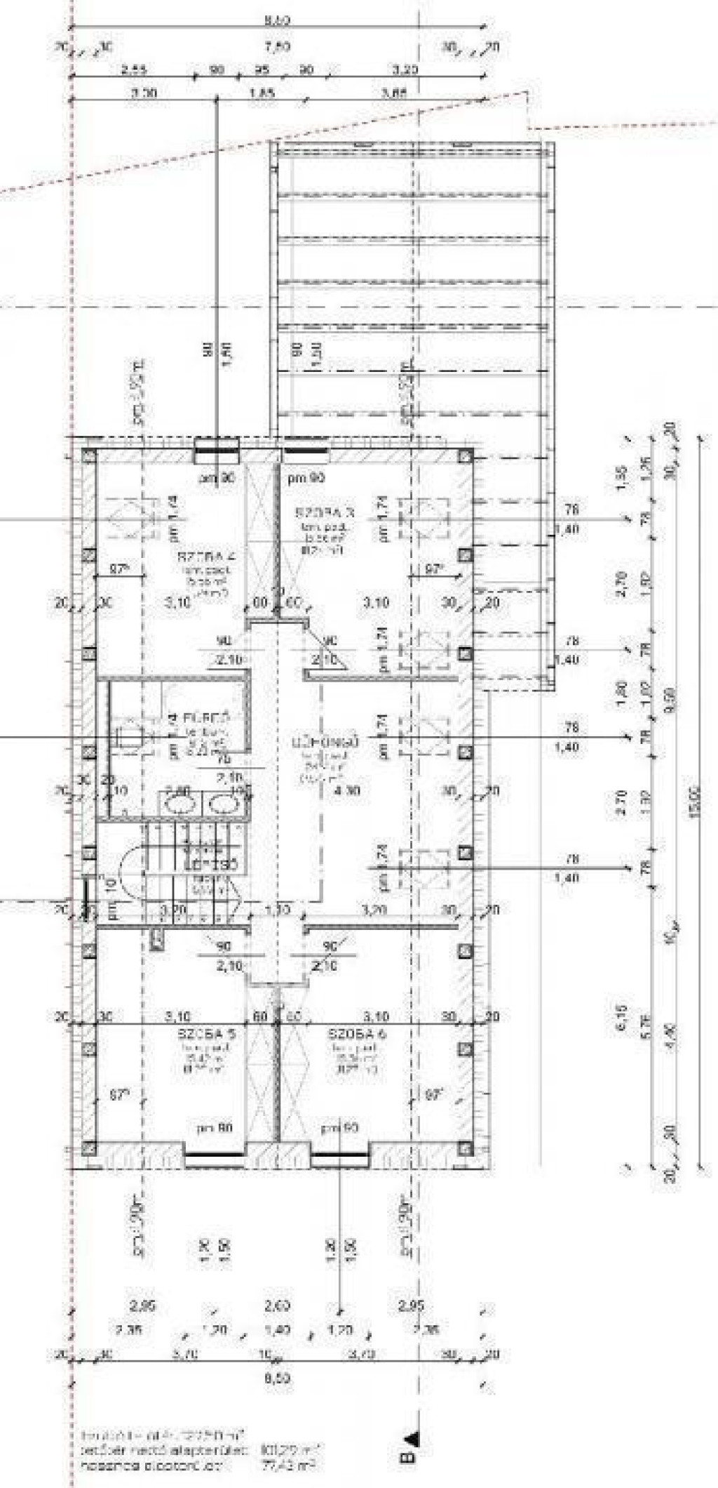
A földszint 96 m2-én egy konyhaszigetes, napfényben úszó amerikai konyhás nappali (hűtő-fűtő klímával és hővisszanyerős szellőztetővel) mellett két hálószoba, kamra, háztartási helyiség, valamint kádas és zuhanyzós fürdőszoba is helyet kapott. A teljes méretében jól használható, 78 m2-es emeleten további négy hálószoba, egy nappali és egy kádas fürdőszoba található, melynek befejezése (burkolatok, szaniterek) az új tulajdonos egyedi igényei szerint alakítható.
A hatalmas, 2873 m2-es telken, amelynek hátsó szomszédja nincs, így a nappaliból a kilátás zavartalanul a természetre nyílik, akár önálló üzlethelyiség is építhető, vagy gazdálkodásra is kiválóan alkalmas a termékeny talaj és a fúrt kút miatt. A 180 m2 térkőburkolat, a 33 m2-es, két autó beállására alkalmas fedett kocsibeálló és a fedésre előkészített, 50 m2-es terasz teszi teljessé a külső környezetet. A biztonságról kamerás riasztórendszer gondoskodik, míg a villamoshálózat alkalmas nagy teljesítményű elektromos autó töltésére is.
Mivel az emelet még befejezésre vár, a vásárlással igénybe vehető az OTTHON START 3%-OS HITEL, a CSOK, a CSOK+, a FALUSI CSOK és az OTTHONTEREMTÉSI TÁMOGATÁS (3+3 millió Ft felújításra)!
Ne maradjon le erről a rendkívüli, minden igényt kielégítő, készen váró otthonról!
A vásárlás finanszírozásában az OTP kedvezőbb kamatozású hitelkonstrukcióival, Babaváró kölcsön és egyéb banki termékek kínálatával tudunk segíteni, díjmentesen, sorban állás nélkül!
Korrekt ügyvédi közreműködés: Az adásvételi szerződés lebonyolításához megbízható ügyvédet tudunk ajánlani.
Hívjon még ma, és tekintse meg személyesen ezt az egyedülálló befektetést!
Lépjen be egy olyan új életbe, ahol a modern luxus és az energiatakarékos megoldások találkoznak, mindezt a stresszes építkezés és az elszálló költségek nélkül!
Ceglédbercel központjában, mégis békés, természetközeli környezetben várja Önt ez a 2025-ban, rendkívüli gondossággal és dokumentált minőségben megépített, 173 négyzetméteres családi ház. A lokáció tökéletes: autóval az M4/M5 autópályákon könnyen és gyorsan Budapesten lehetünk, Köki is kényelmesen, kb. 40 perc alatt elérhető vonattal. A mindennapi élethez szükséges infrastruktúra: óvoda, iskola, posta, kisbolt, hentes, háziorvos, mindössze sétatávolságra található.
Ez az otthon egyedülálló a környéken, átgondolt tervezés eredménye az optimális terek és elosztás, amelyet egy közel nulla energiaigényű (A+) besorolás tesz gazdaságossá. A falazat 30-as Porotherm tégla, melyet 20 cm homlokzati, 15 cm aljzati és 30 cm födémszigetelés véd. A fűtési rendszert hőszivattyú, kondenzációs gázkazán (padlófűtéssel, külön vezérelhető emeleti zónával) és egy Romotop kandalló alkotja. A délutáni nap melege télen pedig természetes fűtést ad a nappali 6x2,4 méteres üvegfelületén keresztül, így a leghidegebb hónapokban is maximum 12.000 Ft volt a teljes fűtésköltség! A nyári hőséget motoros, wifi-s alumínium redőnyrendszer tartja távol.
A földszint 96 m2-én egy konyhaszigetes, napfényben úszó amerikai konyhás nappali (hűtő-fűtő klímával és hővisszanyerős szellőztetővel) mellett két hálószoba, kamra, háztartási helyiség, valamint kádas és zuhanyzós fürdőszoba is helyet kapott. A teljes méretében jól használható, 78 m2-es emeleten további négy hálószoba, egy nappali és egy kádas fürdőszoba található, melynek befejezése (burkolatok, szaniterek) az új tulajdonos egyedi igényei szerint alakítható.
A hatalmas, 2873 m2-es telken, amelynek hátsó szomszédja nincs, így a nappaliból a kilátás zavartalanul a természetre nyílik, akár önálló üzlethelyiség is építhető, vagy gazdálkodásra is kiválóan alkalmas a termékeny talaj és a fúrt kút miatt. A 180 m2 térkőburkolat, a 33 m2-es, két autó beállására alkalmas fedett kocsibeálló és a fedésre előkészített, 50 m2-es terasz teszi teljessé a külső környezetet. A biztonságról kamerás riasztórendszer gondoskodik, míg a villamoshálózat alkalmas nagy teljesítményű elektromos autó töltésére is.
Mivel az emelet még befejezésre vár, a vásárlással igénybe vehető az OTTHON START 3%-OS HITEL, a CSOK, a CSOK+, a FALUSI CSOK és az OTTHONTEREMTÉSI TÁMOGATÁS (3+3 millió Ft felújításra)!
Ne maradjon le erről a rendkívüli, minden igényt kielégítő, készen váró otthonról!
A vásárlás finanszírozásában az OTP kedvezőbb kamatozású hitelkonstrukcióival, Babaváró kölcsön és egyéb banki termékek kínálatával tudunk segíteni, díjmentesen, sorban állás nélkül!
Korrekt ügyvédi közreműködés: Az adásvételi szerződés lebonyolításához megbízható ügyvédet tudunk ajánlani.
Hívjon még ma, és tekintse meg személyesen ezt az egyedülálló befektetést!