Eladó Ház- házrész
Hirdetéskód: 9258251

5100 Jászberény Szentháromság tér 2. - OTP Ingatlanpont Iroda

Felújításhoz személyi kölcsönt keres? Kalkuláljon itt! →
FIX 3% Program

Ez a hirdetés megfelelhet a FIX 3%-os programnak.
Tudj meg többet a részletekről itt.

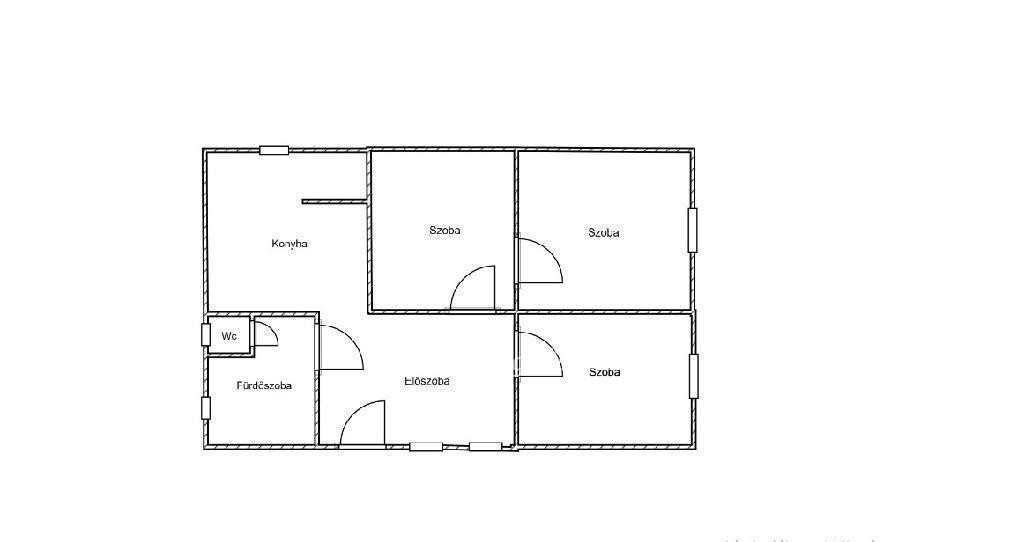
74.00 m2
ALAPTERÜLET
2
SZOBASZÁM
nincs megadva
ÉPÍTÉS
nincs megadva
FŰTÉS
  • CSOK igénybe vehető nem
  • Tetőtér beépíthető nem
  • Építés éve 1960
  • Klíma nem
  • Szigetelt nem
Energetikai besorolás: Nincs meghatározva
A+++
A++
A+
A
B
C
D
E
F
G
H
I

Az MBH Bank személyi kölcsön ajánlata

Fizetett hirdetés
1 millió Ft
6 évre
20 585 Ft/hó
THM: 14.5%
Részletek →
2 millió Ft
6 évre
41 169 Ft/hó
THM: 14.5%
Részletek →
3 millió Ft
6 évre
61 754 Ft/hó
THM: 14.5%
Részletek →

A tájékoztatás nem teljes körű és nem minősül ajánlattételnek.

Az ingatlan leírása

Cegléden, csendes környezetben eladó egy 74 négyzetméteres családi ház, 406 m2-es telken! Az ingatlan vegyes falazatú, elrendezése praktikus. Megtalálható benne előszoba, konyha, fürdőszoba külön wc-vel, nappali és két szoba. A fűtést gázkonvektor biztosítja és hűtő-fűtő klima is beszerelésre került, a maximális komfort érdekében. Az ingatlan minden közművel ellátott. A környék nyugodt és csendes, mégis minden elérhető távolságra van: óvoda, iskola, kórház és bevásárlási lehetőségek. Az Otp Ingatlanpont teljes körű ügyintézéssel áll az eladók és a vevők rendelkezésére! Az adásvételi szerződéshez megbízható ügyvédi közreműködést biztosítunk.

52500000 Ft

Térkép

A hirdető elérhetősége

5100 Jászberény Szentháromság tér 2. - OTP Ingatlanpont Iroda

Szűcsné Gellér Katalin
+36 20 382