Eladó Ház- házrész
Hirdetéskód: 9247884

OTP Ingatlanpont Csongrád

74.00 m2
ALAPTERÜLET
2
SZOBASZÁM
nincs megadva
ÉPÍTÉS
nincs megadva
FŰTÉS
  • CSOK igénybe vehető nem
  • Tetőtér beépíthető nem
  • Építés éve 1960
  • Klíma nem
  • Szigetelt nem
Energetikai besorolás: Nincs meghatározva
A+++
A++
A+
A
B
C
D
E
F
G
H
I

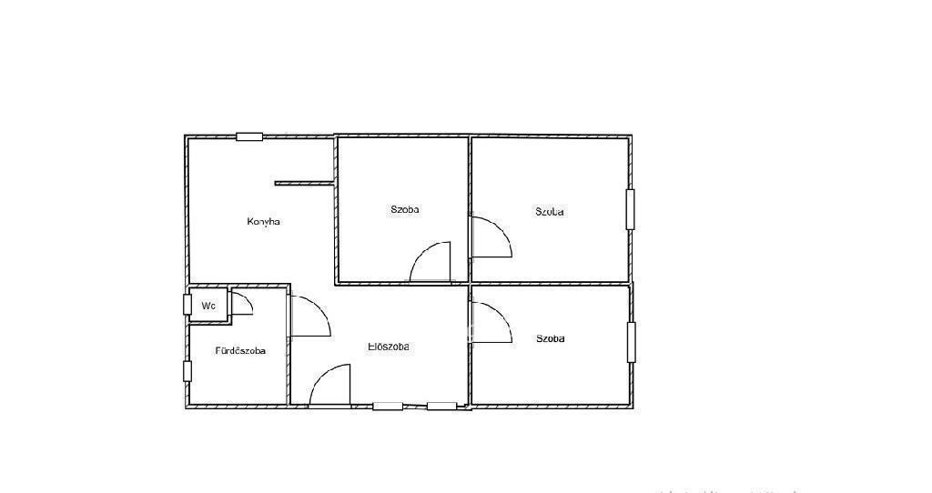
Az ingatlan leírása

Cegléden, csendes környezetben eladó egy 74 négyzetméteres családi ház, 406 m2-es telken! Az ingatlan vegyes falazatú, elrendezése praktikus. Megtalálható benne előszoba, konyha, fürdőszoba külön wc-vel, nappali és két szoba. A fűtést gázkonvektor biztosítja és hűtő-fűtő klima is beszerelésre került, a maximális komfort érdekében. Az ingatlan minden közművel ellátott. A környék nyugodt és csendes, mégis minden elérhető távolságra van: óvoda, iskola, kórház és bevásárlási lehetőségek. Az Otp Ingatlanpont teljes körű ügyintézéssel áll az eladók és a vevők rendelkezésére! Az adásvételi szerződéshez megbízható ügyvédi közreműködést biztosítunk.

Térkép

A hirdető elérhetősége

OTP Ingatlanpont Csongrád

Vincze Zoltán
+36 70 708