Eladó Ház- házrész
Hirdetéskód: 9247170
OTP Ingatlanpont Csongrád
153.00 m2
ALAPTERÜLET4
SZOBASZÁMnincs megadva
ÉPÍTÉSnincs megadva
FŰTÉS- CSOK igénybe vehető nem
- Tetőtér beépíthető nem
- Építés éve 1986
- Klíma nem
- Szigetelt nem
A+++
A++
A+
A
B
C
D
E
F
G
H
I
Az ingatlan leírása
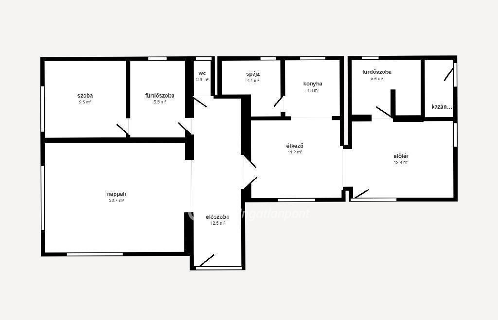
Cegléd központjának közelében, csendes utcában eladó egy kétszintes, 153 m2-es 4+1 félszobás családi ház. A telek mérete 516 m2. Az ingatlan a képeken látható átlagos állapotban van, rövid időn belül költözhető. Az földszinten található: -előszoba, -konyha+étkező, kamra, fürdőszoba, két db szoba
Az emeleti helyiségek: -előszoba, -WC helyiség, 2 szoba. Az udvar hátsó részében található továbbá egy melléképület. Kétgenerációs családi ház, emiatt a rezsiszámla nagyon kedvező. További információkért és részletekért keressen bizalommal, várom hívását akár hétvégén is. Ügyfeleinknek igény esetén kedvező hitelfeltételekkel hitelt, megbízható ügyvédi közreműködést, szerződéskötéshez irodai hátteret biztosítunk. Referencia szám: 305044
Az emeleti helyiségek: -előszoba, -WC helyiség, 2 szoba. Az udvar hátsó részében található továbbá egy melléképület. Kétgenerációs családi ház, emiatt a rezsiszámla nagyon kedvező. További információkért és részletekért keressen bizalommal, várom hívását akár hétvégén is. Ügyfeleinknek igény esetén kedvező hitelfeltételekkel hitelt, megbízható ügyvédi közreműködést, szerződéskötéshez irodai hátteret biztosítunk. Referencia szám: 305044