Eladó Ház- házrész
Hirdetéskód: 9180162

OTP Ingatlanpont Csongrád

697 m2
ALAPTERÜLET
4
SZOBASZÁM
nincs megadva
ÉPÍTÉS
nincs megadva
FŰTÉS
  • CSOK igénybe vehető nem
  • Tetőtér beépíthető nem
  • Építés éve 2025
  • Klíma nem
  • Szigetelt nem
Energetikai besorolás: Nincs meghatározva
A+++
A++
A+
A
B
C
D
E
F
G
H
I

Az ingatlan leírása

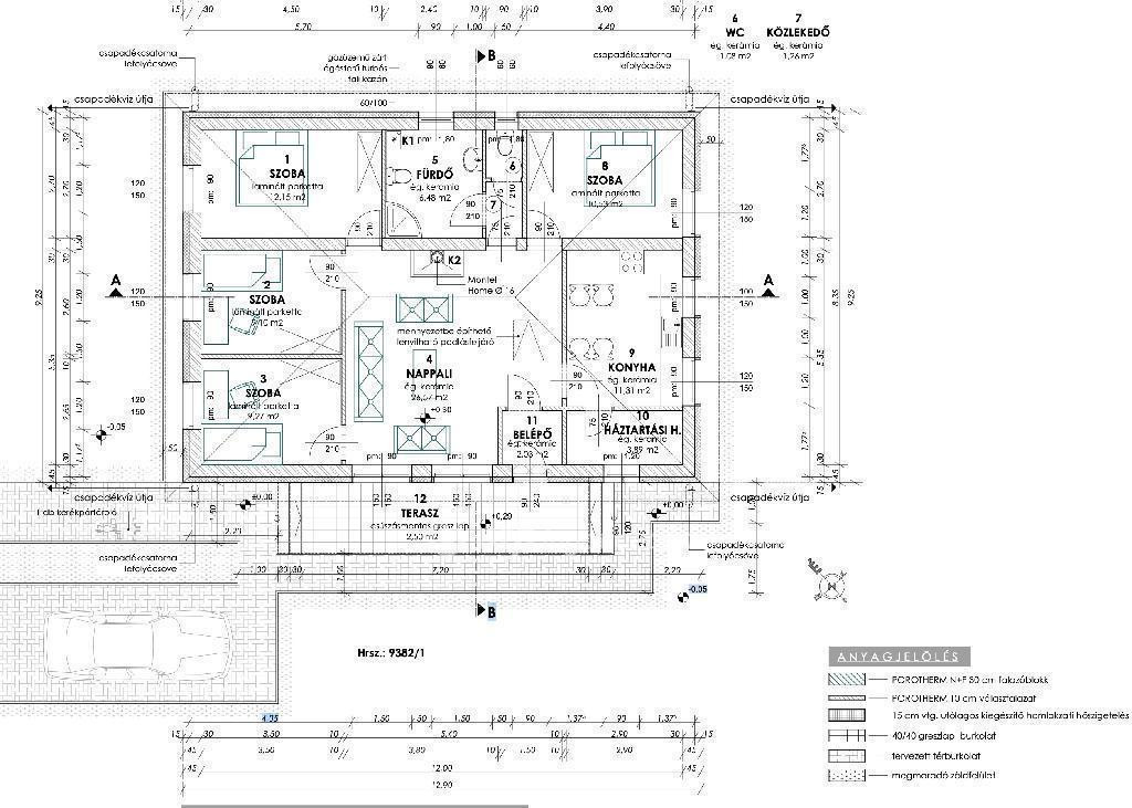
Cegléden eladó egy modern, minden részletében átgondolt új építésű ingatlan. Ez nem egy félig kész ház, hanem kulcsrakész otthon, ahol az alapoktól a tetőig minden a minőségre és a kényelemre lett tervezve. BB energetikai besorolás, alacsony rezsi, környezettudatos megoldások. Saját hőszivattyú és kondenzációs kazán, padlófűtés és radiátorok kombinációja, inverteres klíma beépítve. 10 cm-es hőszigetelés, modern műanyag nyílászárók redőnnyel. Biztonsági bejárati ajtó, terasz fagyálló burkolattal. Telek két utcára nyílik, kényelmes bejárhatóság és nagyobb érték. Burkolatok még választhatók, hidegburkolat 4.000 Ft/négyzetméterig benne az árban, melegburkolat 3.000 Ft/négyzetméterig benne az árban. Helyiségek: nappali, 4 hálószoba, konyha és étkező, fürdőszoba kád előkészítéssel, igény szerint zuhany is, külön WC kézmosóval, kamra, előtér és közlekedő, terasz. Ár: 84,1 millió Ft, akár hitellel is megvásárolható. Ha komolyan gondolod, itt nem lesz felesleges kör, jössz, megnézed, beleszeretsz, és tied lehet. Vásárlást szakszerű tanácsadással segítjük, a hitelügyintézés lebonyolítása pedig egy helyen, gyorsan megoldható.

Térkép

A hirdető elérhetősége

OTP Ingatlanpont Csongrád

Gyenes Martin
+36 30 375