Eladó Ház- házrész
Hirdetéskód: 9320840
Fővállalkozó Balla és Balla Kft
Felújításhoz személyi kölcsönt keres? Kalkuláljon itt! →660.00 m2
ALAPTERÜLET3
SZOBASZÁMnincs megadva
ÉPÍTÉSnincs megadva
FŰTÉS- CSOK igénybe vehető nem
- Tetőtér beépíthető nem
- Építés éve 1965
- Klíma nem
- Szigetelt nem
A+++
A++
A+
A
B
C
D
E
F
G
H
I
Az ingatlan leírása
Eladó családi ház Cegléd szívében - ahol a tér, a nyugalom és a lehetőségek találkoznak
Cegléd legbelső magjában, a városközpont közvetlen közelében, a különleges adottságú Szarvas utcában kínálunk megvételre egy önálló, földszintes családi házat, amely nemcsak otthonként, hanem életstílusként is új fejezetet nyithat.
A Szarvas utca egy csendes mellékutca, mégis olyan széles, mint egy főút - ritka adottság, amely kényelmet és tágasságot biztosít. Az utcán kényelmesen lehet parkolni, de a telek mérete és kialakítása lehetővé teszi, hogy akár egy esküvői vendégsereg is be tudjon hajtani és parkolni. A széles kapu és külön személybejárat elegáns és praktikus megoldás.
A 660 m²-es telek teljes közművel rendelkezik: gáz, nappali és vezérelt áram, víz, csatorna – minden adott a modern életvitelhez. A 20 méteres utcafronti szélesség pedig nemcsak impozáns, hanem további lehetőségeket is rejt.
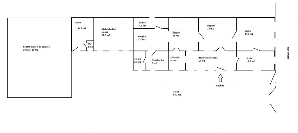
A délkeleti fekvésű, földszintes főépület 124 m²-es, nappali + két hálószobás, étkezős, nagy konyhás, beépített verandás, kamrás és tágas fürdőszobás elrendezésével ideális családi otthon. A 290 cm-es belmagasság levegőssé és elegánssá teszi a tereket. A ház 30 cm-es lábazattal rendelkezik, amely stabilitást és esztétikai keretet biztosít az épületnek. A fűtés gázkazánnal és radiátorokkal megoldott, néhány helyiségben a régi gázkonvektorok is megmaradtak. Az épület műszakilag korszerűsítendő és felújítandó, falazata vegyes - tégla és vályog -, ami lehetőséget ad egyedi építészeti megoldásokra.
A melléképület 40 m²-es, szintén közművesített, innen érhető el a padlástér. A mögötte található 35 m²-es fedett raktár és az 50 m²-es fedett parkoló további értéket képvisel.
Jelenleg a gáz- és áramszolgáltatás fel van függesztve, de a rendszerek kiépítettek - az új tulajdonosnak csak aktiváltatnia kell.
Környezeti leírás
A Szarvas utca Cegléd egyik legbensőségesebb része: nyugodt, barátságos, mégis központi elhelyezkedésű. A környék rendezett, a szomszédság csendes, családias. A közeli városközpontban minden megtalálható: boltok, piac, kávézók, éttermek, iskola, óvoda, orvosi rendelő - mindössze néhány perc sétára. A telek mérete és elhelyezkedése ritka kincs ebben a városi szövetben.
Közlekedési leírás
A közlekedés kiváló: a Szarvas utca központi elhelyezkedése révén gyalogosan is könnyen elérhető minden fontos intézmény és szolgáltatás. A vasútállomás és a buszpályaudvar néhány perc alatt elérhető, így Budapest vagy a környező települések irányába is gyorsan és kényelmesen lehet utazni. Az autós közlekedés szempontjából a széles utca és a tágas telek különösen előnyös, akár több jármű számára is biztosított a parkolás.
Ez az ingatlan nem csupán egy ház - ez egy lehetőség arra, hogy Cegléd szívében, egy különleges adottságú telken, saját álomotthont teremtsen.
Cegléd legbelső magjában, a városközpont közvetlen közelében, a különleges adottságú Szarvas utcában kínálunk megvételre egy önálló, földszintes családi házat, amely nemcsak otthonként, hanem életstílusként is új fejezetet nyithat.
A Szarvas utca egy csendes mellékutca, mégis olyan széles, mint egy főút - ritka adottság, amely kényelmet és tágasságot biztosít. Az utcán kényelmesen lehet parkolni, de a telek mérete és kialakítása lehetővé teszi, hogy akár egy esküvői vendégsereg is be tudjon hajtani és parkolni. A széles kapu és külön személybejárat elegáns és praktikus megoldás.
A 660 m²-es telek teljes közművel rendelkezik: gáz, nappali és vezérelt áram, víz, csatorna – minden adott a modern életvitelhez. A 20 méteres utcafronti szélesség pedig nemcsak impozáns, hanem további lehetőségeket is rejt.
A délkeleti fekvésű, földszintes főépület 124 m²-es, nappali + két hálószobás, étkezős, nagy konyhás, beépített verandás, kamrás és tágas fürdőszobás elrendezésével ideális családi otthon. A 290 cm-es belmagasság levegőssé és elegánssá teszi a tereket. A ház 30 cm-es lábazattal rendelkezik, amely stabilitást és esztétikai keretet biztosít az épületnek. A fűtés gázkazánnal és radiátorokkal megoldott, néhány helyiségben a régi gázkonvektorok is megmaradtak. Az épület műszakilag korszerűsítendő és felújítandó, falazata vegyes - tégla és vályog -, ami lehetőséget ad egyedi építészeti megoldásokra.
A melléképület 40 m²-es, szintén közművesített, innen érhető el a padlástér. A mögötte található 35 m²-es fedett raktár és az 50 m²-es fedett parkoló további értéket képvisel.
Jelenleg a gáz- és áramszolgáltatás fel van függesztve, de a rendszerek kiépítettek - az új tulajdonosnak csak aktiváltatnia kell.
Környezeti leírás
A Szarvas utca Cegléd egyik legbensőségesebb része: nyugodt, barátságos, mégis központi elhelyezkedésű. A környék rendezett, a szomszédság csendes, családias. A közeli városközpontban minden megtalálható: boltok, piac, kávézók, éttermek, iskola, óvoda, orvosi rendelő - mindössze néhány perc sétára. A telek mérete és elhelyezkedése ritka kincs ebben a városi szövetben.
Közlekedési leírás
A közlekedés kiváló: a Szarvas utca központi elhelyezkedése révén gyalogosan is könnyen elérhető minden fontos intézmény és szolgáltatás. A vasútállomás és a buszpályaudvar néhány perc alatt elérhető, így Budapest vagy a környező települések irányába is gyorsan és kényelmesen lehet utazni. Az autós közlekedés szempontjából a széles utca és a tágas telek különösen előnyös, akár több jármű számára is biztosított a parkolás.
Ez az ingatlan nem csupán egy ház - ez egy lehetőség arra, hogy Cegléd szívében, egy különleges adottságú telken, saját álomotthont teremtsen.