Eladó Ház- házrész
Hirdetéskód: 9308658
OTP Ingatlanpont Csongrád
Felújításhoz személyi kölcsönt keres? Kalkuláljon itt! →
Ez a hirdetés megfelelhet a FIX 3%-os programnak.
Tudj meg többet a részletekről itt.
440.00 m2
ALAPTERÜLET12
SZOBASZÁMnincs megadva
ÉPÍTÉSGáz (cirkó)
FŰTÉS- CSOK igénybe vehető nem
- Tetőtér beépíthető nem
- Építés éve 1980
- Fűtés Gáz (cirkó)
- Klíma nem
- Szigetelt nem
A+++
A++
A+
A
B
C
D
E
F
G
H
I
Az ingatlan leírása
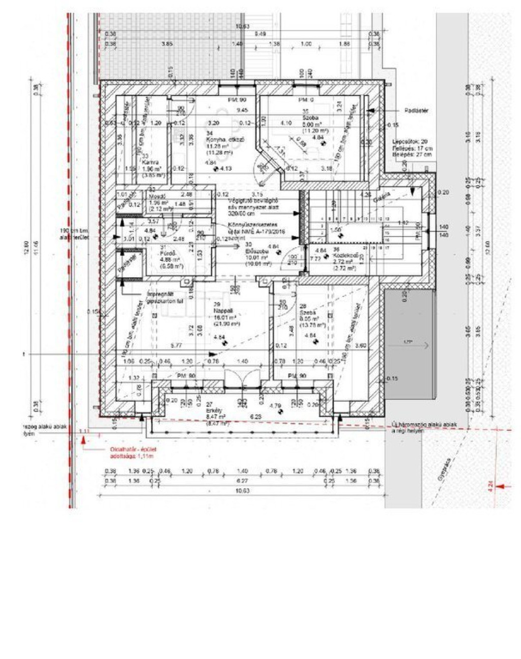
Cegléd kertvárosi részén kínálunk megvételre egy 1063 nm-es telken elhelyezkedő, fejlesztési célra előkészített ingatlant. A projekt keretében összesen 440 nm lakóterület kialakítása lehetséges, több, piacképes méretű lakás formájában.
Az ingatlan paraméterei és a rendelkezésre álló tervek alapján több lakásos fejlesztés megvalósítására alkalmas. A koncepció kifejezetten értékesíthető, hitelezhető lakások kialakítására épül, amelyet a rendelkezésre álló látványtervek is alátámasztanak.
A műszaki előkészítettség kiemelkedő: a közművek tekintetében a gáz-, villany- és vízórák, valamint a csatorna bekötések már kiépítésre kerültek, ami a kivitelezési idő és költségek szempontjából jelentős előnyt jelent. A felújítási és átalakítási munkálatok megkezdődtek, így a beruházás egy előrehaladott fázisból folytatható.
Az ingatlan lokációja és fejlesztési adottságai alapján elsősorban ingatlanfejlesztők és professzionális befektetők számára jelent lehetőséget.
A projekt folytatása és sikeres megvalósítása érdekében olyan vevő jelentkezését várjuk, aki megfelelő tőkeerővel rendelkezik a beruházás további finanszírozásához, és képes a fejlesztést üzletileg megalapozott módon, hatékonyan végig vinni a kivitelezéstől az értékesítésig.
Amennyiben a projekt finanszírozáshoz KAVOSZ ügyintézés vagy banki finanszírozás válna szükségessé, hitelszakértői csapatunk díjmentesen segíti azt. Az OTP Ingatlanpont Kft. a létrejött ingatlanok előértékesítését, valamint a projekt befejezésekor azok eladásának menedzselését teljes körűen vállalja.
További információért vagy megtekintés egyeztetéséhez várom megkeresését.
Az ingatlan finanszírozásához az OTP Pénzügyi Pont hitelszakértői teljeskörű segítséget nyújtanak. Az OTP Ingatlanpont ügyfelei számára az ingatlanvásárlással kapcsolatos hitelügyintézés díjmentes. Igény esetén megbízható ügyvédi közreműködést is biztosítunk az adásvételhez. Érdeklődés esetén várom megtisztelő hívását, akár hétvégén is!
Az ingatlan paraméterei és a rendelkezésre álló tervek alapján több lakásos fejlesztés megvalósítására alkalmas. A koncepció kifejezetten értékesíthető, hitelezhető lakások kialakítására épül, amelyet a rendelkezésre álló látványtervek is alátámasztanak.
A műszaki előkészítettség kiemelkedő: a közművek tekintetében a gáz-, villany- és vízórák, valamint a csatorna bekötések már kiépítésre kerültek, ami a kivitelezési idő és költségek szempontjából jelentős előnyt jelent. A felújítási és átalakítási munkálatok megkezdődtek, így a beruházás egy előrehaladott fázisból folytatható.
Az ingatlan lokációja és fejlesztési adottságai alapján elsősorban ingatlanfejlesztők és professzionális befektetők számára jelent lehetőséget.
A projekt folytatása és sikeres megvalósítása érdekében olyan vevő jelentkezését várjuk, aki megfelelő tőkeerővel rendelkezik a beruházás további finanszírozásához, és képes a fejlesztést üzletileg megalapozott módon, hatékonyan végig vinni a kivitelezéstől az értékesítésig.
Amennyiben a projekt finanszírozáshoz KAVOSZ ügyintézés vagy banki finanszírozás válna szükségessé, hitelszakértői csapatunk díjmentesen segíti azt. Az OTP Ingatlanpont Kft. a létrejött ingatlanok előértékesítését, valamint a projekt befejezésekor azok eladásának menedzselését teljes körűen vállalja.
További információért vagy megtekintés egyeztetéséhez várom megkeresését.
Az ingatlan finanszírozásához az OTP Pénzügyi Pont hitelszakértői teljeskörű segítséget nyújtanak. Az OTP Ingatlanpont ügyfelei számára az ingatlanvásárlással kapcsolatos hitelügyintézés díjmentes. Igény esetén megbízható ügyvédi közreműködést is biztosítunk az adásvételhez. Érdeklődés esetén várom megtisztelő hívását, akár hétvégén is!