Eladó Ház- házrész
Hirdetéskód: 9319186
HOUSE36 Ingatlanhálózat
Felújításhoz személyi kölcsönt keres? Kalkuláljon itt! →107.00 m2
ALAPTERÜLET4
SZOBASZÁMnincs megadva
ÉPÍTÉSEgyéb fűtés
FŰTÉS- CSOK igénybe vehető nem
- Tetőtér beépíthető nem
- Építés éve 2026
- Fűtés Egyéb fűtés
- Klíma nem
- Szigetelt nem
A+++
A++
A+
A
B
C
D
E
F
G
H
I
Az ingatlan leírása
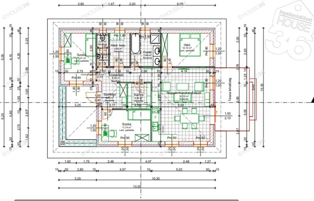
*Új építésű családi ház Bugacon*
Bugac nagyközség belterületén, frekventált helyen eladó új építésű családi ház.
A telek jól megközelíthető, betonos utcában, közelben buszmegálló, iskola, bolt.
A feltüntetett ár tartalmazza a telek árát, kulcsrakész tégla építésű házat és a teljes közmű kiépítését.
Műszaki tartalom:
-teherhordó falazat: Wienerberger Porotherm 30X-Therm tégla
-válaszfal: Wienerberger Porotherm 10 tégla
-homlokzati hőszigetelés: 15 cm EPS
-tetőhéjazat választható: Bramac, Leier vagy Terrán tetőcserép 11 színben
-külső nyílászárók: 3 üvegrétegű prémium nyílászáró
-hideg burkolat: 7500 ft/m2-ig
-meleg burkolat választható: 6000 ft/m2-ig
-szaniterek választható:(kád,zuhany,csaptelep) 580.000 ft/100 m2-ig
-bejárati ajtó választható: 250.000 ft- ig
-teraszajtó választható: 250.000 ft-ig
-beltéri ajtó választható 90.000 ft -ig
-gépészet választható: Bosch levegő-víz hőszivattyú padlófűtéssel+inverteres klíma
A feltüntetett ár tájékoztató jellegű, a jelen tervre készült kalkuláció. Egyedi tervezés és egyedi igények alapján a költségek változhatnak.
Figyelem az adatlap megbízónktól kapott adatok alapján készül, pontosságáért felelősséget nem tudunk vállalni!
A tulajdonos kérésére az ingatlan bemutatása egy személyes konzultáció bemutatása után történik, ahol részletes tájékoztatást kaphat az ingatlan paramétereiről és egyéb kényelmi szolgáltatásairól.A HOUSE36 kínálatában található össze ingatlannal kapcsolatban tudok felvilágosítást nyújtani!
Bugac nagyközség belterületén, frekventált helyen eladó új építésű családi ház.
A telek jól megközelíthető, betonos utcában, közelben buszmegálló, iskola, bolt.
A feltüntetett ár tartalmazza a telek árát, kulcsrakész tégla építésű házat és a teljes közmű kiépítését.
Műszaki tartalom:
-teherhordó falazat: Wienerberger Porotherm 30X-Therm tégla
-válaszfal: Wienerberger Porotherm 10 tégla
-homlokzati hőszigetelés: 15 cm EPS
-tetőhéjazat választható: Bramac, Leier vagy Terrán tetőcserép 11 színben
-külső nyílászárók: 3 üvegrétegű prémium nyílászáró
-hideg burkolat: 7500 ft/m2-ig
-meleg burkolat választható: 6000 ft/m2-ig
-szaniterek választható:(kád,zuhany,csaptelep) 580.000 ft/100 m2-ig
-bejárati ajtó választható: 250.000 ft- ig
-teraszajtó választható: 250.000 ft-ig
-beltéri ajtó választható 90.000 ft -ig
-gépészet választható: Bosch levegő-víz hőszivattyú padlófűtéssel+inverteres klíma
A feltüntetett ár tájékoztató jellegű, a jelen tervre készült kalkuláció. Egyedi tervezés és egyedi igények alapján a költségek változhatnak.
Figyelem az adatlap megbízónktól kapott adatok alapján készül, pontosságáért felelősséget nem tudunk vállalni!
A tulajdonos kérésére az ingatlan bemutatása egy személyes konzultáció bemutatása után történik, ahol részletes tájékoztatást kaphat az ingatlan paramétereiről és egyéb kényelmi szolgáltatásairól.A HOUSE36 kínálatában található össze ingatlannal kapcsolatban tudok felvilágosítást nyújtani!