Eladó Ház- házrész
Hirdetéskód: 9276132
GDN Ingatlanhálózat - Csombók ELAN
Felújításhoz személyi kölcsönt keres? Kalkuláljon itt! →64.00 m2
ALAPTERÜLET3
SZOBASZÁMnincs megadva
ÉPÍTÉSnincs megadva
FŰTÉS- CSOK igénybe vehető nem
- Tetőtér beépíthető nem
- Klíma nem
- Szigetelt nem
A+++
A++
A+
A
B
C
D
E
F
G
H
I
Az ingatlan leírása
Budapest XXIII. kerület kertvárosban, központi elhelyezkedéssel, eladó új építésű 3 lakásos sorházban szélső lakás 77,5 MFt.
Az ingatlan csendes, mégis központi helyen található, Hősök tere, HÉV megálló, buszmegálló kb. 15-20 perc séta távolságra van.
Műszaki adatok: - 30-as téglából épült
- 15 cm austrotherm grafit homlokzati hőszigetelés
- műanyag nyílászárók, 3 rétegű üvegezéssel,
beépített redőnytokos, redőnyös
- fűtés: légcsatornás hőszivattyús rendszer
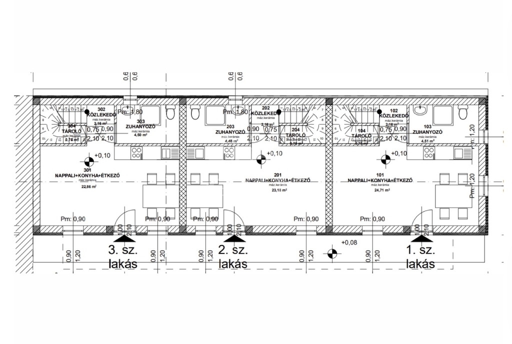
Lakás elosztása:
földszint: - nappali-konyha-étkező (24,71 nm)
- fürdőszoba (4,51 nm)
- közlekedő, tároló (2,86 nm)
- terasz (13nm)
emelet: - szoba (11,95 nm)
- szoba (11,85 nm)
- fürdőszba (2,67 nm)
- közlekedő (2,46 nm)
- erkély (6,81 nm)
A lakásokhoz zárt udvaron belül saját parkoló tartozik.
Az ár tartalmazza a teljes kulcsrakész állapotot: fürdőszobák, szobák, nappali-konyha-étkező burkolás, festés, szaniterek, csaptelepek (konyhabútor kivételével).
Jelenleg az építkezés, festés, burkolás, kerti munkálatok fázisnál tart, az ingatlan 2026. április 1.-én birtokba vehető, költözhető.
Az ingatlan NEM HITELEZHETŐ !!!
Amivel segítjük az Ön ingatlan vásárlását:
- jogi háttér,
- földhivatali ügyintézés,
- energetikai tanúsítvány ügyintézése,
- vevő számára ingyenes az ingatlanközvetítés
Irodánk 30 éves tapasztalattal áll ügyfelei rendelkezésére!
Várom szíves megkeresését! ...TOVÁBBI, TÖBBEZRES INGATLAN KÍNÁLAT: - GDN azonosító: 392718
Az ingatlan csendes, mégis központi helyen található, Hősök tere, HÉV megálló, buszmegálló kb. 15-20 perc séta távolságra van.
Műszaki adatok: - 30-as téglából épült
- 15 cm austrotherm grafit homlokzati hőszigetelés
- műanyag nyílászárók, 3 rétegű üvegezéssel,
beépített redőnytokos, redőnyös
- fűtés: légcsatornás hőszivattyús rendszer
Lakás elosztása:
földszint: - nappali-konyha-étkező (24,71 nm)
- fürdőszoba (4,51 nm)
- közlekedő, tároló (2,86 nm)
- terasz (13nm)
emelet: - szoba (11,95 nm)
- szoba (11,85 nm)
- fürdőszba (2,67 nm)
- közlekedő (2,46 nm)
- erkély (6,81 nm)
A lakásokhoz zárt udvaron belül saját parkoló tartozik.
Az ár tartalmazza a teljes kulcsrakész állapotot: fürdőszobák, szobák, nappali-konyha-étkező burkolás, festés, szaniterek, csaptelepek (konyhabútor kivételével).
Jelenleg az építkezés, festés, burkolás, kerti munkálatok fázisnál tart, az ingatlan 2026. április 1.-én birtokba vehető, költözhető.
Az ingatlan NEM HITELEZHETŐ !!!
Amivel segítjük az Ön ingatlan vásárlását:
- jogi háttér,
- földhivatali ügyintézés,
- energetikai tanúsítvány ügyintézése,
- vevő számára ingyenes az ingatlanközvetítés
Irodánk 30 éves tapasztalattal áll ügyfelei rendelkezésére!
Várom szíves megkeresését! ...TOVÁBBI, TÖBBEZRES INGATLAN KÍNÁLAT: - GDN azonosító: 392718