Eladó Ház- házrész
Hirdetéskód: 9325187
GDN Ingatlanhálózat - Csombók ELAN
Felújításhoz személyi kölcsönt keres? Kalkuláljon itt! →
Ez a hirdetés megfelelhet a FIX 3%-os programnak.
Tudj meg többet a részletekről itt.
104.00 m2
ALAPTERÜLET5
SZOBASZÁMnincs megadva
ÉPÍTÉSGáz (cirkó)
FŰTÉS- CSOK igénybe vehető nem
- Tetőtér beépíthető nem
- Fűtés Gáz (cirkó)
- Klíma nem
- Szigetelt nem
A+++
A++
A+
A
B
C
D
E
F
G
H
I
Az ingatlan leírása
Eladásra kínálunk egy jó állapotú ikerházat Budapest kertvárosi részén, Orbánhegyen.
Az ingatlan 104 négyzetméteres, 5 különálló szobával rendelkezik, ideális választás nagyobb családok számára.
A kertre néző kilátás minden évszakban gyönyörű, a 382 négyzetméteres kert pedig bőven teret ad kikapcsolódásra és szabadidős tevékenységekre.
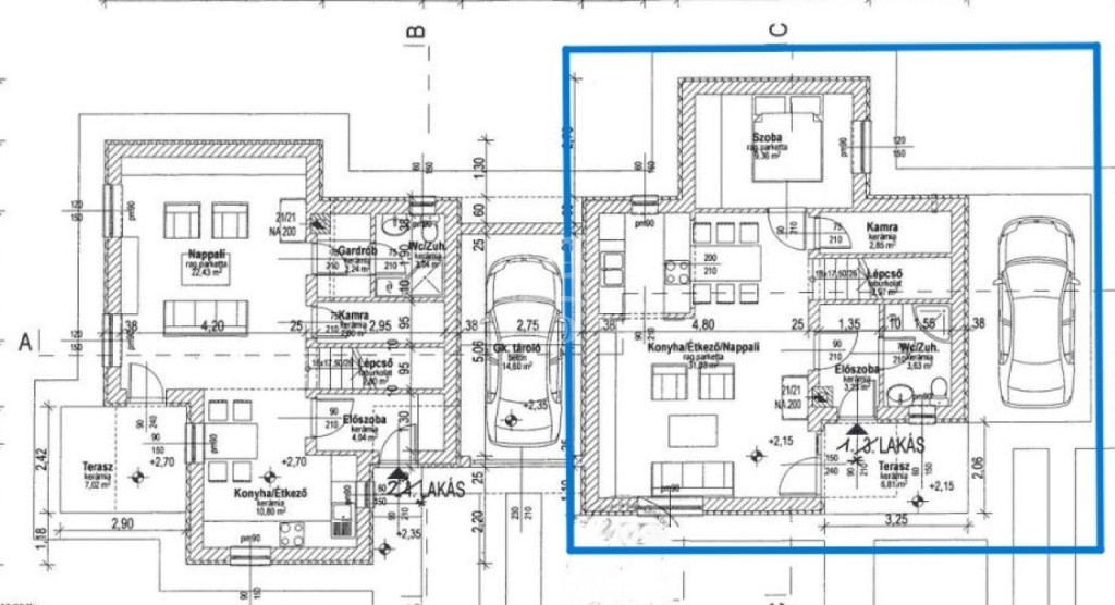
INGATLAN BEOSZTÁSA:
Földszint:
- előtér 3,23 m2,
- nappali + étkező 31,03 m2,
- konyha (szoba) 9,36 m2,
- fürdő + wc 3,63 m2,
- kamra 2,85 m2,
- terasz 6,81 m2.
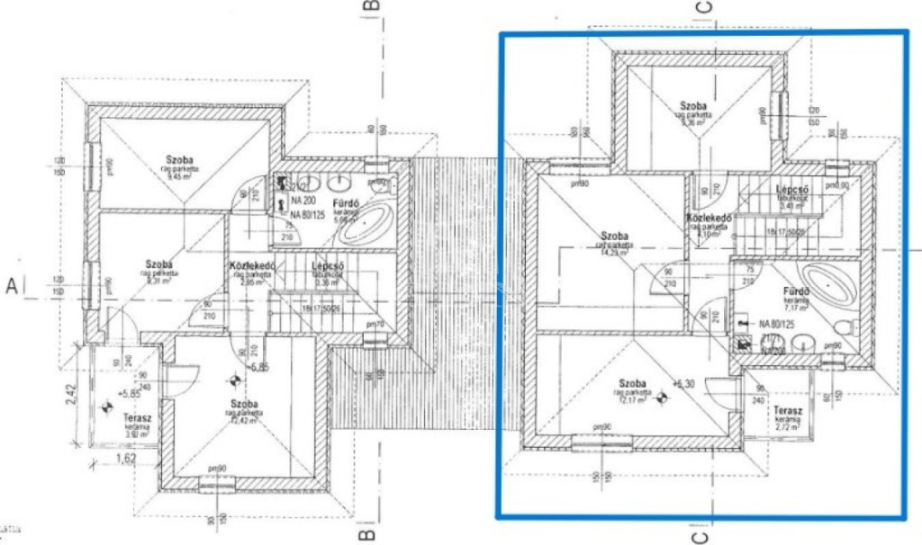
Emelet:
- szoba 9,36 m2,
- szoba 14,23 m2,
- szoba 12,17 m2,
- fürdő + wc 7,17 m2,
- közlekedő 4,1 m2,
- terasz 2,72 m2.
FELSZERELTSÉG:
- riasztó,
- fűtést gázkazán biztosítja,
- földszinten padlófűtés,
- hűtő-fűtő klíma,
- minőségi fa nyílászárók,
- elektromos kapunak kiállás rendelkezésre áll,
- földszinti teraszon kitekerős napernyő,
- gépkocsi beálló.
KÖZLEKEDÉS + környezet:
H6-os HÉV által Budapest Közvágóhíd 20 perc alatt elérhető, autóval pár perc az M0-ás autópálya. Buszok: 655-ös Volán busz (Népliget vá.), a 66-os és a 66E BKK járat (Határ út vá.). A közelben LIDL és Aldi nyújt bevásárlási lehetőséget. Iskola egy megálló távolságra.
Az ikerház kiválóan illeszkedik a környező kertvárosias hangulathoz, ideális otthona lehet a nyugalomra vágyóknak.
Befektetésnek is alkalmas, a környéken 450.000-600.000 Ft/hó + rezsi áron vannak hasonló kiadó ingatlanok, ami évente 7.000.000,- Ft bevételt is jelenthet.
Amivel segítjük az Ön ingatlanvásárlását:
- ingyenes hitelügyintézés,
- jogi háttér,
- földhivatali ügyintézés,
- energetikai tanúsítvány.
Irodánk 30 éves szakmai tapasztalattal áll ügyfelei rendelkezésére!
Várom szíves megkeresését!
Ne hagyja ki ezt a remek lehetőséget, tekintse meg ezt a csodálatos ingatlant! ...TOVÁBBI, TÖBBEZRES INGATLAN KÍNÁLAT: - GDN azonosító: 394796
Az ingatlan 104 négyzetméteres, 5 különálló szobával rendelkezik, ideális választás nagyobb családok számára.
A kertre néző kilátás minden évszakban gyönyörű, a 382 négyzetméteres kert pedig bőven teret ad kikapcsolódásra és szabadidős tevékenységekre.
INGATLAN BEOSZTÁSA:
Földszint:
- előtér 3,23 m2,
- nappali + étkező 31,03 m2,
- konyha (szoba) 9,36 m2,
- fürdő + wc 3,63 m2,
- kamra 2,85 m2,
- terasz 6,81 m2.
Emelet:
- szoba 9,36 m2,
- szoba 14,23 m2,
- szoba 12,17 m2,
- fürdő + wc 7,17 m2,
- közlekedő 4,1 m2,
- terasz 2,72 m2.
FELSZERELTSÉG:
- riasztó,
- fűtést gázkazán biztosítja,
- földszinten padlófűtés,
- hűtő-fűtő klíma,
- minőségi fa nyílászárók,
- elektromos kapunak kiállás rendelkezésre áll,
- földszinti teraszon kitekerős napernyő,
- gépkocsi beálló.
KÖZLEKEDÉS + környezet:
H6-os HÉV által Budapest Közvágóhíd 20 perc alatt elérhető, autóval pár perc az M0-ás autópálya. Buszok: 655-ös Volán busz (Népliget vá.), a 66-os és a 66E BKK járat (Határ út vá.). A közelben LIDL és Aldi nyújt bevásárlási lehetőséget. Iskola egy megálló távolságra.
Az ikerház kiválóan illeszkedik a környező kertvárosias hangulathoz, ideális otthona lehet a nyugalomra vágyóknak.
Befektetésnek is alkalmas, a környéken 450.000-600.000 Ft/hó + rezsi áron vannak hasonló kiadó ingatlanok, ami évente 7.000.000,- Ft bevételt is jelenthet.
Amivel segítjük az Ön ingatlanvásárlását:
- ingyenes hitelügyintézés,
- jogi háttér,
- földhivatali ügyintézés,
- energetikai tanúsítvány.
Irodánk 30 éves szakmai tapasztalattal áll ügyfelei rendelkezésére!
Várom szíves megkeresését!
Ne hagyja ki ezt a remek lehetőséget, tekintse meg ezt a csodálatos ingatlant! ...TOVÁBBI, TÖBBEZRES INGATLAN KÍNÁLAT: - GDN azonosító: 394796