Eladó Ház- házrész
Hirdetéskód: 9179338
OTP Ingatlanpont - Budapest IX. ker., Üllői út 21.
367.00 m2
ALAPTERÜLET6
SZOBASZÁMnincs megadva
ÉPÍTÉSnincs megadva
FŰTÉS- CSOK igénybe vehető nem
- Tetőtér beépíthető nem
- Építés éve 2001
- Klíma nem
- Szigetelt nem
A+++
A++
A+
A
B
C
D
E
F
G
H
I
Az ingatlan leírása
TÖBB GENERÁCIÓ EGYÜTTÉLÉSÉRE ALKALMAS, SZÁMOS IGÉNYT KIELÉGÍTŐ, CSODÁLATOS PANORÁMÁVAL RENDELKEZŐ CSALÁDI HÁZ ELADÓ KELENVÖLGY-RÓZSAVÖLGY HATÁRÁN.
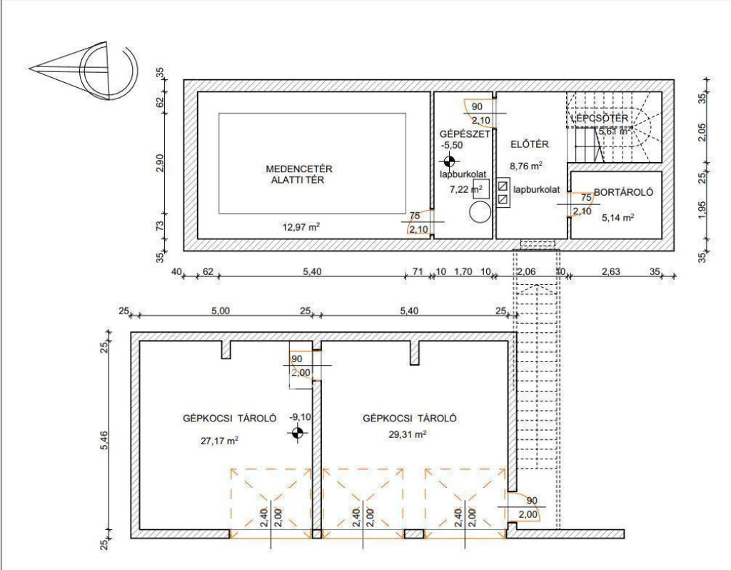
Lakótér 326m2
Garázsok 56m2
Erkélyek, Teraszok 50m2
Gépészeti és egyéb tároló helységek 40m2
Az Ingatlan főbb jellemzői:
-Tágas terek: Az ingatlan tervezésekor a tágas terek kiemelt szerepet kaptak. Az első lakószinten a nappali, étkező és konyha területe egybefonódik, így kényelmes közösségi teret nyújt a család tagjai számára.
- Több generáció együttélésére alkalmas: Egyedi lehetőség azoknak, akik több generáció együttélését kívánják kényelmesen megvalósítani.
- Tárolási lehetőségek: Az ingatlan szintjein rengeteg tárolási lehetőség áll rendelkezésre.
- Örök panorámás kilátás: A ház ideális tájolása lehetővé teszi a panorámás kilátást a városra, a budai hegyekre. A teraszok és ablakok elhelyezkedése révén több szobából is élvezhető a varázslatos látvány.
- Belső medence és infraszauna: A ház különlegességei a belső medence és a cédrusfából készült infraszauna, melyek évszaktól függetlenül biztosítják a wellness élményét, a kikapcsolódás és egészségmegőrzés lehetőségét.
- Hobbi borászok számára is ideális :A kertben néhány sor termő szőlő ,a kertben pince és a házban egy speciális temperált borospince ami gondoskodik a borok számára ideális hőmérsékletről és páratartalomról
- Zöld energia felhasználása: A ház 32nm felület napelemmel rendelkezik, ami az év nagy részében a ház teljes áram ellátását fedezi, ezen kívül egy 2 elemből álló napkollektor rendszer a medence és a hálózati melegvíz ellátásába segít.
Az első lakószint kialakítása: nappali, konyha, étkező egy légtérben melyhez 2 terasz is kapcsolódik. A nappali egy részében olvasósarok található, ahol hidegebb időkben élvezhetjük a hangulatos kandalló nyújtotta meleget. A szinten ezenkívül hálószoba, dolgozószoba, fürdőszoba és külön wc található
A felső lakószint kialakítása: nappali, melyhez egy félig fedett terasz kapcsolódik, konyha, melyhez szintén terasz tartozik, 2 hálószoba, fürdőszoba és egy külön wc található.
Az alsóbb szinteken került kialakításra a wellness tér, tároló helyiségek, mosókonyha, borospince, gépészet és a garázs. Az Ingatlan rendszeresen karbantartott, jó állapotú. Az érett, gondozott kertben szőlő, rengeteg rózsa és magnóliafa van. Az 1030 m2 telken egy 2 szintes kisház is van, mely további életteret kínál a család számára.
Ez a városrész ideális egy nyugodt élet megvalósítására a család számára, mert a város zajától távol, de mégis könnyen elérhető közelségben helyezkedik el. Kelenföldi metró végállomástól autóval 5 perc, autóbusszal 10perc alatt juthatunk el. 41 Fonódó villamos megálló pár perc sétatávolságra az utca végén található.
Ha Ön szeretné megteremteni a tökéletes otthont, ahol a család minden tagja kényelmesen elfér, és ahol a modern élet összhangban van a természettel és a panorámával, akkor ne habozzon megnézni ezt a hangulatos családi házat.
További információért illetve megtekintés miatt várom hívását!
Az OTP Bankcsoport teljes körű ügyintézéssel áll az eladók és a vevők rendelkezésére! A kínálatunkból választott ingatlan finanszírozásához kedvezményes hitelkonstrukciókat kínálunk.
Lakótér 326m2
Garázsok 56m2
Erkélyek, Teraszok 50m2
Gépészeti és egyéb tároló helységek 40m2
Az Ingatlan főbb jellemzői:
-Tágas terek: Az ingatlan tervezésekor a tágas terek kiemelt szerepet kaptak. Az első lakószinten a nappali, étkező és konyha területe egybefonódik, így kényelmes közösségi teret nyújt a család tagjai számára.
- Több generáció együttélésére alkalmas: Egyedi lehetőség azoknak, akik több generáció együttélését kívánják kényelmesen megvalósítani.
- Tárolási lehetőségek: Az ingatlan szintjein rengeteg tárolási lehetőség áll rendelkezésre.
- Örök panorámás kilátás: A ház ideális tájolása lehetővé teszi a panorámás kilátást a városra, a budai hegyekre. A teraszok és ablakok elhelyezkedése révén több szobából is élvezhető a varázslatos látvány.
- Belső medence és infraszauna: A ház különlegességei a belső medence és a cédrusfából készült infraszauna, melyek évszaktól függetlenül biztosítják a wellness élményét, a kikapcsolódás és egészségmegőrzés lehetőségét.
- Hobbi borászok számára is ideális :A kertben néhány sor termő szőlő ,a kertben pince és a házban egy speciális temperált borospince ami gondoskodik a borok számára ideális hőmérsékletről és páratartalomról
- Zöld energia felhasználása: A ház 32nm felület napelemmel rendelkezik, ami az év nagy részében a ház teljes áram ellátását fedezi, ezen kívül egy 2 elemből álló napkollektor rendszer a medence és a hálózati melegvíz ellátásába segít.
Az első lakószint kialakítása: nappali, konyha, étkező egy légtérben melyhez 2 terasz is kapcsolódik. A nappali egy részében olvasósarok található, ahol hidegebb időkben élvezhetjük a hangulatos kandalló nyújtotta meleget. A szinten ezenkívül hálószoba, dolgozószoba, fürdőszoba és külön wc található
A felső lakószint kialakítása: nappali, melyhez egy félig fedett terasz kapcsolódik, konyha, melyhez szintén terasz tartozik, 2 hálószoba, fürdőszoba és egy külön wc található.
Az alsóbb szinteken került kialakításra a wellness tér, tároló helyiségek, mosókonyha, borospince, gépészet és a garázs. Az Ingatlan rendszeresen karbantartott, jó állapotú. Az érett, gondozott kertben szőlő, rengeteg rózsa és magnóliafa van. Az 1030 m2 telken egy 2 szintes kisház is van, mely további életteret kínál a család számára.
Ez a városrész ideális egy nyugodt élet megvalósítására a család számára, mert a város zajától távol, de mégis könnyen elérhető közelségben helyezkedik el. Kelenföldi metró végállomástól autóval 5 perc, autóbusszal 10perc alatt juthatunk el. 41 Fonódó villamos megálló pár perc sétatávolságra az utca végén található.
Ha Ön szeretné megteremteni a tökéletes otthont, ahol a család minden tagja kényelmesen elfér, és ahol a modern élet összhangban van a természettel és a panorámával, akkor ne habozzon megnézni ezt a hangulatos családi házat.
További információért illetve megtekintés miatt várom hívását!
Az OTP Bankcsoport teljes körű ügyintézéssel áll az eladók és a vevők rendelkezésére! A kínálatunkból választott ingatlan finanszírozásához kedvezményes hitelkonstrukciókat kínálunk.