Eladó Ház- házrész
Hirdetéskód: 9248949
Benefit Line (OC)
252.00 m2
ALAPTERÜLET7
SZOBASZÁMnincs megadva
ÉPÍTÉSnincs megadva
FŰTÉS- CSOK igénybe vehető nem
- Tetőtér beépíthető nem
- Építés éve 1987
- Klíma nem
- Szigetelt nem
A+++
A++
A+
A
B
C
D
E
F
G
H
I
Az ingatlan leírása
Eladó 3 szintes családi ház Budafok és Budatétény határán családias környezetben.
A ház 1987-ben épült 30-as téglából és néhány éve 10 cm polisztirol szigetelést kapott.
Jelenleg két teljes lakószinttel, valamint beépített tetőtérrel és egy földszinti garázs - műhely - tároló szinttel rendelkezik.
A fűthető garázsban 1 nagyobb autó fér el, de további 2-3 autó részére van beállási lehetőség a kertben.
Ugyanitt található mosókonyha és a kazánház is, a műhelyben van ipari áram (400V).
A lakószintek egyenként 85 nm-esek, a tetőtér bruttó 49 nm (nettó 27 nm) az alsó pinceszint (garázs - műhely - tároló) is 85 nm.
Fűtése kondenzációs gázkazánnal és radiátorokkal, a melegvíz ellátás szintén gázkazánnal és melegvíz tárolóval és villanybojlerrel történik.
A régi fém keretes nyilászárók cserére szorulnak. Az elektromos vezetékek még nem voltak cserélve.
Alsó szint: terasz (12 nm, közvetlen kapcsolattal a kertbe), nappali (új klímával és kandallóval), étkező, konyha, dolgozó szoba, zuhanyzós wc.
Az étkezőből még egy terasz nyílik (6 nm) mely az oldalsó kertre néz.
Felső szint: 3 tágas (>15 nm) szoba, fürdőszoba-wc. Az egyik szobához 9 nm-es erkély tartozik, amely jelenleg beépített, de nagyon könnyen visszaalakítható nyitottra.
A legnagyobb méretű szobához szintén tartozik erkély. Ebből a szobából lehet feljutni a tetőtérbe, mely 2006-ban került beépítésre, a tető felújításával együtt. A héjazat ekkor 15 cm szigetelést kapott.
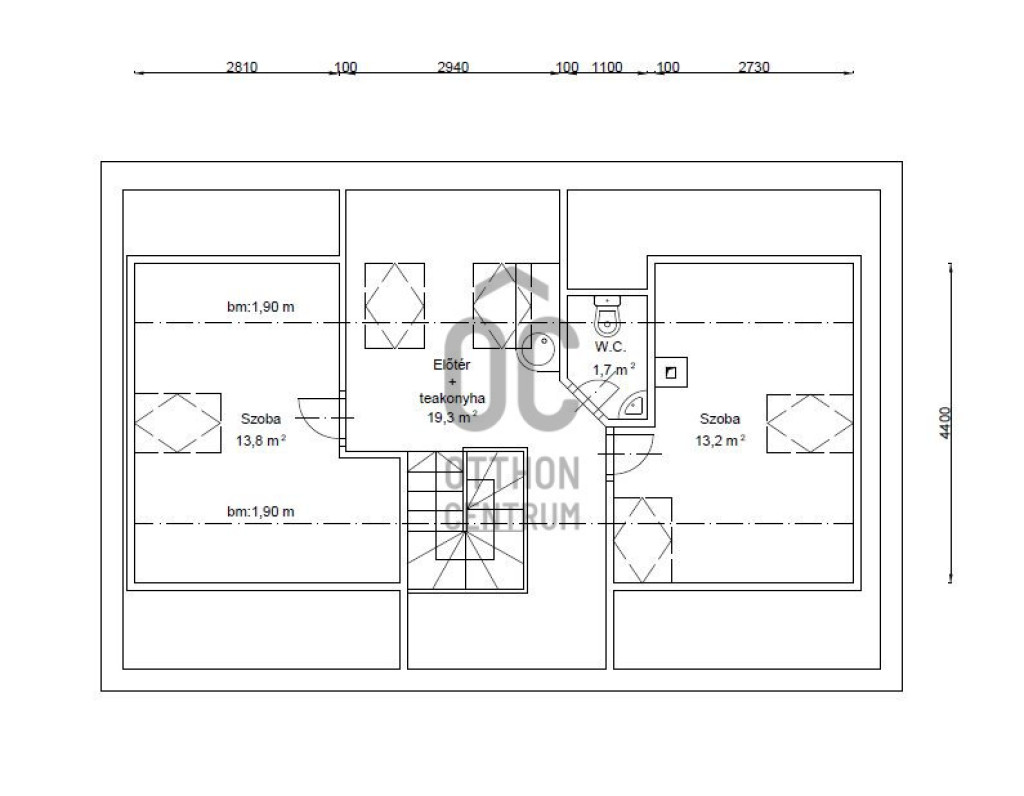
Tetőtér: 2 szoba, konyha-előtér, wc kézmosóval. Az egyik szoba szintén klímatizált. A tetőtéri rész a ház többi részéhez képest jó állapotú.
A telek hátsó részében van még egy különálló 30 nm-es műhely / garázs, vízzel és 3 fázisú ipari árammal.
A kertben számos gyümölcsfa van, valamint hatalmas szivarfák adnak árnyékot. Az előkertben hangulatos halastó, aranyhalakkal és tavirózsákkal.
Kiváló lehetőséget ad a kert medence, sütögető, szaletli kialakítására.
Tömegközlekedés két irányban is 5 percre található (Klauzál u., Háros u.).
Mind a kert, mind a ház rengeteg lehetőséget ad arra, hogy az elképzeléseit kibontakoztathassa, kialakítva ezzel egy új, szép, élhető életteret Önnek és családjának!
Ha kérdése merül fel, vagy időpontot egyeztetne személyes megtekintéshez, hívjon bizalommal.
Díjmentes, bankfüggetlen hiteltanácsadással támogatjuk vevő ügyfeleinket a számukra legelőnyösebb finanszírozási döntések meghozatalában. Opcionálisan igénybe vehető kiegészítő szolgáltatásainkkal – mint ügyvédi közreműködés, energetikai tanúsítvány vagy villamos biztonsági felülvizsgálat – teljes körű szakmai támogatást nyújtunk az adásvétel folyamatának minden egyes lépésénél.
A ház 1987-ben épült 30-as téglából és néhány éve 10 cm polisztirol szigetelést kapott.
Jelenleg két teljes lakószinttel, valamint beépített tetőtérrel és egy földszinti garázs - műhely - tároló szinttel rendelkezik.
A fűthető garázsban 1 nagyobb autó fér el, de további 2-3 autó részére van beállási lehetőség a kertben.
Ugyanitt található mosókonyha és a kazánház is, a műhelyben van ipari áram (400V).
A lakószintek egyenként 85 nm-esek, a tetőtér bruttó 49 nm (nettó 27 nm) az alsó pinceszint (garázs - műhely - tároló) is 85 nm.
Fűtése kondenzációs gázkazánnal és radiátorokkal, a melegvíz ellátás szintén gázkazánnal és melegvíz tárolóval és villanybojlerrel történik.
A régi fém keretes nyilászárók cserére szorulnak. Az elektromos vezetékek még nem voltak cserélve.
Alsó szint: terasz (12 nm, közvetlen kapcsolattal a kertbe), nappali (új klímával és kandallóval), étkező, konyha, dolgozó szoba, zuhanyzós wc.
Az étkezőből még egy terasz nyílik (6 nm) mely az oldalsó kertre néz.
Felső szint: 3 tágas (>15 nm) szoba, fürdőszoba-wc. Az egyik szobához 9 nm-es erkély tartozik, amely jelenleg beépített, de nagyon könnyen visszaalakítható nyitottra.
A legnagyobb méretű szobához szintén tartozik erkély. Ebből a szobából lehet feljutni a tetőtérbe, mely 2006-ban került beépítésre, a tető felújításával együtt. A héjazat ekkor 15 cm szigetelést kapott.
Tetőtér: 2 szoba, konyha-előtér, wc kézmosóval. Az egyik szoba szintén klímatizált. A tetőtéri rész a ház többi részéhez képest jó állapotú.
A telek hátsó részében van még egy különálló 30 nm-es műhely / garázs, vízzel és 3 fázisú ipari árammal.
A kertben számos gyümölcsfa van, valamint hatalmas szivarfák adnak árnyékot. Az előkertben hangulatos halastó, aranyhalakkal és tavirózsákkal.
Kiváló lehetőséget ad a kert medence, sütögető, szaletli kialakítására.
Tömegközlekedés két irányban is 5 percre található (Klauzál u., Háros u.).
Mind a kert, mind a ház rengeteg lehetőséget ad arra, hogy az elképzeléseit kibontakoztathassa, kialakítva ezzel egy új, szép, élhető életteret Önnek és családjának!
Ha kérdése merül fel, vagy időpontot egyeztetne személyes megtekintéshez, hívjon bizalommal.
Díjmentes, bankfüggetlen hiteltanácsadással támogatjuk vevő ügyfeleinket a számukra legelőnyösebb finanszírozási döntések meghozatalában. Opcionálisan igénybe vehető kiegészítő szolgáltatásainkkal – mint ügyvédi közreműködés, energetikai tanúsítvány vagy villamos biztonsági felülvizsgálat – teljes körű szakmai támogatást nyújtunk az adásvétel folyamatának minden egyes lépésénél.