Eladó Ház- házrész
Hirdetéskód: 9255029
Benefit Line (OC)
Ez a hirdetés megfelelhet a FIX 3%-os programnak.
Tudj meg többet a részletekről itt.
75.00 m2
ALAPTERÜLET3
SZOBASZÁMnincs megadva
ÉPÍTÉSnincs megadva
FŰTÉS- CSOK igénybe vehető nem
- Tetőtér beépíthető nem
- Építés éve 2025
- Klíma nem
- Szigetelt nem
A+++
A++
A+
A
B
C
D
E
F
G
H
I
Az ingatlan leírása
NAGYTÉTÉNYBEN, CSENDES KERTVÁROSI KÖRNYEZETBEN, ÚJ ÉPÍTÉSŰ, IKERHÁZ ELADÓ!!!
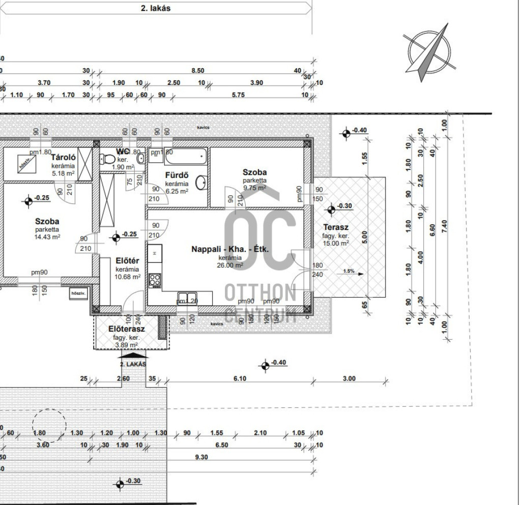
2026 első félévi KÖLTÖZÉSSEL XXII. kerületben, Nagytétényben, nettó 75 m²-es hasznos alapterületű, nappali + 2 szobás (teraszos), ÚJ ÉPÍTÉSŰ, IKERHÁZ eladó.
FÖLDSZINT:
Nettó: 74,5 m² lakórész + 15 m² terasz + 4 m² elő-terasz
Az ingatlanhoz saját, kizárólagos használatú, lekerített telekrész tartozik
Műszaki információk:
Külső falazat: Leier 30 cm-es tégla, 10 cm-es Dryvit hőszigeteléssel
Tetőszigetelés: 30 cm-es Knauf üveggyapot, hőtükör fólia, diffúziós fólia
Tetőfedés: Terrán tetőcserép, szellőző cserepekkel kiegészítve
Műanyag nyílászárók: FENSTHERM FUTURE vagy Kömmerling 5 légkamrás, 3 rétegű üvegezéssel, résszellőző funkcióval
Fűtés és meleg víz: 8 kW-os DAIKIN ALTHERMA hőszivattyú
Fűtés kialakítása: hidegburkolattal rendelkező terekben padlófűtés, egyéb helyiségekben Vogel & Noote lapradiátorok
A vételár tartalmazza a teljes riasztórendszer kiépítését
A vételár tartalmazza a klíma kiállás kiépítését (kül- és beltéri egységet NEM)
A vételár tartalmazza a napelem rendszer elektromos előkészítését
A vételár NEM tartalmazza a hideg-meleg burkolatokat, redőnyöket, szúnyoghálókat, beltéri ajtókat, riasztóberendezést, csaptelepeket, szanitereket (a munkadíj az árban foglaltatik)
Külön mérőórák, önálló telekrész
Méret, tájolás, elrendezés:
Belső átalakítás a vevő igénye szerint jelenleg még változtatható, alakítható
Közlekedés és infrastruktúra:
Kiváló közlekedési lehetőségek
Iskola, óvoda, bölcsőde, rendelő, Campona, Lidl, Aldi mind karnyújtásnyira elérhető
Megtekintés:
Elkészült referencia munkák megtekinthetők
CSOK PLUSZ, kedvezményes hitelek felvehetők
2026 első félévi KÖLTÖZÉSSEL XXII. kerületben, Nagytétényben, nettó 75 m²-es hasznos alapterületű, nappali + 2 szobás (teraszos), ÚJ ÉPÍTÉSŰ, IKERHÁZ eladó.
FÖLDSZINT:
Nettó: 74,5 m² lakórész + 15 m² terasz + 4 m² elő-terasz
Az ingatlanhoz saját, kizárólagos használatú, lekerített telekrész tartozik
Műszaki információk:
Külső falazat: Leier 30 cm-es tégla, 10 cm-es Dryvit hőszigeteléssel
Tetőszigetelés: 30 cm-es Knauf üveggyapot, hőtükör fólia, diffúziós fólia
Tetőfedés: Terrán tetőcserép, szellőző cserepekkel kiegészítve
Műanyag nyílászárók: FENSTHERM FUTURE vagy Kömmerling 5 légkamrás, 3 rétegű üvegezéssel, résszellőző funkcióval
Fűtés és meleg víz: 8 kW-os DAIKIN ALTHERMA hőszivattyú
Fűtés kialakítása: hidegburkolattal rendelkező terekben padlófűtés, egyéb helyiségekben Vogel & Noote lapradiátorok
A vételár tartalmazza a teljes riasztórendszer kiépítését
A vételár tartalmazza a klíma kiállás kiépítését (kül- és beltéri egységet NEM)
A vételár tartalmazza a napelem rendszer elektromos előkészítését
A vételár NEM tartalmazza a hideg-meleg burkolatokat, redőnyöket, szúnyoghálókat, beltéri ajtókat, riasztóberendezést, csaptelepeket, szanitereket (a munkadíj az árban foglaltatik)
Külön mérőórák, önálló telekrész
Méret, tájolás, elrendezés:
Belső átalakítás a vevő igénye szerint jelenleg még változtatható, alakítható
Közlekedés és infrastruktúra:
Kiváló közlekedési lehetőségek
Iskola, óvoda, bölcsőde, rendelő, Campona, Lidl, Aldi mind karnyújtásnyira elérhető
Megtekintés:
Elkészült referencia munkák megtekinthetők
CSOK PLUSZ, kedvezményes hitelek felvehetők