Eladó Ház- házrész
Hirdetéskód: 9201276
OTP Ingatlanpont Csongrád
137 m2
ALAPTERÜLET6
SZOBASZÁMnincs megadva
ÉPÍTÉSnincs megadva
FŰTÉS- CSOK igénybe vehető nem
- Tetőtér beépíthető nem
- Építés éve 1930
- Klíma nem
- Szigetelt nem
A+++
A++
A+
A
B
C
D
E
F
G
H
I
Az ingatlan leírása
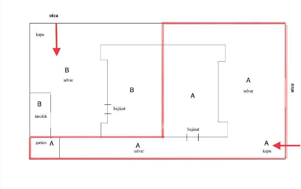
XII. Kerületben, BUDAFOKON, csendes, KERTVÁROSI KÖRNYEZETBEN eladó egy FRISSEN FELÚJÍTOTT 2 lakásos családi ház 635 m2 telekterülettel.
A két lakrész egymástól teljesen elkülönülten, külön utcai bejárattal közelíthető meg. ÖNÁLLÓ KÖZMŰÓRÁKKAL rendelkeznek.
A lakás: 65 m2, nappali + 2 hálószobás B: lakás: 72 m2, nappali + 3 hálószobás + 17 m2 terasz. Mindkét lakásban beépített konyhabútor, gépesítés ( Bosch mosogatógép, Gorenje sütő és főzőlap). A felújítás során megújultak az elektromos vezetékek, a teljes vízhálózat, a burkolatok, a szaniterek, új 3 rétegű műanyag nyílászárók kerültek beépítésre. A fűtést és a melegvíz ellátást új Ariston kondenzációs gázkazán biztosítja, radiátoros hő-leadással, mindkét lakásban külön-külön. A kellemes hőmérsékletről kiegészítésképpen klíma gondoskodik. A ház 10 cm hőszigeteléssel ellátott, a tető cseréppel fedett.
Tehermentes, AZONNAL BIRTOKBA VEHETŐ INGATLAN! A lakásokat külön -külön is értékesítjük.
Megtekintéssel kapcsolatban kérem keressen!
A két lakrész egymástól teljesen elkülönülten, külön utcai bejárattal közelíthető meg. ÖNÁLLÓ KÖZMŰÓRÁKKAL rendelkeznek.
A lakás: 65 m2, nappali + 2 hálószobás B: lakás: 72 m2, nappali + 3 hálószobás + 17 m2 terasz. Mindkét lakásban beépített konyhabútor, gépesítés ( Bosch mosogatógép, Gorenje sütő és főzőlap). A felújítás során megújultak az elektromos vezetékek, a teljes vízhálózat, a burkolatok, a szaniterek, új 3 rétegű műanyag nyílászárók kerültek beépítésre. A fűtést és a melegvíz ellátást új Ariston kondenzációs gázkazán biztosítja, radiátoros hő-leadással, mindkét lakásban külön-külön. A kellemes hőmérsékletről kiegészítésképpen klíma gondoskodik. A ház 10 cm hőszigeteléssel ellátott, a tető cseréppel fedett.
Tehermentes, AZONNAL BIRTOKBA VEHETŐ INGATLAN! A lakásokat külön -külön is értékesítjük.
Megtekintéssel kapcsolatban kérem keressen!