Eladó Ház- házrész
Hirdetéskód: 9235338
GDN Ingatlanhálózat - Ingatlan Budafok
Felújításhoz személyi kölcsönt keres? Kalkuláljon itt! →130.00 m2
ALAPTERÜLET5
SZOBASZÁMnincs megadva
ÉPÍTÉSnincs megadva
FŰTÉS- CSOK igénybe vehető nem
- Tetőtér beépíthető nem
- Klíma nem
- Szigetelt nem
A+++
A++
A+
A
B
C
D
E
F
G
H
I
Az ingatlan leírása
XXII. kerület Óhegy csendes kertvárosias környezetében, összesen 1000 m2-es telken épülő 2 db(,"A" és "B" jelű)130 m2-es 5 szobás, fürdőszobás nagy teraszos, garázzsal rendelkező házak közül CSAK A "B" JELŰ HÁZAT KÍNÁLJUK MEGVÉTELRE !
AZ "A" jelű HÁZ ELADÁSRA KERÜLT !
Mindkét ház ALAPRAJZA, TELEK MÉRETE, KIVITELEZÉSE AZONOS !
A megvételre kínált:
"B" jelű ingatlan KULCSRAKÉSZ ÁRA: 168 millió Ft
Az ingatlanok saját 500 m2-es szeparált telek résszel, egyállásos garázzsal, térkövezett kocsibeállóval, külön mérőórákkal rendelkeznek.
A két lakás két épület tömbben helyezkedik el.
Az épületeket két garázs köti össze.
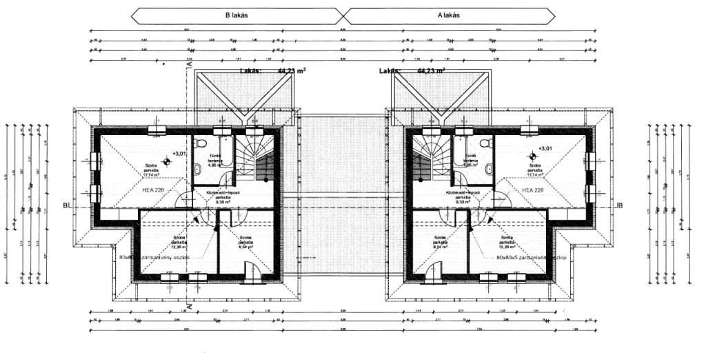
Helyiségei:
FÖLDSZINTEN: előszoba (5,7 m2), WC kézmosóval, nappali (31,25 m2), konyha-étkező (8,40 m2), vendégszoba (8 m2).
EMELETEN közlekedő(9,3 m2), fürdőszoba(5 m2), 3 hálószoba
(17,7 m2, 12,2 m2 és 8,5 m2 méretűek.)
A MÉRETEKET, ELRENDEZÉST LÁSD AZ ALAPRAJZOKON !
MŰSZAKI TARTALOM:
-Porotherm 30-as falazat,15 cm külső homlokzati szigetelés
-25 cm tetőszigetelés,12 cm lábazat xps szigetelés
-két szint között E gerendás vasbeton födém
-Leier beton cserép,csatorna rendszerrel
-3 rétegű üvegezéssel ellátott, műanyag nyílászárók
-elektromos alumínium redőnyök, szúnyoghálóval
-minden helyiségben padló fűtés, helyiségenként szabályozható
osztógyűrűvel
-Hőszivattyú 10 KWh
-Vízmelegítő hibrid 100 L
-Villamos energia :1x32 A, 1x25 A H tarifás villanyóra
-Hideg és meleg burkolatok 8000 Ft /m2, beltéri ajtók 80.000 Ft /db,
kád 100.000 Ft/db, szaniterek 30.000 Ft / db árig választhatók amit
tartalmaz az ingatlan vételára.
Átadás előtt, tereprendezésre kerül sor, építési törmelék elszállítása,
talaj kiegyenlítés.
TERVEZETT ÁTADÁS IDŐPONTJA : 2026. II. negyedév
A "B" jelű ingatlan eladási ára : 168 millió Ft
A HÁZAK ÖNÁLLÓ MÉRŐÓRÁKKAL, HASZNÁLATBAVÉTELI ENGEDÉLLYEL, TÁRSASHÁZ ALAPÍTÓ OKIRATTAL és H-TARIFÁS VILLANYÓRÁVAL kerülnek átadásra.
A környék lokációja jó, közelben iskola, óvoda, orvosi rendelő, bevásárlási lehetőség található.
Az ingatlan megtekintése előre egyeztetett időpontban lehetséges.
VÁROM HÍVÁSÁT, TOVÁBBI KÉRDÉSEIVEL kapcsolatosan JELENTKEZÉSÉT!
(G.I.) ...TOVÁBBI, TÖBBEZRES INGATLAN KÍNÁLAT: - GDN azonosító: 390874
AZ "A" jelű HÁZ ELADÁSRA KERÜLT !
Mindkét ház ALAPRAJZA, TELEK MÉRETE, KIVITELEZÉSE AZONOS !
A megvételre kínált:
"B" jelű ingatlan KULCSRAKÉSZ ÁRA: 168 millió Ft
Az ingatlanok saját 500 m2-es szeparált telek résszel, egyállásos garázzsal, térkövezett kocsibeállóval, külön mérőórákkal rendelkeznek.
A két lakás két épület tömbben helyezkedik el.
Az épületeket két garázs köti össze.
Helyiségei:
FÖLDSZINTEN: előszoba (5,7 m2), WC kézmosóval, nappali (31,25 m2), konyha-étkező (8,40 m2), vendégszoba (8 m2).
EMELETEN közlekedő(9,3 m2), fürdőszoba(5 m2), 3 hálószoba
(17,7 m2, 12,2 m2 és 8,5 m2 méretűek.)
A MÉRETEKET, ELRENDEZÉST LÁSD AZ ALAPRAJZOKON !
MŰSZAKI TARTALOM:
-Porotherm 30-as falazat,15 cm külső homlokzati szigetelés
-25 cm tetőszigetelés,12 cm lábazat xps szigetelés
-két szint között E gerendás vasbeton födém
-Leier beton cserép,csatorna rendszerrel
-3 rétegű üvegezéssel ellátott, műanyag nyílászárók
-elektromos alumínium redőnyök, szúnyoghálóval
-minden helyiségben padló fűtés, helyiségenként szabályozható
osztógyűrűvel
-Hőszivattyú 10 KWh
-Vízmelegítő hibrid 100 L
-Villamos energia :1x32 A, 1x25 A H tarifás villanyóra
-Hideg és meleg burkolatok 8000 Ft /m2, beltéri ajtók 80.000 Ft /db,
kád 100.000 Ft/db, szaniterek 30.000 Ft / db árig választhatók amit
tartalmaz az ingatlan vételára.
Átadás előtt, tereprendezésre kerül sor, építési törmelék elszállítása,
talaj kiegyenlítés.
TERVEZETT ÁTADÁS IDŐPONTJA : 2026. II. negyedév
A "B" jelű ingatlan eladási ára : 168 millió Ft
A HÁZAK ÖNÁLLÓ MÉRŐÓRÁKKAL, HASZNÁLATBAVÉTELI ENGEDÉLLYEL, TÁRSASHÁZ ALAPÍTÓ OKIRATTAL és H-TARIFÁS VILLANYÓRÁVAL kerülnek átadásra.
A környék lokációja jó, közelben iskola, óvoda, orvosi rendelő, bevásárlási lehetőség található.
Az ingatlan megtekintése előre egyeztetett időpontban lehetséges.
VÁROM HÍVÁSÁT, TOVÁBBI KÉRDÉSEIVEL kapcsolatosan JELENTKEZÉSÉT!
(G.I.) ...TOVÁBBI, TÖBBEZRES INGATLAN KÍNÁLAT: - GDN azonosító: 390874