Eladó Ház- házrész
Hirdetéskód: 9226567
GDN Ingatlanhálózat - Ingatlan Budafok
Felújításhoz személyi kölcsönt keres? Kalkuláljon itt! →
Ez a hirdetés megfelelhet a FIX 3%-os programnak.
Tudj meg többet a részletekről itt.
214.00 m2
ALAPTERÜLET5
SZOBASZÁMnincs megadva
ÉPÍTÉSnincs megadva
FŰTÉS- CSOK igénybe vehető nem
- Tetőtér beépíthető nem
- Klíma nem
- Szigetelt nem
A+++
A++
A+
A
B
C
D
E
F
G
H
I
Az ingatlan leírása
CSAK AZ IRODÁNK KÍNÁLATÁBAN!
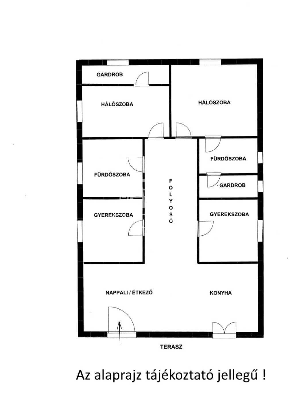
XXII. kerületben, Budafokon kínálunk eladásra egy FELÚJÍTÁS ALATT ÁLLÓ, nagy nappali + 4 szobás, 2 fürdőszobás, étkező-konyhás 214 m²-es lakóterű magasföldszinti CSALÁDI HÁZAT, melynek az alsó szintje plusz 110 m2, amely egy 647 m²-es telken helyezkedik el.
A házba belépve egy tágas nappaliba érkezünk, innen tovább haladva található egy étkezős - konyha, beépített modern konyhabútorral.
Széles folyosóról nyílnak a gyerek szobák, a nagy kádas fürdőszoba, és két nagy méretű hálószoba saját gardrób helyiségekkel.
Az egyik hálószobához tartozik még egy zuhanyozós fürdőszoba WC-vel és egy gardrob szoba.
A másik hálószobához is tartozik külön gardrob szoba.
A ház alatti alsó szint 110 m2, ahol beépített konyha, kamra, kis szoba, zuhanyzós fürdőszoba WC-vel is kialakításra került, plusz egyéb tárolásra alkalmas terület is maradt.
LÁSD AZ ALSÓ SZINT ALAPRAJZÁT !
A ház ideális nagycsaládosoknak, de két generációnak is kényelmes tereket biztosít, a 214 m²-es lakótér, és az alsó szint helyiségei.
LÁSD A LAKÓTÉR /magasföldszint/ HELYISÉGEINEK ELRENDEZÉSÉT AZ ALAPRAJZON !
MŰSZAKI JELLEMZŐK:
- Az épület az 1960-1970-es években épült vegyes falazattal.
- ben teljes körű felújításon esett át.
- ennek részeként megtörtént a tetőcsere, vasbeton födém került kialakításra
- a teljes gépészet és fűtésrendszer megújult
- a nyílászárók cseréje is megtörtént, háromrétegű, hő- és hangszigetelő műanyag ablakok, új bejárati ajtó került beépítésre
- a ház külső falaira 15 cm-es dryvit hőszigetelés került
- a fűtés hőszivattyúval történik, minden helyiségben padlófűtéssel.
PARKOLÁS:
A kertben több autó számára térkövezett felszíni beálló biztosított.
EXTRÁK:
A házban 5 db hűtő-fűtő klíma található.
KÖRNYEZET:
Az ingatlan csendes, kertvárosias környezetben található, kiváló tömegközlekedéssel és közeli bevásárlási lehetőségekkel (ALDI, Campona, Tesco).
A közelben óvoda, két tannyelvű iskola és gimnázium is működik..
Autóbusszal 15–20 perc alatt elérhető a 4-es metró kelenföldi végállomása. Budapest belvárosa pedig sétatávolságban lévő buszjáratokkal fél óra alatt megközelíthető.
Az ingatlan ELŐRE EGYEZTETETT IDŐPONTBAN tekinthető meg – akár hétvégén is.
KÉSZPÉNZES ÉRDEKLŐDŐK JELENTKEZÉSÉT VÁROM !
FORDULJON HOZZÁM BIZALOMMAL, VÁROM HÍVÁSÁT, ÉRDEKLŐDÉSÉT!
(G.I.) ...TOVÁBBI, TÖBBEZRES INGATLAN KÍNÁLAT: - GDN azonosító: 390458
XXII. kerületben, Budafokon kínálunk eladásra egy FELÚJÍTÁS ALATT ÁLLÓ, nagy nappali + 4 szobás, 2 fürdőszobás, étkező-konyhás 214 m²-es lakóterű magasföldszinti CSALÁDI HÁZAT, melynek az alsó szintje plusz 110 m2, amely egy 647 m²-es telken helyezkedik el.
A házba belépve egy tágas nappaliba érkezünk, innen tovább haladva található egy étkezős - konyha, beépített modern konyhabútorral.
Széles folyosóról nyílnak a gyerek szobák, a nagy kádas fürdőszoba, és két nagy méretű hálószoba saját gardrób helyiségekkel.
Az egyik hálószobához tartozik még egy zuhanyozós fürdőszoba WC-vel és egy gardrob szoba.
A másik hálószobához is tartozik külön gardrob szoba.
A ház alatti alsó szint 110 m2, ahol beépített konyha, kamra, kis szoba, zuhanyzós fürdőszoba WC-vel is kialakításra került, plusz egyéb tárolásra alkalmas terület is maradt.
LÁSD AZ ALSÓ SZINT ALAPRAJZÁT !
A ház ideális nagycsaládosoknak, de két generációnak is kényelmes tereket biztosít, a 214 m²-es lakótér, és az alsó szint helyiségei.
LÁSD A LAKÓTÉR /magasföldszint/ HELYISÉGEINEK ELRENDEZÉSÉT AZ ALAPRAJZON !
MŰSZAKI JELLEMZŐK:
- Az épület az 1960-1970-es években épült vegyes falazattal.
- ben teljes körű felújításon esett át.
- ennek részeként megtörtént a tetőcsere, vasbeton födém került kialakításra
- a teljes gépészet és fűtésrendszer megújult
- a nyílászárók cseréje is megtörtént, háromrétegű, hő- és hangszigetelő műanyag ablakok, új bejárati ajtó került beépítésre
- a ház külső falaira 15 cm-es dryvit hőszigetelés került
- a fűtés hőszivattyúval történik, minden helyiségben padlófűtéssel.
PARKOLÁS:
A kertben több autó számára térkövezett felszíni beálló biztosított.
EXTRÁK:
A házban 5 db hűtő-fűtő klíma található.
KÖRNYEZET:
Az ingatlan csendes, kertvárosias környezetben található, kiváló tömegközlekedéssel és közeli bevásárlási lehetőségekkel (ALDI, Campona, Tesco).
A közelben óvoda, két tannyelvű iskola és gimnázium is működik..
Autóbusszal 15–20 perc alatt elérhető a 4-es metró kelenföldi végállomása. Budapest belvárosa pedig sétatávolságban lévő buszjáratokkal fél óra alatt megközelíthető.
Az ingatlan ELŐRE EGYEZTETETT IDŐPONTBAN tekinthető meg – akár hétvégén is.
KÉSZPÉNZES ÉRDEKLŐDŐK JELENTKEZÉSÉT VÁROM !
FORDULJON HOZZÁM BIZALOMMAL, VÁROM HÍVÁSÁT, ÉRDEKLŐDÉSÉT!
(G.I.) ...TOVÁBBI, TÖBBEZRES INGATLAN KÍNÁLAT: - GDN azonosító: 390458