Eladó Ház- házrész
Hirdetéskód: 9196984

Pongrácz Csilla

132 m2
ALAPTERÜLET
4
SZOBASZÁM
nincs megadva
ÉPÍTÉS
nincs megadva
FŰTÉS
  • CSOK igénybe vehető nem
  • Tetőtér beépíthető nem
  • Építés éve 2025
  • Klíma nem
  • Szigetelt nem
Energetikai besorolás: Nincs meghatározva
A+++
A++
A+
A
B
C
D
E
F
G
H
I

Az ingatlan leírása

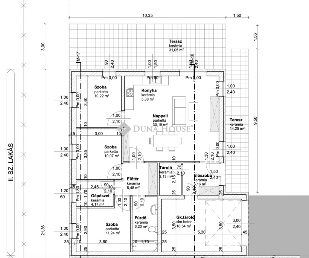
PRÉMIUM MINIMAL IKERHÁZ ELADÓ A 22.KERÜLETBEN! 3 MÉTERES BELMAGASSÁGGAL ! Budapest 22.kerületének Óhegy keresett részen prémium minőségű ikerház épül. Az épületek dupla fallal és légréssel elválasztva, így semmilyen hang nem zavarhatja a nyugalmát. Szolgalmi úttal Az ingatlant a 2025-ös év kedvezményes feltételeivel tudja megvásárolni, az építkezés céges.CSOK Plusz igényelhető és Illeték kedvezmény egyaránt.Foglalja le már most leendő otthonát 10%-al. Az építkezés hamarosan kezdetét veszi. A környéken rengeteg referencia ház, amit közösen megtekinthetünk, ami segíti a döntést.Az ingatlan nettó hasznos lakótér 91,24 m2 + 18,54 m2-es 1 állásos garázs + 45,30 m2 terasz és saját 705 m2 kertkapcsolattal. A helyiségek napfényesek, köszönhetően a jó tájolásnak és a jó méretű egyedi nyílászáróknak.Elosztását tekintve:- Előszoba- 3 jó méretű hálószoba- Tágas amerikai konyhás nappali- Fürdőszoba- Külön mellékhelyiség- Háztartási helyiség- 45,30 m2 Terasz- 705 m2-es saját kertEXTRÁK:- Mennyezet hűtés-fűtésMűszaki adatok:- 30-as Porotherm tégla, 10 cm Ytong válaszfalak- 15 cm grafitos homlokzati szigetelés- Panasonic hőszivattyú 300 literes használati meleg víz tartállyal, minden lakásnak külön hőszivattyú berendezés- H- tarifás mérőszekrény kialakítás- Minden helyiségben padlófűtés- Betoncserép- 3 rétegű 6 légkamrás nyílászárók, kívül antracit kivitelben- 1 db autónak térkövezett kocsibeálló- Riasztó előkészítése- Szaniterek- Hideg/meleg burkolatok ( 10 000 Ft/m2 meleg: 10 000 Ft/ m2 )- Beltéri ajtók- Bejárati ajtóEzek mind kiemelkedő minőségben és az átlagnál magasabb áron választhatóak. Árlista tőlem kérhető.Az építkezés megtekintése után minden a házzal kapcsolatos dokumentáció rendelkezésre áll.Vállalkozó garantáltan megbízható, rugalmas, rengeteg referencia munkával, amit közösen megtudunk tekinteni a nagy döntés előtt.Környék rendezett, minden perceken belül elérhető. Iskola, óvoda, bevásárlási lehetőségek, MO.Várható átadás: 2026 Tavasz További információkért hívjon bizalommal.

Térkép

A hirdető elérhetősége

Pongrácz Csilla

Pongrácz Csilla
+36 70 394