Eladó Ház- házrész
Hirdetéskód: 9288971
Dunaharaszti Bocskai utca 10 - OTP Ingatlanpont Iroda
Felújításhoz személyi kölcsönt keres? Kalkuláljon itt! →92.00 m2
ALAPTERÜLET5
SZOBASZÁMnincs megadva
ÉPÍTÉSnincs megadva
FŰTÉS- CSOK igénybe vehető nem
- Tetőtér beépíthető nem
- Építés éve 1951
- Klíma nem
- Szigetelt nem
A+++
A++
A+
A
B
C
D
E
F
G
H
I
Az ingatlan leírása
***Két lakás egy áráért, remek közlekedéssel!***
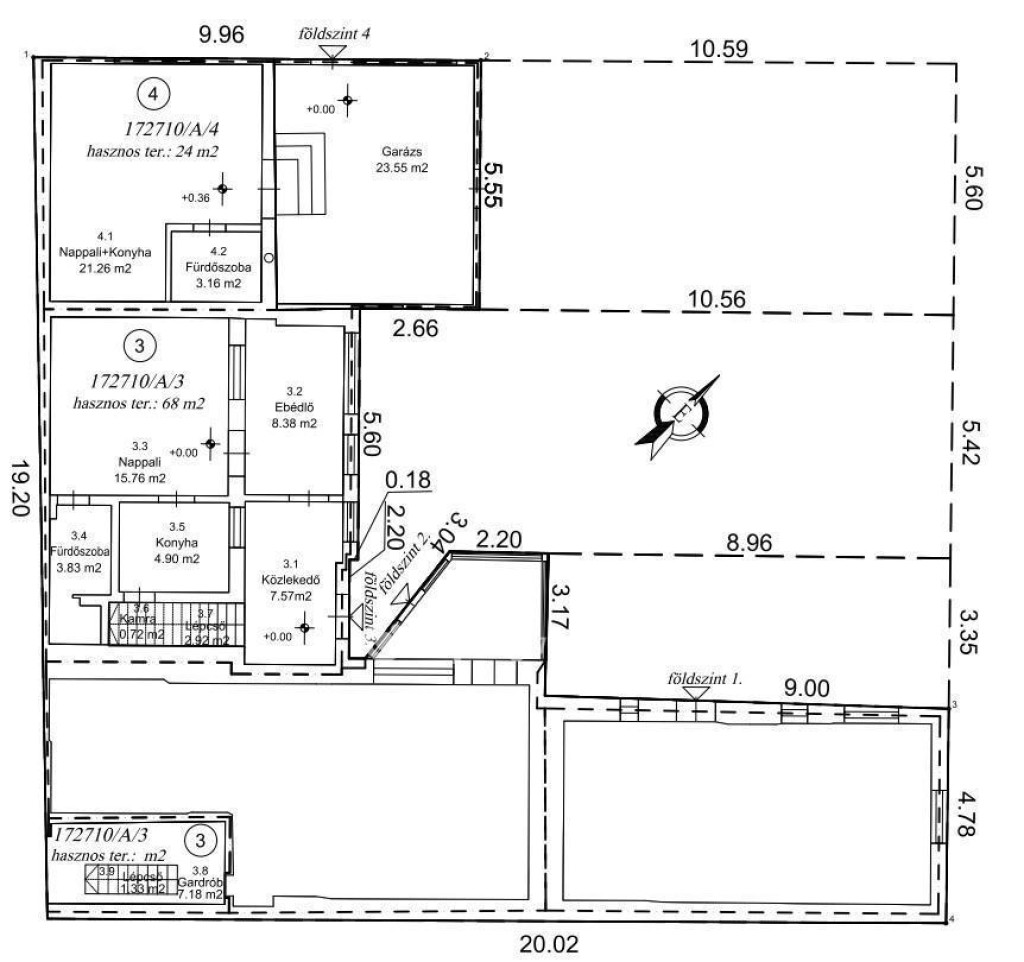
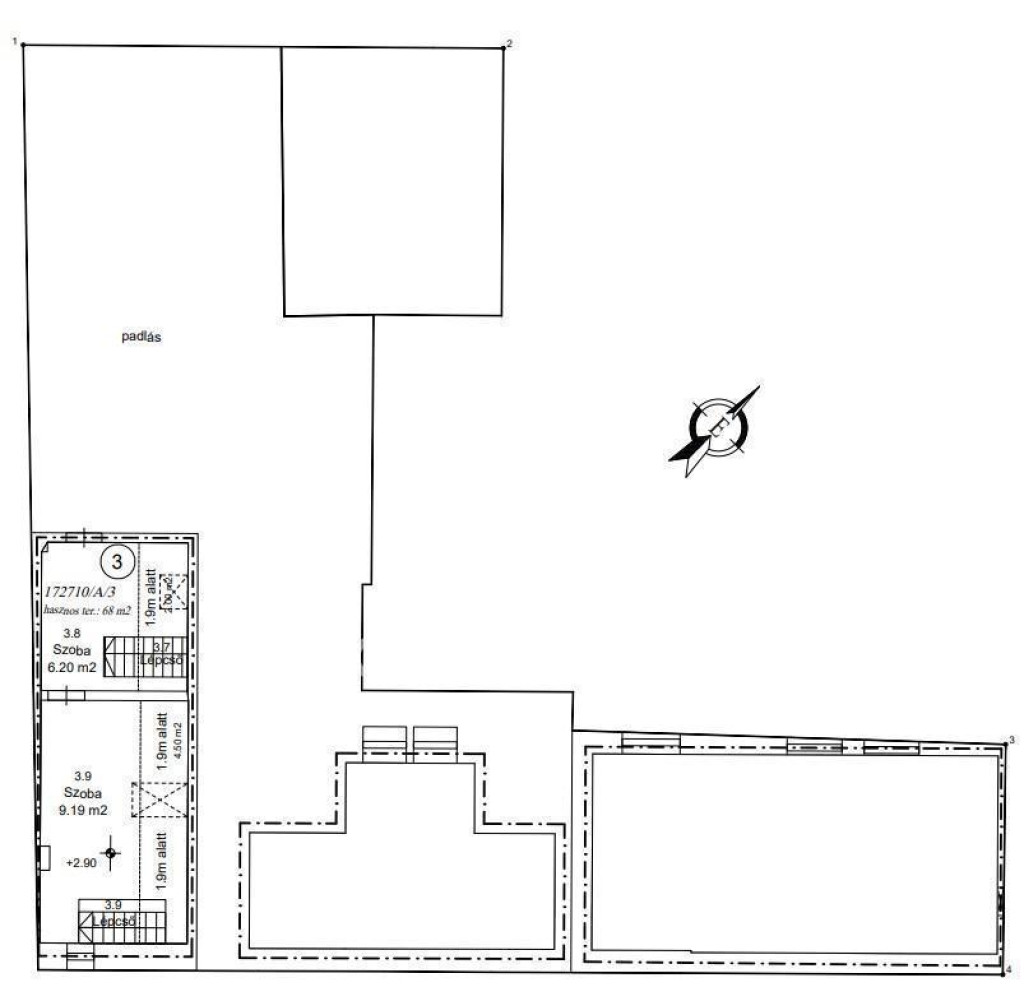
Eladó egy felújított, 68 m2-es, belső kétszintes házrész, valamint egy 24 m2-es, felújítandó lakás, garázzsal és saját udvarrésszel. Ideális választás több generáció együttélésére vagy befektetésnek kiadásra. Minden közmű külön mérőórával rendelkezik, a fűtés cirkóval vagy klímával megoldható. A környék tömegközlekedése kiváló, villamos és buszmegállók néhány perc sétára találhatók. A környék közlekedése rendkívül kedvező, a 2B, 51 és 52-es villamos, a 224, 224E, 151, 948 és 35-ös buszok kisebb sétával elérhetők. Az ingatlan a 3%-os Otthonstart hitelre is alkalmas! Ha felkeltettük érdeklődését, hívjon bátran a hét bármely napján. M310261
Eladó egy felújított, 68 m2-es, belső kétszintes házrész, valamint egy 24 m2-es, felújítandó lakás, garázzsal és saját udvarrésszel. Ideális választás több generáció együttélésére vagy befektetésnek kiadásra. Minden közmű külön mérőórával rendelkezik, a fűtés cirkóval vagy klímával megoldható. A környék tömegközlekedése kiváló, villamos és buszmegállók néhány perc sétára találhatók. A környék közlekedése rendkívül kedvező, a 2B, 51 és 52-es villamos, a 224, 224E, 151, 948 és 35-ös buszok kisebb sétával elérhetők. Az ingatlan a 3%-os Otthonstart hitelre is alkalmas! Ha felkeltettük érdeklődését, hívjon bátran a hét bármely napján. M310261