Eladó Ház- házrész
Hirdetéskód: 9296262
Fővállalkozó Balla és Balla Kft
Felújításhoz személyi kölcsönt keres? Kalkuláljon itt! →
Ez a hirdetés megfelelhet a FIX 3%-os programnak.
Tudj meg többet a részletekről itt.
100.00 m2
ALAPTERÜLET2
SZOBASZÁMnincs megadva
ÉPÍTÉSnincs megadva
FŰTÉS- CSOK igénybe vehető nem
- Tetőtér beépíthető nem
- Építés éve 1980
- Klíma nem
- Szigetelt nem
A+++
A++
A+
A
B
C
D
E
F
G
H
I
Az ingatlan leírása
Kivételes lehetőség!
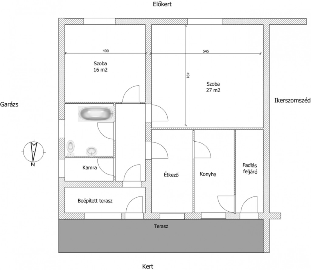
Reális áron kínálom ezt a jó állapotú, azonnal költözhető előkertes házat nagy kerttel Pesterzsébet csendes, kertárosias környezetében. Betonfödésmes, akár a tetőteret is be lehet építeni.
A beosztása ideális, a felső szinten akár külön bejáratú lakást is ki lehet alakítani.
A teraszról egy beépített teraszon keresztül jutunk az épületbe. Innen nyílnak a külön bejáratú szobák, a fürdő, , a kamra és az étkező, ami közvetlenül kapcsolódik a konyhához, de akár egybe is lehet nyitni.
A parkettás szobák nagy méretűek, tágas teret kínálnak a leendő lakóknak. A nagyobb szobában klíma is szolgálja a kényelmet.
A fürdőszoba ablakos, fürdőkádas, a melegvizet gázbojler biztosítja. A fürdő mellett található egy klassz kamra, amit akár külön WC-nek is át lehet alakítani.
A ház fűtését gázcirkó biztosítja.
Az épület előkertes, mellette garázs mögötte pedig nagy kert található, ami még gazdáskdásra is alkalma lehet, hiszen a teljes telekméret 535 m2.
Az ingatlannak egy tuljadonosa van, tehermentes.
Az ikerszomszéddal osztatlan közös tulajdonban van, használati megosztás készítése folyamatban, íagy hiteles ügyfeleknek is kínáljuk.
Érdeklődése esetén várom megtisztelő hívását akár hétvégén is.
Reális áron kínálom ezt a jó állapotú, azonnal költözhető előkertes házat nagy kerttel Pesterzsébet csendes, kertárosias környezetében. Betonfödésmes, akár a tetőteret is be lehet építeni.
A beosztása ideális, a felső szinten akár külön bejáratú lakást is ki lehet alakítani.
A teraszról egy beépített teraszon keresztül jutunk az épületbe. Innen nyílnak a külön bejáratú szobák, a fürdő, , a kamra és az étkező, ami közvetlenül kapcsolódik a konyhához, de akár egybe is lehet nyitni.
A parkettás szobák nagy méretűek, tágas teret kínálnak a leendő lakóknak. A nagyobb szobában klíma is szolgálja a kényelmet.
A fürdőszoba ablakos, fürdőkádas, a melegvizet gázbojler biztosítja. A fürdő mellett található egy klassz kamra, amit akár külön WC-nek is át lehet alakítani.
A ház fűtését gázcirkó biztosítja.
Az épület előkertes, mellette garázs mögötte pedig nagy kert található, ami még gazdáskdásra is alkalma lehet, hiszen a teljes telekméret 535 m2.
Az ingatlannak egy tuljadonosa van, tehermentes.
Az ikerszomszéddal osztatlan közös tulajdonban van, használati megosztás készítése folyamatban, íagy hiteles ügyfeleknek is kínáljuk.
Érdeklődése esetén várom megtisztelő hívását akár hétvégén is.