Eladó Ház- házrész
Hirdetéskód: 9308759
OTP Ingatlanpont - Takács Zsuzsanna
Felújításhoz személyi kölcsönt keres? Kalkuláljon itt! →
Ez a hirdetés megfelelhet a FIX 3%-os programnak.
Tudj meg többet a részletekről itt.
142.00 m2
ALAPTERÜLET4
SZOBASZÁMnincs megadva
ÉPÍTÉSGáz (cirkó)
FŰTÉS- CSOK igénybe vehető nem
- Tetőtér beépíthető nem
- Építés éve 1970
- Fűtés Gáz (cirkó)
- Klíma nem
- Szigetelt nem
A+++
A++
A+
A
B
C
D
E
F
G
H
I
Az ingatlan leírása
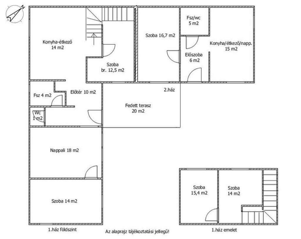
Befektetők, családosok, összeköltözők figyelem! Eladó két generáció számára is alkalmas, nettó 142 nm-es családi ház Budapest, XVIII. kerületében,Bókay telepen, a Zila kávéház közelében! A ház részben már felújított (villanyvezetékek, nyílászárók, tető, csatorna), két külön bejáratú önálló lakrészből áll, egy belső kétszintes nettó 100nm-es, és egy nettó 42 nm-es lakásból - külön-külön villanyórával, közös víz-, és gázórával. A nagyobb lakásban nappali és 3 +1/2 szoba, előtér, konyha-étkező, fürdőszoba, WC található, míg a kisebben a nappali-konyha-étkező mellett 1 hálószoba, tágas előtér, fürdőszoba és WC. Nyáron, a forró napsütésben egy kb. 20 nm-es fedett terasz ad árnyékot. Otthon Start Programra alkalmas, ingatlanjogilag rendezett, hitelezhető. Önálló hrsz-ú, 560 nm-es telek tartozik hozzá. Nagyszerű megoldás lehet összeköltözők vagy nagycsaládosok számára, de befektetési lehetőségnek is kiváló!
Lokáció szempontjából szintén kiváló: 2-3 perces sétára az 50-es villamos, a 93,93A, 236, 236A, 193E, 217, 182,182A, 183, 184, 950, A,577-es buszok megállói, melyekkel akár Kőbánya- Kispest vagy a Határ úti metrómegálló rövid idő alatt megközelíthető. A közelben - sétatávolságra - iskola, ovi, gimnázium, vásárlási és sportolási lehetőségek, önkormányzat, piac, orvosi rendelő...minden, ami komfortossá teheti a hétköznapokat!
Ügyfeleink számára teljes körű ügyintézéssel állunk rendelkezésre!
M320685
Az OTP Ingatlanpont, mint egyetlen közvetlen banki hátterű ingatlanközvetítő társaság teljes körű ügyintézéssel áll az eladók és a vevők rendelkezésére! A kínálatunkból választott ingatlan finanszírozásához minősített fogyasztóbarát, piaci és kedvezményes hitel- és lízingkonstrukciókat kínálunk (lakásvásárlási hitel, CSOK plusz, szabad felhasználású hitel, babaváró hitel, céges hitelek, pályázatok, amennyiben az ügyfél és az ingatlan megfelel a feltételeknek). Az adásvételi szerződés megkötéséhez igény szerint megbízható ügyvédi közreműködést biztosítunk, és segítséget nyújtunk az adásvételhez kapcsolódó egyéb ügyek intézéséhez.
Ha az új ingatlana megvásárlásához a jelenlegi ingatlanát el kell adnia, abban is szívesen segítünk.
Lokáció szempontjából szintén kiváló: 2-3 perces sétára az 50-es villamos, a 93,93A, 236, 236A, 193E, 217, 182,182A, 183, 184, 950, A,577-es buszok megállói, melyekkel akár Kőbánya- Kispest vagy a Határ úti metrómegálló rövid idő alatt megközelíthető. A közelben - sétatávolságra - iskola, ovi, gimnázium, vásárlási és sportolási lehetőségek, önkormányzat, piac, orvosi rendelő...minden, ami komfortossá teheti a hétköznapokat!
Ügyfeleink számára teljes körű ügyintézéssel állunk rendelkezésre!
M320685
Az OTP Ingatlanpont, mint egyetlen közvetlen banki hátterű ingatlanközvetítő társaság teljes körű ügyintézéssel áll az eladók és a vevők rendelkezésére! A kínálatunkból választott ingatlan finanszírozásához minősített fogyasztóbarát, piaci és kedvezményes hitel- és lízingkonstrukciókat kínálunk (lakásvásárlási hitel, CSOK plusz, szabad felhasználású hitel, babaváró hitel, céges hitelek, pályázatok, amennyiben az ügyfél és az ingatlan megfelel a feltételeknek). Az adásvételi szerződés megkötéséhez igény szerint megbízható ügyvédi közreműködést biztosítunk, és segítséget nyújtunk az adásvételhez kapcsolódó egyéb ügyek intézéséhez.
Ha az új ingatlana megvásárlásához a jelenlegi ingatlanát el kell adnia, abban is szívesen segítünk.