Eladó Ház- házrész
Hirdetéskód: 9292102
Duna House - Új-Lak Bázis Kft.
Felújításhoz személyi kölcsönt keres? Kalkuláljon itt! →214.00 m2
ALAPTERÜLET4
SZOBASZÁMnincs megadva
ÉPÍTÉSnincs megadva
FŰTÉS- CSOK igénybe vehető nem
- Tetőtér beépíthető nem
- Építés éve 2026
- Klíma nem
- Szigetelt nem
A+++
A++
A+
A
B
C
D
E
F
G
H
I
Az ingatlan leírása
Budapest XVIII. kerületének egyik legkeresettebb részén a Péterhalmi erdő szomszédságában épül ez a kétlakásos, háromszintes, A+ energetikájú otthon, amelyből mindössze egy bal és egy jobb ikerfél készül.
A 2026-os átadás miatt most még minden részlet személyre szabható.
Ez az a pillanat, amikor még bele lehet nyúlni a burkolatokba, színekbe, kialakításokba később már nem.
Főbb adatok:
-214m2-es alapterület
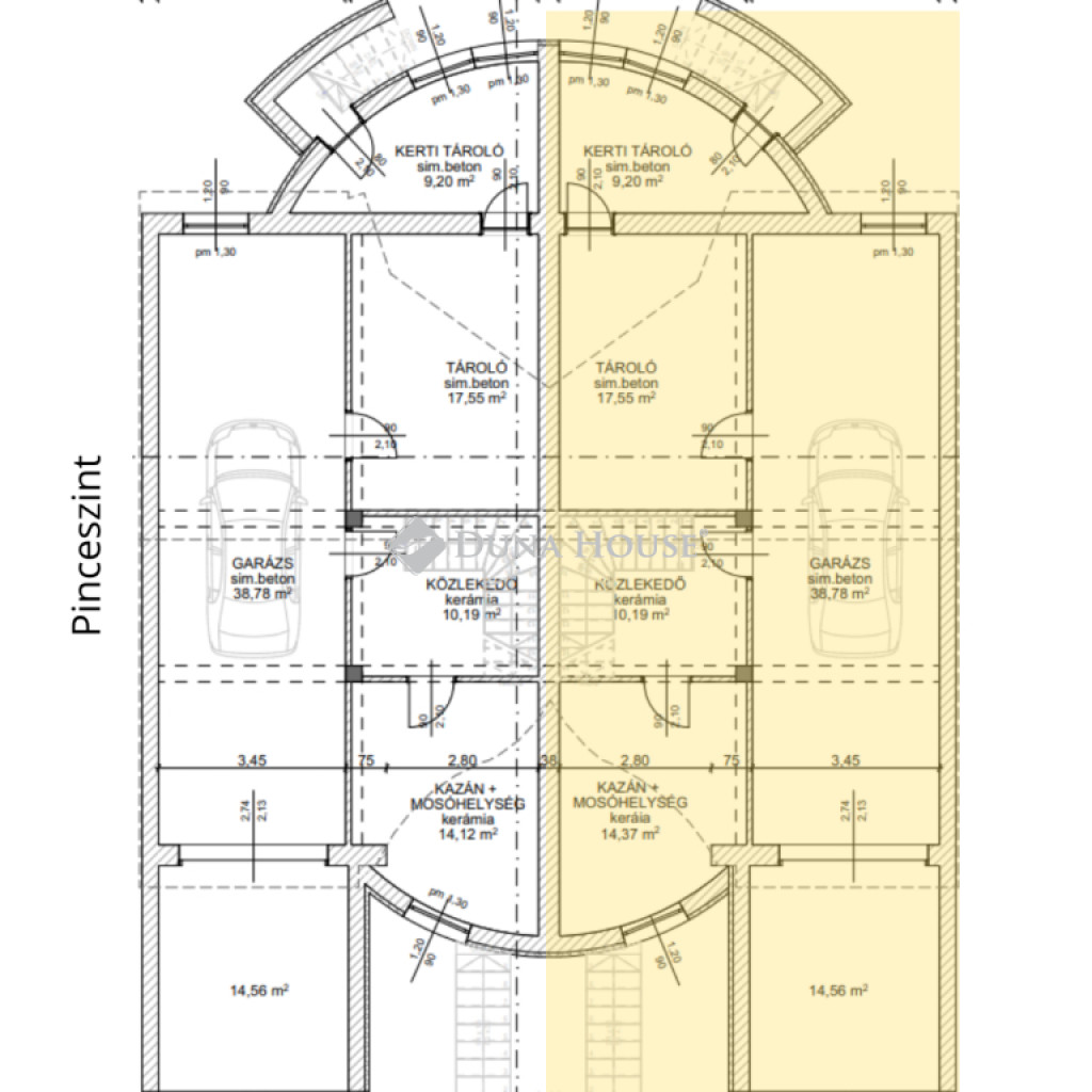
Pinceszint: 104m2
1. szint: 75,5m2
2. szint: 35m2
-Hozzá tartozó telekterület: Körülbelül 200m2
Háromszintes elrendezés
- Pinceszint (garázs + tárolók + gépészet),
- 1.szint (nappali, konyha, étkező, szobák),
- 2. szint (szoba, gardrób )
Plusz további tetőtér még beépíthető
A+ energetika
A műszaki leírás szerint:
- 40 cm tetőszigetelés,
- hőszivattyús fűtés,
- padlófűtés mindhárom szinten,
- mennyezethűtés-fűtés,
- Htarifás villanyóra
Prémium szerkezetek és anyagok
- 30 cm nf főfalak,
- betonfödém,
- Terrán cserépfedés,
- 6 légkamrás műanyag nyílászárók 1.0 üvegezéssel,
- elektromos redőnyök,
- elektromos garázskapu
Miért különleges?
A pince szint ami miatt ez az ingatlan eltér a mai újépítésű ikerházfelektől
- teljes értékűen szigetelt,
- gépi vakolt falakkal,
- 10 cm lépésálló hőszigeteléssel,
- simított betonpadlóval készül.
nem csak egy garázs, hanem egy komplett funkcionális szint
Fürdők, konyha, belső terek még te döntesz
- 100.000 Ft-ig választható zuhanyrendszer,
- 100.000 Ft-ig választható mosdószekrény,
- 150.000 Ft-ig választható falba épített WC szett,
- 10.000 Ft/m²-ig választható hidegburkolat,
- 10.000 Ft/m²-ig választható laminált padló.
Ez azt jelenti, hogy most még te alakítod ki a saját ízlésed szerint, és nem kell kompromisszumot kötni egy készre burkolt házzal.
Kert és környezet
- viacolor kocsibeálló,
- viacolor járda,
- elektromos kétszárnyú nagykapu,
- 3D táblás elválasztókerítés
Környezet:
A környék hangulata egyszerre nyugodt és élhető, mégis minden fontos szolgáltatás pár percen belül elérhető.
A XVIII. kerületet érintő járatok között szerepel a 166, 182, 266, 282E és 950-es busz, valamint az 50-es villamos, amely gyors kapcsolatot ad a metróhoz is
Autóval pedig a kerületből indulva könnyen elérhető:
- az M0,
- az M5,
- a Gyömrői út,
- a repülőtér
Várható átadás: 2026. 4. negyedév
Megbízható kivitelező referencia munkákkal!
A 2026-os átadás miatt most még minden részlet személyre szabható.
Ez az a pillanat, amikor még bele lehet nyúlni a burkolatokba, színekbe, kialakításokba később már nem.
Főbb adatok:
-214m2-es alapterület
Pinceszint: 104m2
1. szint: 75,5m2
2. szint: 35m2
-Hozzá tartozó telekterület: Körülbelül 200m2
Háromszintes elrendezés
- Pinceszint (garázs + tárolók + gépészet),
- 1.szint (nappali, konyha, étkező, szobák),
- 2. szint (szoba, gardrób )
Plusz további tetőtér még beépíthető
A+ energetika
A műszaki leírás szerint:
- 40 cm tetőszigetelés,
- hőszivattyús fűtés,
- padlófűtés mindhárom szinten,
- mennyezethűtés-fűtés,
- Htarifás villanyóra
Prémium szerkezetek és anyagok
- 30 cm nf főfalak,
- betonfödém,
- Terrán cserépfedés,
- 6 légkamrás műanyag nyílászárók 1.0 üvegezéssel,
- elektromos redőnyök,
- elektromos garázskapu
Miért különleges?
A pince szint ami miatt ez az ingatlan eltér a mai újépítésű ikerházfelektől
- teljes értékűen szigetelt,
- gépi vakolt falakkal,
- 10 cm lépésálló hőszigeteléssel,
- simított betonpadlóval készül.
nem csak egy garázs, hanem egy komplett funkcionális szint
Fürdők, konyha, belső terek még te döntesz
- 100.000 Ft-ig választható zuhanyrendszer,
- 100.000 Ft-ig választható mosdószekrény,
- 150.000 Ft-ig választható falba épített WC szett,
- 10.000 Ft/m²-ig választható hidegburkolat,
- 10.000 Ft/m²-ig választható laminált padló.
Ez azt jelenti, hogy most még te alakítod ki a saját ízlésed szerint, és nem kell kompromisszumot kötni egy készre burkolt házzal.
Kert és környezet
- viacolor kocsibeálló,
- viacolor járda,
- elektromos kétszárnyú nagykapu,
- 3D táblás elválasztókerítés
Környezet:
A környék hangulata egyszerre nyugodt és élhető, mégis minden fontos szolgáltatás pár percen belül elérhető.
A XVIII. kerületet érintő járatok között szerepel a 166, 182, 266, 282E és 950-es busz, valamint az 50-es villamos, amely gyors kapcsolatot ad a metróhoz is
Autóval pedig a kerületből indulva könnyen elérhető:
- az M0,
- az M5,
- a Gyömrői út,
- a repülőtér
Várható átadás: 2026. 4. negyedév
Megbízható kivitelező referencia munkákkal!