Eladó Ház- házrész
Hirdetéskód: 9157353
Fővállalkozó Balla és Balla Kft
Felújításhoz személyi kölcsönt keres? Kalkuláljon itt! →
Ez a hirdetés megfelelhet a FIX 3%-os programnak.
Tudj meg többet a részletekről itt.
144.00 m2
ALAPTERÜLET4
SZOBASZÁMnincs megadva
ÉPÍTÉSnincs megadva
FŰTÉS- CSOK igénybe vehető nem
- Tetőtér beépíthető nem
- Építés éve 1980
- Klíma nem
- Szigetelt nem
A+++
A++
A+
A
B
C
D
E
F
G
H
I
Az ingatlan leírása
ALKALMI VÉTEL, kizárólag a Balla ingatlan kínálatában.
Főbb jellemzők: tehermentes; OTTHON START program; azonnal költözhető; 600 nm-es gondozott telek; 144 nm hasznos alapterületű épület; 4 szoba; akadálymentes; garázs; télikert; terasz; udvari tároló; jó infrastruktúra; kertvárosi környezet; alkuképes ár.
Részleteiben:
Pestszentlőrincen, a Lőrinci Piac közelében kínálom megvételre ezt a per- és tehermentes, azonnal birtokba vehető ingatlant.
Az ingatlan hitelezhető, az OTTHON START program és a CSOK Plusz is igénybe vehető.
A 600 nm-es összközműves telken elhelyezkedő, 144 nm HASZNOS alapterületű, beton alapzatú, tégla falazatú épület statikailag és szerkezetileg is kifogástalan állapotban van. A jelenlegi alaprajzi elrendezése 1980-ban jött létre, amikor a már meglévő régebbi épületet kibővítették. Az új tetőtér magában foglal egy kb. 25 nm-es tetőtéri szobát, ami mellett tágas teret kínál a további beépítési törekvéseknek.
Az épületen 2014 és 2019 között több felújítást, korszerűsítést végeztek el. Ezek közül a jelentősebbek:
- Rácsatlakoztak a kerületi csatornarendszerre.
- A tető héjazatát kicserélték, és kőzetgyapottal szigetelték.
- Az utca és a szomszéd felőli ablakokat korszerű, dupla üvegezésűekre cserélték, és redőnyökkel is felszerelték azokat. A többi nyílászáró még eredeti, de jó állapotú.
- Korszerű, energiatakarékos kondenzációs kazánt (BOSCH) helyeztek üzembe, egyúttal megfelelő módon kibéleltették a kéményt. Ennek, és a jó minőségű radiátoroknak köszönhetően a fűtési rendszer a saját kategóriájában korszerű.
- Új biztonsági bejárati ajtót építettek be.
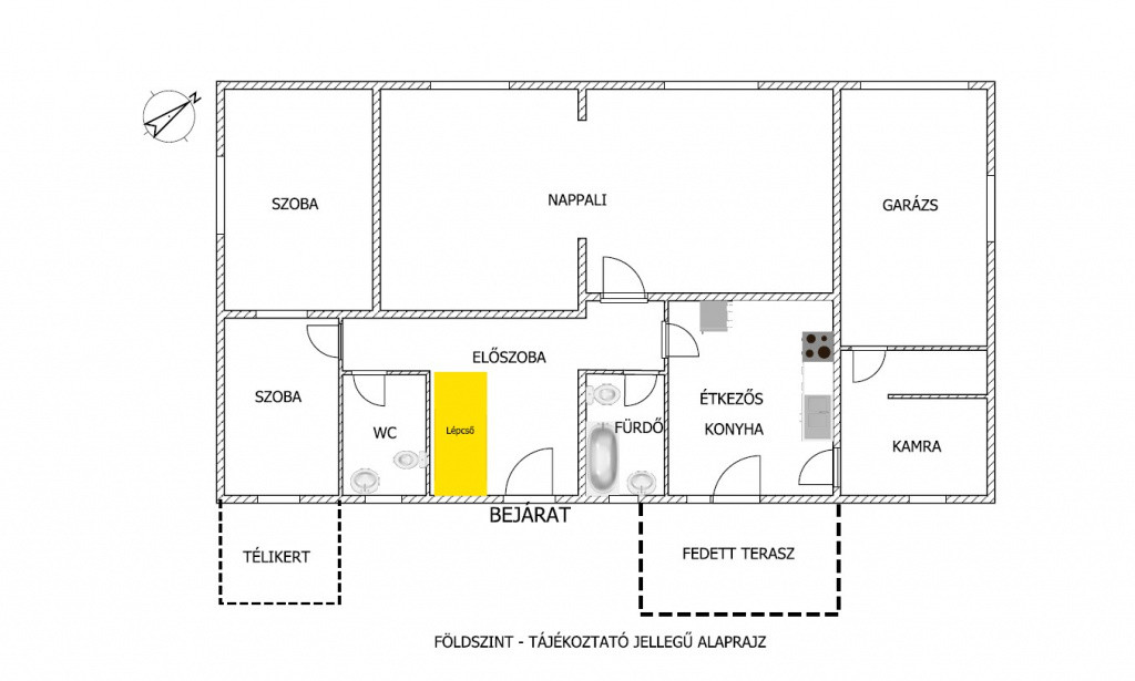
Az épületben található helyiségek: nappali plusz 3 szoba, étkezős konyha teraszkapcsolattal, kádas fürdőszoba WC-vel, előszoba, kézmosó WC-vel és kazánnal, közlekedők, éléskamra, tároló, garázs. A helyiségek burkolatai (járófelületek, falak, mennyezetek) jó állapotúak.
Kiemelt figyelmet érdemel a hatalmas (közel 40 nm-es!) nappali, melyben az épített fatüzelésű kandalló, és a szintén épített bársarok remekül szolgálja az akár nagyobb létszámú családi összejövetelek hangulatát. A belsőépítészeti megoldásoknak és a közel 3 méteres belmagasságnak köszönhetően az újabb építésű házrész lakóhelyiségei nagyon kellemes, különleges hangulatot árasztanak.
Az előkertnek, masszív tégla falaknak és a dupla üvegezésű ablakoknak köszönhetően az épületben nem hallatszik az utcai forgalom zaja. A hangulatos, gondozott – részben örökzöld, részben lombhullató növényekkel díszített – kert, és a konyhából is megközelíthető terasz a csend oázisa. Az épület mellett egy kis – csupa üveg – télikert is a kikapcsolódást szolgálja.
A telek belső sarkában, a növények közé rejtve található egy kis (kb. 8 nm-es), jelenleg kerti tárolóként használt tégla épület. Az új tulajdonos ebben akár egy szaunát is kialakíthat magának.
Gépkocsi elhelyezéséhez rendelkezésre áll az alaprajzon is feltüntetett garázs, valamint mellette egy gépkocsi beálló. Ezen túlmenően az épület előtt is lehet parkolni. A környéken az utcai parkolás ingyenes.
Az ingatlan infrastrukturális adottságai kedvezőek, köszönhetően többek között a Lőrinci Piac vagy éppen egy SPAR üzlet közelségének is. Gyalogosan 10-15 perc alatt elérhető minden olyan szolgáltatás, amely a napi életvitelhez szükséges: óvoda, iskolák (általános és közép), egészségügyi intézmények, élelmiszer üzletek stb.
Tömegközlekedéssel a KÖKI terminálhoz (bevásárlóközpont, MÁV állomás, autóbusz csomópont) 15 perc alatt, az M3 metró Határ úti állomásához (Shopmark Bevásárlóközpont és számos kisebb üzlet) pedig 30 perc alatt lehet eljutni.
A hirdetésben szereplő irányár ALKUKÉPES.
Amennyiben a fentiek felkeltették az érdeklődését, kérem, egyeztessen velem időpontot, és tekintse meg az ingatlant. Készséggel fogadom a hívását hétvégeken is. Együttműködöm más közvetítőkkel is.
Főbb jellemzők: tehermentes; OTTHON START program; azonnal költözhető; 600 nm-es gondozott telek; 144 nm hasznos alapterületű épület; 4 szoba; akadálymentes; garázs; télikert; terasz; udvari tároló; jó infrastruktúra; kertvárosi környezet; alkuképes ár.
Részleteiben:
Pestszentlőrincen, a Lőrinci Piac közelében kínálom megvételre ezt a per- és tehermentes, azonnal birtokba vehető ingatlant.
Az ingatlan hitelezhető, az OTTHON START program és a CSOK Plusz is igénybe vehető.
A 600 nm-es összközműves telken elhelyezkedő, 144 nm HASZNOS alapterületű, beton alapzatú, tégla falazatú épület statikailag és szerkezetileg is kifogástalan állapotban van. A jelenlegi alaprajzi elrendezése 1980-ban jött létre, amikor a már meglévő régebbi épületet kibővítették. Az új tetőtér magában foglal egy kb. 25 nm-es tetőtéri szobát, ami mellett tágas teret kínál a további beépítési törekvéseknek.
Az épületen 2014 és 2019 között több felújítást, korszerűsítést végeztek el. Ezek közül a jelentősebbek:
- Rácsatlakoztak a kerületi csatornarendszerre.
- A tető héjazatát kicserélték, és kőzetgyapottal szigetelték.
- Az utca és a szomszéd felőli ablakokat korszerű, dupla üvegezésűekre cserélték, és redőnyökkel is felszerelték azokat. A többi nyílászáró még eredeti, de jó állapotú.
- Korszerű, energiatakarékos kondenzációs kazánt (BOSCH) helyeztek üzembe, egyúttal megfelelő módon kibéleltették a kéményt. Ennek, és a jó minőségű radiátoroknak köszönhetően a fűtési rendszer a saját kategóriájában korszerű.
- Új biztonsági bejárati ajtót építettek be.
Az épületben található helyiségek: nappali plusz 3 szoba, étkezős konyha teraszkapcsolattal, kádas fürdőszoba WC-vel, előszoba, kézmosó WC-vel és kazánnal, közlekedők, éléskamra, tároló, garázs. A helyiségek burkolatai (járófelületek, falak, mennyezetek) jó állapotúak.
Kiemelt figyelmet érdemel a hatalmas (közel 40 nm-es!) nappali, melyben az épített fatüzelésű kandalló, és a szintén épített bársarok remekül szolgálja az akár nagyobb létszámú családi összejövetelek hangulatát. A belsőépítészeti megoldásoknak és a közel 3 méteres belmagasságnak köszönhetően az újabb építésű házrész lakóhelyiségei nagyon kellemes, különleges hangulatot árasztanak.
Az előkertnek, masszív tégla falaknak és a dupla üvegezésű ablakoknak köszönhetően az épületben nem hallatszik az utcai forgalom zaja. A hangulatos, gondozott – részben örökzöld, részben lombhullató növényekkel díszített – kert, és a konyhából is megközelíthető terasz a csend oázisa. Az épület mellett egy kis – csupa üveg – télikert is a kikapcsolódást szolgálja.
A telek belső sarkában, a növények közé rejtve található egy kis (kb. 8 nm-es), jelenleg kerti tárolóként használt tégla épület. Az új tulajdonos ebben akár egy szaunát is kialakíthat magának.
Gépkocsi elhelyezéséhez rendelkezésre áll az alaprajzon is feltüntetett garázs, valamint mellette egy gépkocsi beálló. Ezen túlmenően az épület előtt is lehet parkolni. A környéken az utcai parkolás ingyenes.
Az ingatlan infrastrukturális adottságai kedvezőek, köszönhetően többek között a Lőrinci Piac vagy éppen egy SPAR üzlet közelségének is. Gyalogosan 10-15 perc alatt elérhető minden olyan szolgáltatás, amely a napi életvitelhez szükséges: óvoda, iskolák (általános és közép), egészségügyi intézmények, élelmiszer üzletek stb.
Tömegközlekedéssel a KÖKI terminálhoz (bevásárlóközpont, MÁV állomás, autóbusz csomópont) 15 perc alatt, az M3 metró Határ úti állomásához (Shopmark Bevásárlóközpont és számos kisebb üzlet) pedig 30 perc alatt lehet eljutni.
A hirdetésben szereplő irányár ALKUKÉPES.
Amennyiben a fentiek felkeltették az érdeklődését, kérem, egyeztessen velem időpontot, és tekintse meg az ingatlant. Készséggel fogadom a hívását hétvégeken is. Együttműködöm más közvetítőkkel is.