Eladó Ház- házrész
Hirdetéskód: 9249773
Szi-We Otthona Kft.
Felújításhoz személyi kölcsönt keres? Kalkuláljon itt! →290.00 m2
ALAPTERÜLET9
SZOBASZÁMnincs megadva
ÉPÍTÉSGáz (cirkó)
FŰTÉS- CSOK igénybe vehető nem
- Tetőtér beépíthető nem
- Építés éve 2000
- Fűtés Gáz (cirkó)
- Klíma nem
- Szigetelt nem
A+++
A++
A+
A
B
C
D
E
F
G
H
I
Az ingatlan leírása
Fedezd fel ezt a különleges lehetőséget Budapest 18. kerületében! Ez a kiváló állapotban lévő ház tökéletes választás lehet számodra, ha tágas, kényelmes otthonra vágysz, vagy éppen befektetési céllal keresel ingatlant.
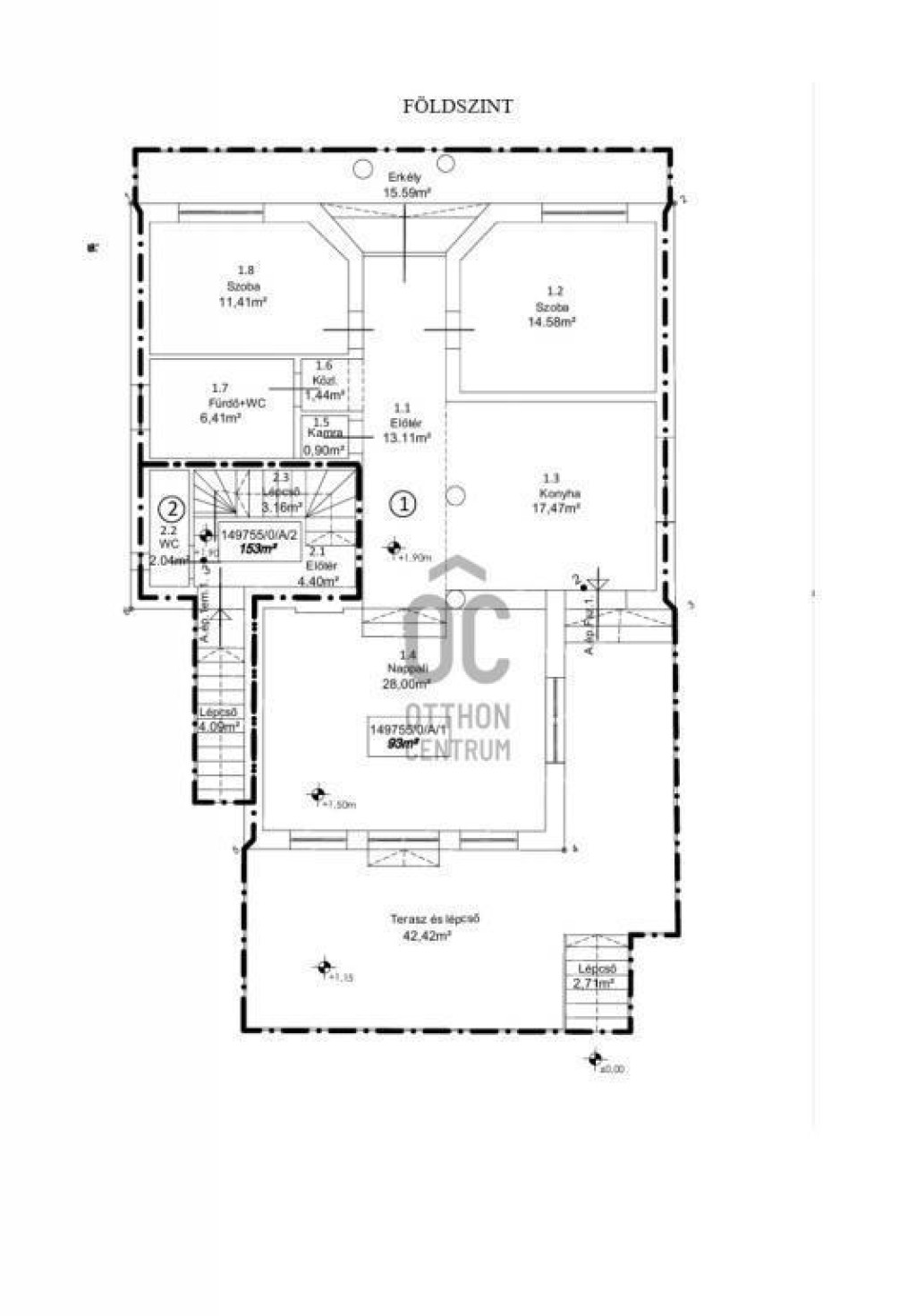
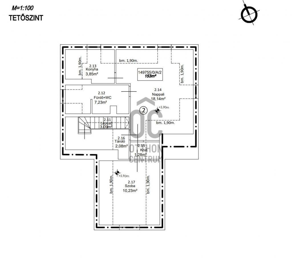
A körbejárható ház egy 745 m2-es telken helyezkedik el, így a kertben bőven van hely a szabadidős tevékenységekre vagy a gyerekek játékára, grillezésre. Az ingatlan lakóterülete 246 m2, ami bőséges teret biztosít a családod számára, itt mindenki megtalálhatja a saját kis zugát. A 42 m2-es terasz csodás lehetőséget kínál a kültéri pihenésre, ahol élvezheted a napsütést vagy a friss levegőt. A főépületben 2 külön bejárattal, 2 generációnak van hely. Az egyik lakás a földszinten lett kialakítva, 2 hálószobával, nagy nappalival, konyha, fürdőszoba wc-vel és egy külön wc-vel. Ebben a lakásban 3 inverteres klíma adja a meleget/hideget. A második lakrész az első emeleten és a tetőtérben kapott helyet. 3 nagy hálószoba, nappali-konyha, közlekedő és egy fürdőszoba wc-vel, illetve egy külön wc is kialakításra került. A tetőtérben 2 nagy szoba, fürdő-wc és egy kis konyha található. A melegről kondenzációs kazán gondoskodik, a melegvizet egy 1000 literes tartályban napkollektor melegít. A harmadik generáció egy külön épületben, a kert hátuljában kapott helyet. Nappali-konyha, hálószoba és fürdőszoba-wc. Ez a lakrész 44 m2-es, gáz cirkó fűtéses. A pince alapterülete 106 m2, de ez is ketté lett osztva. Az ingatlan teljeskörű felújításon esett át, mely jelenleg is zajlik.
Az ingatlan körüli zöldövezetek és parkok ideális helyszínt biztosítanak a családi programokhoz és a szabadidős tevékenységekhez. Ez a ház nem csupán egy ingatlan, hanem egy lehetőség, hogy egy igazán otthonos és barátságos környezetben éld az életed. Legyen szó saját otthonról vagy befektetési lehetőségről, ez az ingatlan minden igényedet kielégíti. Ne habozz, hiszen az ilyen lehetőségek gyorsan elkelnek! Ha kérdéseid lennének, vagy szeretnéd megtekinteni ezt a csodás ingatlant, bátran keress meg!
Referenciaszám: H512314
A körbejárható ház egy 745 m2-es telken helyezkedik el, így a kertben bőven van hely a szabadidős tevékenységekre vagy a gyerekek játékára, grillezésre. Az ingatlan lakóterülete 246 m2, ami bőséges teret biztosít a családod számára, itt mindenki megtalálhatja a saját kis zugát. A 42 m2-es terasz csodás lehetőséget kínál a kültéri pihenésre, ahol élvezheted a napsütést vagy a friss levegőt. A főépületben 2 külön bejárattal, 2 generációnak van hely. Az egyik lakás a földszinten lett kialakítva, 2 hálószobával, nagy nappalival, konyha, fürdőszoba wc-vel és egy külön wc-vel. Ebben a lakásban 3 inverteres klíma adja a meleget/hideget. A második lakrész az első emeleten és a tetőtérben kapott helyet. 3 nagy hálószoba, nappali-konyha, közlekedő és egy fürdőszoba wc-vel, illetve egy külön wc is kialakításra került. A tetőtérben 2 nagy szoba, fürdő-wc és egy kis konyha található. A melegről kondenzációs kazán gondoskodik, a melegvizet egy 1000 literes tartályban napkollektor melegít. A harmadik generáció egy külön épületben, a kert hátuljában kapott helyet. Nappali-konyha, hálószoba és fürdőszoba-wc. Ez a lakrész 44 m2-es, gáz cirkó fűtéses. A pince alapterülete 106 m2, de ez is ketté lett osztva. Az ingatlan teljeskörű felújításon esett át, mely jelenleg is zajlik.
Az ingatlan körüli zöldövezetek és parkok ideális helyszínt biztosítanak a családi programokhoz és a szabadidős tevékenységekhez. Ez a ház nem csupán egy ingatlan, hanem egy lehetőség, hogy egy igazán otthonos és barátságos környezetben éld az életed. Legyen szó saját otthonról vagy befektetési lehetőségről, ez az ingatlan minden igényedet kielégíti. Ne habozz, hiszen az ilyen lehetőségek gyorsan elkelnek! Ha kérdéseid lennének, vagy szeretnéd megtekinteni ezt a csodás ingatlant, bátran keress meg!
Referenciaszám: H512314