Eladó Ház- házrész
Hirdetéskód: 9308587
OTP Ingatlanpont - Takács Zsuzsanna
Felújításhoz személyi kölcsönt keres? Kalkuláljon itt! →110.00 m2
ALAPTERÜLET3
SZOBASZÁMnincs megadva
ÉPÍTÉSElektromos
FŰTÉS- CSOK igénybe vehető nem
- Tetőtér beépíthető nem
- Építés éve 1980
- Fűtés Elektromos
- Klíma nem
- Szigetelt nem
A+++
A++
A+
A
B
C
D
E
F
G
H
I
Az ingatlan leírása
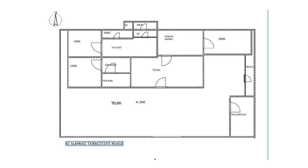
Eladó Budapest XVIII. kerületének kedvelt, családbarát részén, Pestszentlőrincen egy 110 m2-es, részlegesen felújított családi ház 412 m2-es telekkel.
Az ingatlan tágas és praktikus elrendezésű: három szoba + fél szoba, amerikai konyhás nappali, fürdőszoba, külön WC és spejz található benne. A 16 m2-es fedett terasz tökéletes helyszín közös családi pihenésekhez és kerti beszélgetésekhez.
A ház komfortjáról három hűtő-fűtő klíma gondoskodik, illetve H-tarifás besorolása miatt kedvező rezsiköltséget biztosít. A telken nyílt kocsibeálló áll rendelkezésre, így az autóval való beállás megoldott.
Elhelyezkedése kifejezetten előnyös: rövid sétával több buszjárat is elérhető, amelyek négy irányba biztosítanak gyors közlekedést Pesterzsébet, Rákoskeresztúr, Kőbánya-Kispest és Ferihegy Vecsés felé. A környék csendes, mégis központi, teljes infrastruktúrával: óvodák, iskolák, boltok, szolgáltatások könnyen megközelíthetők.
Ideális választás azoknak a családoknak, akik kényelmes, jó elhelyezkedésű, jól alakítható otthont keresnek Pestszentlőrinc szívében.
M323636
Az OTP Ingatlanpont, mint egyetlen közvetlen banki hátterű ingatlanközvetítő társaság teljes körű ügyintézéssel áll az eladók és a vevők rendelkezésére! A kínálatunkból választott ingatlan finanszírozásához minősített fogyasztóbarát, piaci és kedvezményes hitel- és lízingkonstrukciókat kínálunk (lakásvásárlási hitel, CSOK plusz, szabad felhasználású hitel, babaváró hitel, céges hitelek, pályázatok, amennyiben az ügyfél és az ingatlan megfelel a feltételeknek). Az adásvételi szerződés megkötéséhez igény szerint megbízható ügyvédi közreműködést biztosítunk, és segítséget nyújtunk az adásvételhez kapcsolódó egyéb ügyek intézéséhez.
Ha az új ingatlana megvásárlásához a jelenlegi ingatlanát el kell adnia, abban is szívesen segítünk.
Az ingatlan tágas és praktikus elrendezésű: három szoba + fél szoba, amerikai konyhás nappali, fürdőszoba, külön WC és spejz található benne. A 16 m2-es fedett terasz tökéletes helyszín közös családi pihenésekhez és kerti beszélgetésekhez.
A ház komfortjáról három hűtő-fűtő klíma gondoskodik, illetve H-tarifás besorolása miatt kedvező rezsiköltséget biztosít. A telken nyílt kocsibeálló áll rendelkezésre, így az autóval való beállás megoldott.
Elhelyezkedése kifejezetten előnyös: rövid sétával több buszjárat is elérhető, amelyek négy irányba biztosítanak gyors közlekedést Pesterzsébet, Rákoskeresztúr, Kőbánya-Kispest és Ferihegy Vecsés felé. A környék csendes, mégis központi, teljes infrastruktúrával: óvodák, iskolák, boltok, szolgáltatások könnyen megközelíthetők.
Ideális választás azoknak a családoknak, akik kényelmes, jó elhelyezkedésű, jól alakítható otthont keresnek Pestszentlőrinc szívében.
M323636
Az OTP Ingatlanpont, mint egyetlen közvetlen banki hátterű ingatlanközvetítő társaság teljes körű ügyintézéssel áll az eladók és a vevők rendelkezésére! A kínálatunkból választott ingatlan finanszírozásához minősített fogyasztóbarát, piaci és kedvezményes hitel- és lízingkonstrukciókat kínálunk (lakásvásárlási hitel, CSOK plusz, szabad felhasználású hitel, babaváró hitel, céges hitelek, pályázatok, amennyiben az ügyfél és az ingatlan megfelel a feltételeknek). Az adásvételi szerződés megkötéséhez igény szerint megbízható ügyvédi közreműködést biztosítunk, és segítséget nyújtunk az adásvételhez kapcsolódó egyéb ügyek intézéséhez.
Ha az új ingatlana megvásárlásához a jelenlegi ingatlanát el kell adnia, abban is szívesen segítünk.