Eladó Ház- házrész
Hirdetéskód: 9240279
Fővállalkozó Balla és Balla Kft
Ez a hirdetés megfelelhet a FIX 3%-os programnak.
Tudj meg többet a részletekről itt.
142.00 m2
ALAPTERÜLET4
SZOBASZÁMnincs megadva
ÉPÍTÉSnincs megadva
FŰTÉS- CSOK igénybe vehető nem
- Tetőtér beépíthető nem
- Építés éve 1997
- Klíma nem
- Szigetelt nem
A+++
A++
A+
A
B
C
D
E
F
G
H
I
Az ingatlan leírása
CSOK PLUSZRA ÉS EGYÉB JELZÁLOG HITELRE ALKALMAS! AZONNAL KÖLTÖZHETŐ!
Családosok figyelem! Azonnal költözhető, 4 szobás ikerház Rákoskerten – kiváló ár-érték aránnyal!
Budapest XVII. kerületének egyik legkedveltebb kertvárosi részén, Rákoskerten kínálunk megvételre egy 1997-ben épült, kétszintes ikerház-felet, amely ideális választás gyermekes családok számára, akik nyugodt környezetben, mégis kiváló infrastruktúrával szeretnének élni.
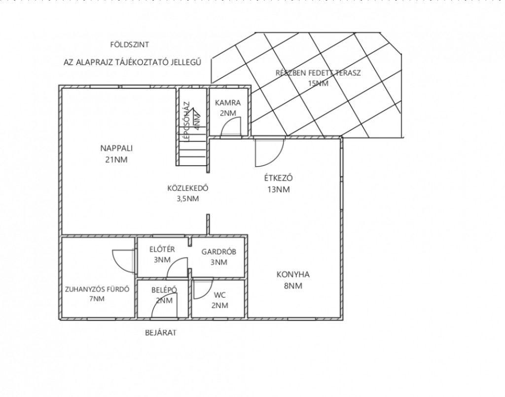
Az ingatlan 123 nm lakóterű, összesen 142 nm alapterülettel, 1+3 külön nyíló szobával, praktikus, jól működő elosztással.
A 311 nm-es saroktelek, a terasz és az erkély valódi kertvárosi életérzést biztosít – tökéletes hely családi reggelekhez, közös vacsorákhoz, gyerekek számára biztonságos kültéri játékhoz.
✔️ Praktikus elrendezés – családi életre tervezve
• Földszinten: előszoba, zuhanyzós fürdő, külön WC, kamra, konyha–étkező rálátás a nappalira, közvetlen kijárattal a 16 nm-es teraszra
• Emeleten: 3 hálószoba, kádas fürdőszoba két mosdóval, külön WC, erkély
• Alápincézett: 1 állásos garázs + tárolás
✔️ Műszaki tartalom – költséghatékony fenntartás
• Kondenzációs gázkazán + villany bojler
• Külön mérőórák
• Kiváló állapotú villanyhálózat
• Műanyag nyílászárók, redőny, részben szúnyogháló
• Légkondicionálás az emeleti szobákban
• D–NY-i tájolás → világos, napfényes terek
✔️ Elhelyezkedés – amit egy család keres
• Iskola, óvoda, orvosi rendelő, gyógyszertár, üzletek 5–10 perces sétával
• M0-ás körgyűrű 5 perc
• Kiváló közlekedés, gyors városi kapcsolat
• Nyugodt, biztonságos kertvárosi környezet
Miért jó döntés?
Ez az ingatlan nem kompromisszum, hanem okos választás:
✔️ jól működő alaprajz
✔️ stabil szerkezet
✔️ azonnal költözhető állapot
✔️ keresett lokáció
✔️ kifejezetten jó ár-érték arány a mérethez és felszereltséghez képest
Teljes műszaki dokumentáció megtekinthető.
Ideális családi otthon azoknak, akik hosszú távra, értékálló környezetben gondolkodnak.
Megtekintésért hívjon most!
Családosok figyelem! Azonnal költözhető, 4 szobás ikerház Rákoskerten – kiváló ár-érték aránnyal!
Budapest XVII. kerületének egyik legkedveltebb kertvárosi részén, Rákoskerten kínálunk megvételre egy 1997-ben épült, kétszintes ikerház-felet, amely ideális választás gyermekes családok számára, akik nyugodt környezetben, mégis kiváló infrastruktúrával szeretnének élni.
Az ingatlan 123 nm lakóterű, összesen 142 nm alapterülettel, 1+3 külön nyíló szobával, praktikus, jól működő elosztással.
A 311 nm-es saroktelek, a terasz és az erkély valódi kertvárosi életérzést biztosít – tökéletes hely családi reggelekhez, közös vacsorákhoz, gyerekek számára biztonságos kültéri játékhoz.
✔️ Praktikus elrendezés – családi életre tervezve
• Földszinten: előszoba, zuhanyzós fürdő, külön WC, kamra, konyha–étkező rálátás a nappalira, közvetlen kijárattal a 16 nm-es teraszra
• Emeleten: 3 hálószoba, kádas fürdőszoba két mosdóval, külön WC, erkély
• Alápincézett: 1 állásos garázs + tárolás
✔️ Műszaki tartalom – költséghatékony fenntartás
• Kondenzációs gázkazán + villany bojler
• Külön mérőórák
• Kiváló állapotú villanyhálózat
• Műanyag nyílászárók, redőny, részben szúnyogháló
• Légkondicionálás az emeleti szobákban
• D–NY-i tájolás → világos, napfényes terek
✔️ Elhelyezkedés – amit egy család keres
• Iskola, óvoda, orvosi rendelő, gyógyszertár, üzletek 5–10 perces sétával
• M0-ás körgyűrű 5 perc
• Kiváló közlekedés, gyors városi kapcsolat
• Nyugodt, biztonságos kertvárosi környezet
Miért jó döntés?
Ez az ingatlan nem kompromisszum, hanem okos választás:
✔️ jól működő alaprajz
✔️ stabil szerkezet
✔️ azonnal költözhető állapot
✔️ keresett lokáció
✔️ kifejezetten jó ár-érték arány a mérethez és felszereltséghez képest
Teljes műszaki dokumentáció megtekinthető.
Ideális családi otthon azoknak, akik hosszú távra, értékálló környezetben gondolkodnak.
Megtekintésért hívjon most!