Eladó Ház- házrész
Hirdetéskód: 9322961
GDN Ingatlanhálózat - Harmónia
Felújításhoz személyi kölcsönt keres? Kalkuláljon itt! →178.00 m2
ALAPTERÜLET6
SZOBASZÁMnincs megadva
ÉPÍTÉSGáz (cirkó)
FŰTÉS- CSOK igénybe vehető nem
- Tetőtér beépíthető nem
- Fűtés Gáz (cirkó)
- Klíma nem
- Szigetelt nem
A+++
A++
A+
A
B
C
D
E
F
G
H
I
Az ingatlan leírása
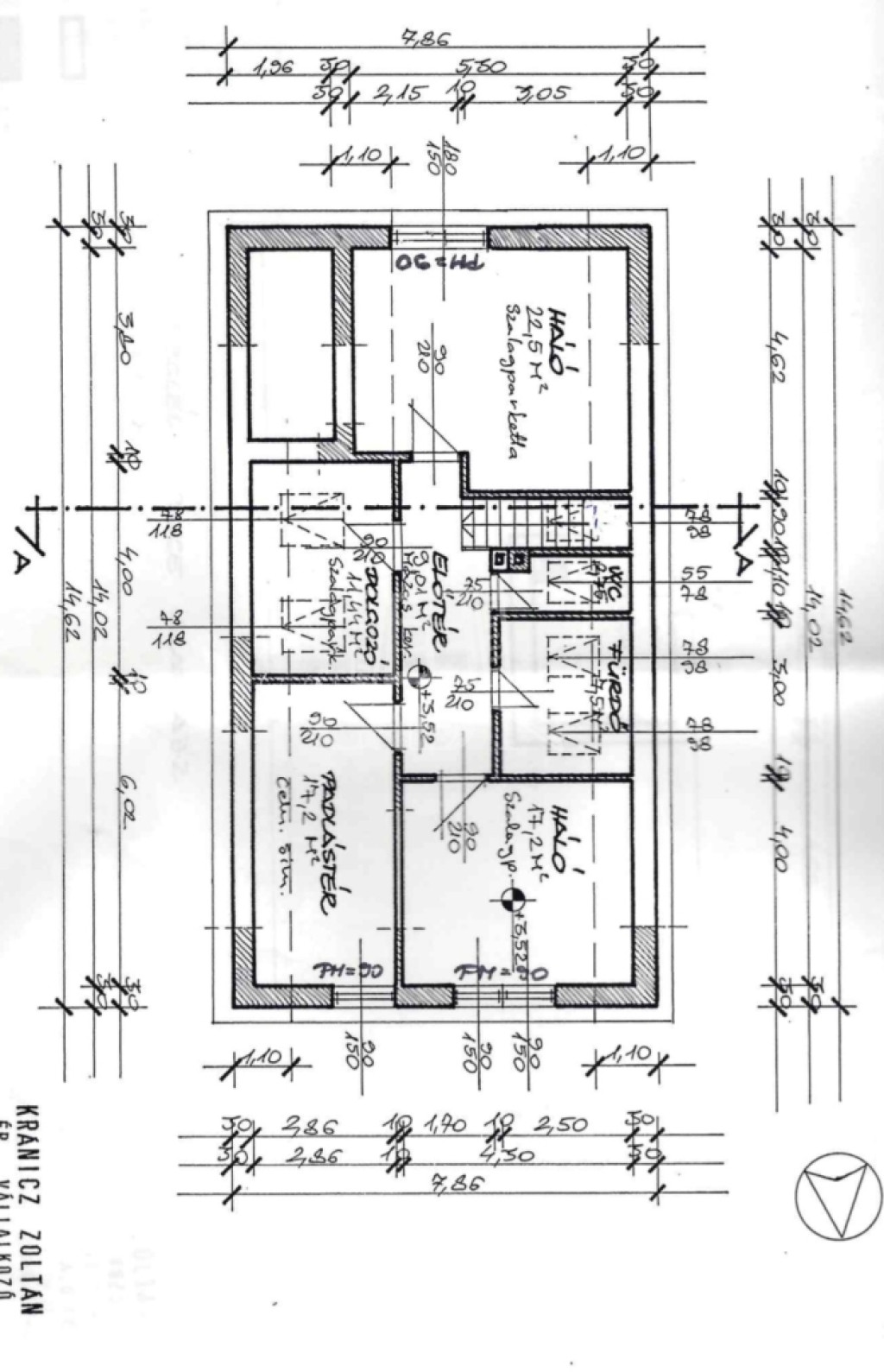
XVII. kerület méltán népszerű kertvárosában, széles utcafronttal, kétállásos garázzsal, fúrt kúttal-öntözőrendszerrel, medencével rendelkező 973 m2-es telken elhelyezkedő, körbejárható, részben alápincézett, tetőtérbeépítéses családi házat kínálok eladásra.
A 178 m2 alapterületű ingatlan földszintjén egy teraszkapcsolatos konyhát, méretes étkezőt, hálószobát, nappalit, fürdőszobát találunk.
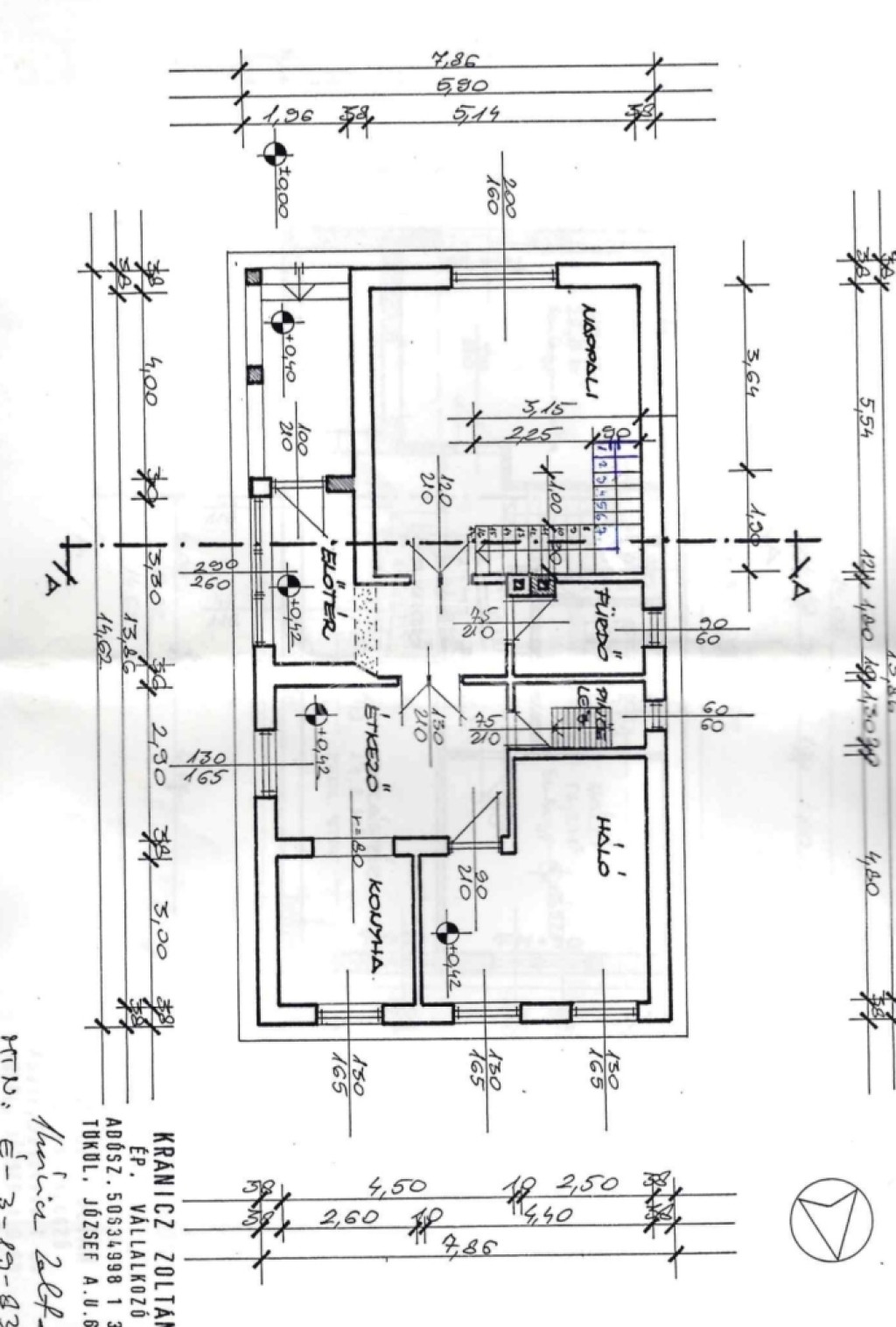
A jól kialakított, kellő belmagassággal rendelkező tetőtérben 4 különnyíló hálószoba, egy sarokkádas fürdőszoba, külön wc-bidével került kialakításra.
Az ingatlan gépészete, műszaki tartalma a költséghatékonyság, kényelem jegyében került kialakításra, aminek része a kondenzációs gázkazán, szobánkénti klímák, többrétegű üvegezéssel rendelkező nyílászárók, elektromos úszó és garázskapu.
A kertváros közelében lévő tömegközlekedési eszközök, üzletek és egyéb szolgáltatások biztosítják a jó ellátottságot.
A rendezett tulajdoni helyzetben lévő, nem lakott ingatlan megtekinthető a hét bármely napján és rövid időn belül birtokba is vehető!
Várom a hívását, akár hétvégén is!
B.Cs. ...TOVÁBBI, TÖBBEZRES INGATLAN KÍNÁLAT: - GDN azonosító: 395076
A 178 m2 alapterületű ingatlan földszintjén egy teraszkapcsolatos konyhát, méretes étkezőt, hálószobát, nappalit, fürdőszobát találunk.
A jól kialakított, kellő belmagassággal rendelkező tetőtérben 4 különnyíló hálószoba, egy sarokkádas fürdőszoba, külön wc-bidével került kialakításra.
Az ingatlan gépészete, műszaki tartalma a költséghatékonyság, kényelem jegyében került kialakításra, aminek része a kondenzációs gázkazán, szobánkénti klímák, többrétegű üvegezéssel rendelkező nyílászárók, elektromos úszó és garázskapu.
A kertváros közelében lévő tömegközlekedési eszközök, üzletek és egyéb szolgáltatások biztosítják a jó ellátottságot.
A rendezett tulajdoni helyzetben lévő, nem lakott ingatlan megtekinthető a hét bármely napján és rövid időn belül birtokba is vehető!
Várom a hívását, akár hétvégén is!
B.Cs. ...TOVÁBBI, TÖBBEZRES INGATLAN KÍNÁLAT: - GDN azonosító: 395076