Eladó Ház- házrész
Hirdetéskód: 9211228
OTP Ingatlanpont Csongrád
100 m2
ALAPTERÜLET4
SZOBASZÁMnincs megadva
ÉPÍTÉSnincs megadva
FŰTÉS- CSOK igénybe vehető nem
- Tetőtér beépíthető nem
- Építés éve 2025
- Klíma nem
- Szigetelt nem
A+++
A++
A+
A
B
C
D
E
F
G
H
I
Az ingatlan leírása
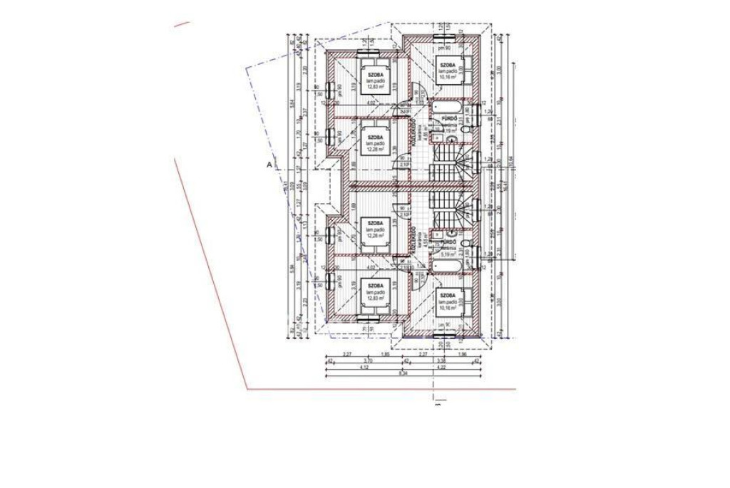
Eladó új építésű ikerház Rákosmentén saját telekrésszel, 3 szoba + nappali, dupla fürdőszobával!
Budapest XVII. kerületének csendes, kertvárosi részén, Rákosmente egyik legkedveltebb utcájában, eladó egy új építésű, igényes kivitelezésű ikerház egyik lakása, saját telekrésszel és nyitott gépkocsi-beállóval!
Elosztás:
3 külön nyíló szoba
Amerikai konyhás nappali
2 fürdőszoba
Előtér, közlekedő, terasz
Műszaki tartalom:
Padlófűtés a nappali konyha étkező előtér zónában (visszatérő ág padlóba tekerve) Minden helyiségben radiátorok is elhelyezve
Lakásonként külön termosztáttal szabályozható elektromos kazán
2 db 80 literes elektromos bojler (fürdőszobák falán elhelyezve)
Energiatakarékos, korszerű megoldások
Extrák:
Nyitott kocsibeálló
Saját telekrész
Kiváló fényviszonyok
Csendes, zöldövezeti utca ,forgalomtól mentes
Júniusi átadás
Lokáció:
Csendes, parkos környék
Közel a Tesco, iskola, óvoda, buszmegálló
Kiváló közlekedés: Pesti útról és a Helikopter útról is könnyen megközelíthető
Kiváló választás családok számára vagy befektetési célra is!
Ha szeretnél modern, kényelmes otthont saját kertkapcsolattal és dupla fürdővel, ne hagyd ki ezt a lehetőséget!
Budapest XVII. kerületének csendes, kertvárosi részén, Rákosmente egyik legkedveltebb utcájában, eladó egy új építésű, igényes kivitelezésű ikerház egyik lakása, saját telekrésszel és nyitott gépkocsi-beállóval!
Elosztás:
3 külön nyíló szoba
Amerikai konyhás nappali
2 fürdőszoba
Előtér, közlekedő, terasz
Műszaki tartalom:
Padlófűtés a nappali konyha étkező előtér zónában (visszatérő ág padlóba tekerve) Minden helyiségben radiátorok is elhelyezve
Lakásonként külön termosztáttal szabályozható elektromos kazán
2 db 80 literes elektromos bojler (fürdőszobák falán elhelyezve)
Energiatakarékos, korszerű megoldások
Extrák:
Nyitott kocsibeálló
Saját telekrész
Kiváló fényviszonyok
Csendes, zöldövezeti utca ,forgalomtól mentes
Júniusi átadás
Lokáció:
Csendes, parkos környék
Közel a Tesco, iskola, óvoda, buszmegálló
Kiváló közlekedés: Pesti útról és a Helikopter útról is könnyen megközelíthető
Kiváló választás családok számára vagy befektetési célra is!
Ha szeretnél modern, kényelmes otthont saját kertkapcsolattal és dupla fürdővel, ne hagyd ki ezt a lehetőséget!