Eladó Ház- házrész
Hirdetéskód: 9320915
Fővállalkozó Balla és Balla Kft
Felújításhoz személyi kölcsönt keres? Kalkuláljon itt! →163.00 m2
ALAPTERÜLET5
SZOBASZÁMnincs megadva
ÉPÍTÉSGáz (konvektor)
FŰTÉS- CSOK igénybe vehető nem
- Tetőtér beépíthető nem
- Építés éve 1961
- Fűtés Gáz (konvektor)
- Klíma nem
- Szigetelt nem
A+++
A++
A+
A
B
C
D
E
F
G
H
I
Az ingatlan leírása
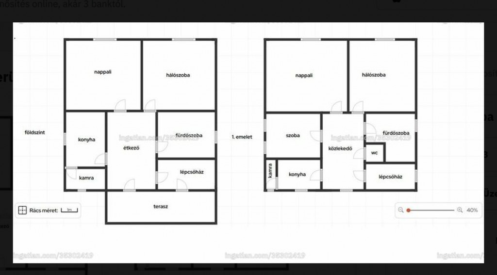
AKADÉMIA ÚJTELEP - 2 LAKÁS - 5 SZOBA - 2 GARÁZS - JÓ ÁLLAPOTÚ
NAGYCSALÁDOSOKNAK - ÖSSZEKÖLTÖZŐKNEK
XVII. kerület legkedveltebb részén - számozott utcákban - kínálok eladásra masszív, részben felújított családi házat.
Az elmúlt években az épületen cserélve lett a tető lécezése, a tető fólia, páraelvezető rendszer lett kiépítve, új Leier Toscana Classic betoncserép fedést kapott. A födémre 20 cm kőzetgyapot, a homlokzatra 12 cm grafitos szigetelés került.
Az emeletre 2 hűtő-fűtő klíma lett telepítve.
Fűtése gázkonvektorral megoldott, meleg vízről villanybojler gondoskodik.
Az ingatlan jelenleg 2 lakásból áll - külön bejárattal.
Az 557 nm-es - locsolórendszerrel ellátott kertben - több pihenésre alkalmas terasz, 2 szerelőaknás garázs és egy fedett kocsibeálló is található.
Tárolásra jó állapotú melléképület és egy 24 nm-es pince szolgál.
Az utca csendes, rendezett kertvárosias, igényes lakóközösség jellemzi.
Infrastruktúrája is kiváló: közelben iskola, óvoda, bevásárlási lehetőségek és tömegközlekedés is elérhető, autóval az M0 körgyűrű gyorsan megközelíthető.
Kérdéseivel, megtekintéssel kapcsolatban, hívjon bizalommal!
NAGYCSALÁDOSOKNAK - ÖSSZEKÖLTÖZŐKNEK
XVII. kerület legkedveltebb részén - számozott utcákban - kínálok eladásra masszív, részben felújított családi házat.
Az elmúlt években az épületen cserélve lett a tető lécezése, a tető fólia, páraelvezető rendszer lett kiépítve, új Leier Toscana Classic betoncserép fedést kapott. A födémre 20 cm kőzetgyapot, a homlokzatra 12 cm grafitos szigetelés került.
Az emeletre 2 hűtő-fűtő klíma lett telepítve.
Fűtése gázkonvektorral megoldott, meleg vízről villanybojler gondoskodik.
Az ingatlan jelenleg 2 lakásból áll - külön bejárattal.
Az 557 nm-es - locsolórendszerrel ellátott kertben - több pihenésre alkalmas terasz, 2 szerelőaknás garázs és egy fedett kocsibeálló is található.
Tárolásra jó állapotú melléképület és egy 24 nm-es pince szolgál.
Az utca csendes, rendezett kertvárosias, igényes lakóközösség jellemzi.
Infrastruktúrája is kiváló: közelben iskola, óvoda, bevásárlási lehetőségek és tömegközlekedés is elérhető, autóval az M0 körgyűrű gyorsan megközelíthető.
Kérdéseivel, megtekintéssel kapcsolatban, hívjon bizalommal!