Eladó Ház- házrész
Hirdetéskód: 9328882
GDN Ingatlanhálózat - GARDEN CITY
Felújításhoz személyi kölcsönt keres? Kalkuláljon itt! →160.00 m2
ALAPTERÜLET4
SZOBASZÁMnincs megadva
ÉPÍTÉSnincs megadva
FŰTÉS- CSOK igénybe vehető nem
- Tetőtér beépíthető nem
- Klíma nem
- Szigetelt nem
A+++
A++
A+
A
B
C
D
E
F
G
H
I
Az ingatlan leírása
ÚJ MEGBÍZÁS – PRÉMIUM MINŐSÉGŰ, ENERGIATAKARÉKOS OTTHON, MEDENCÉVEL – SASHALMI ERDŐ KÖZELÉBEN
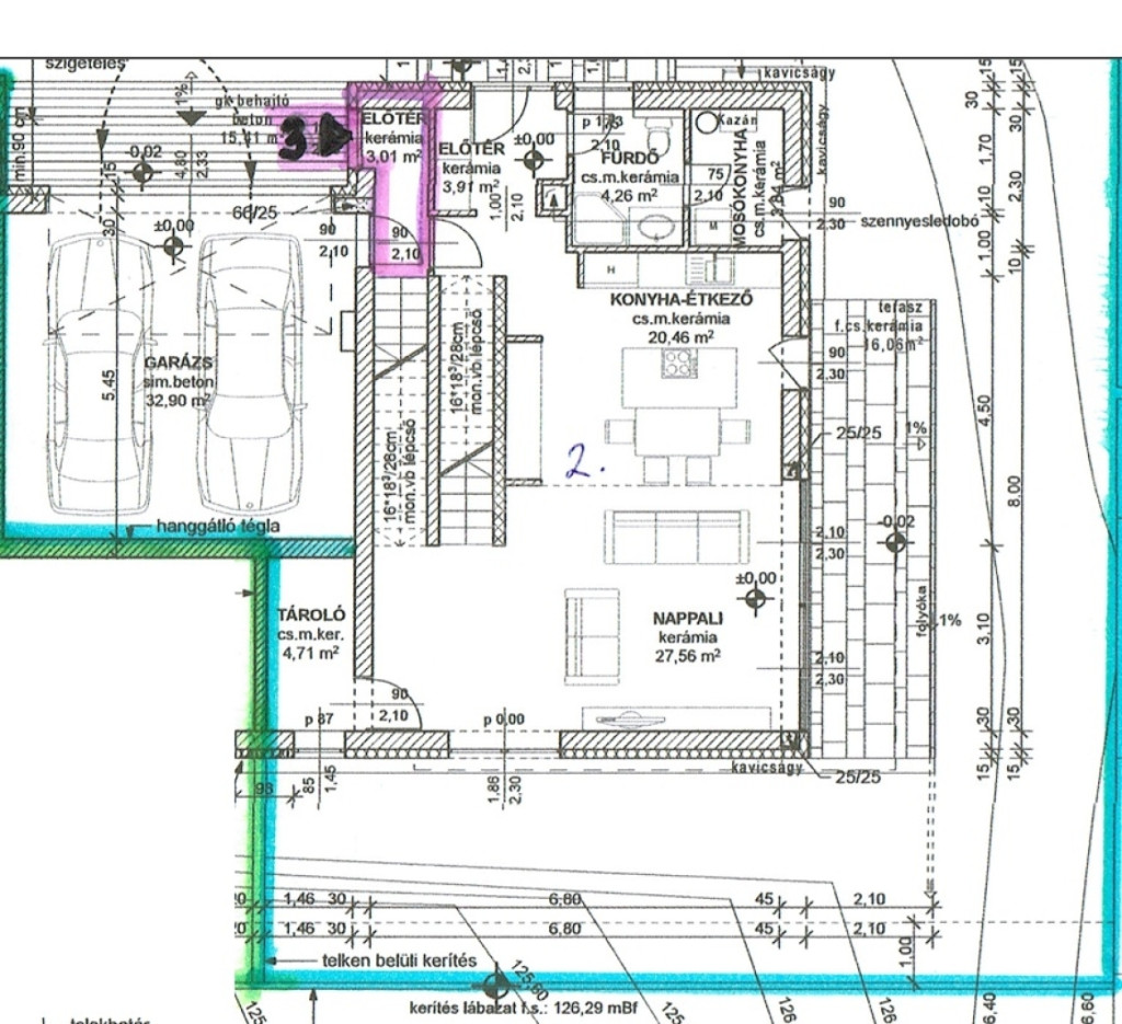
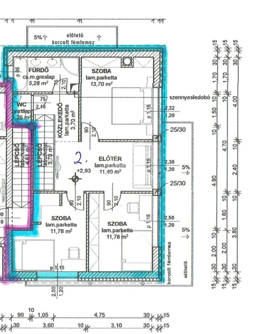
Budapest XVI. kerületében, Sashalom csendes, kertvárosi részén, a Zugló határ közelében kínálunk megvételre egy 160 m²-es, kétszintes, újszerű állapotú családi házat, dupla garázzsal és tágas terasszal.
Ez az ingatlan ideális választás azok számára, akik modern műszaki tartalommal rendelkező, alacsony fenntartású és azonnal költözhető otthont keresnek.
FŐBB JELLEMZŐK
Alapterület: 160 m² dupla garázzsal (32,9 m²)
Terasz: 34 m²
Parkosított kert öntözőrendszerrel
3×6 m-es épített, fűthető medence
A ház jól átgondolt elrendezésű, élhető terekkel rendelkezik, ahol minden funkció kényelmesen elkülönül. A kert és a terasz valódi életteret ad a mindennapokhoz és a kikapcsolódáshoz.
MŰSZAKI TARTALOM
30 cm-es Porotherm tégla falazat
Vasbeton födém mindkét szinten
15 cm homlokzati és aljzatszigetelés
35 cm tető hőszigetelés
3 rétegű, 7 légkamrás nyílászárók
Elektromos alumínium redőnyök szúnyoghálóval
16 kW-os Panasonic All-in-One hőszivattyú
Teljes körű padlófűtés (garázsban is)
Hálószobákban falhűtés
A műszaki tartalom korszerű és energiahatékony megoldásokra épül, ami hosszú távon alacsony fenntartási költséget biztosít. A hőszivattyús rendszer és a kiváló szigetelés együttesen kiemelkedő komfortot ad.
FELSZERELTSÉG ÉS EXTRÁK
Beépített szekrények a hálószobákban
Minden helyiségben külön klíma
Elektromos redőnyök (távirányító + applikáció)
3 zónás riasztórendszer LCD kijelzővel
8 kamerás megfigyelőrendszer mobil eléréssel
Elektromos kapu és garázsajtó
10,2 kW-os napelemrendszer (szaldó elszámolás)
3×25 A villamos teljesítmény
Geo tarifás mérő (3×16 A, kedvezményes áram)
Az ingatlan okosotthon jellegű megoldásokkal felszerelt, ahol több rendszer is távolról vezérelhető. A napelem és a kedvezményes tarifa jelentősen csökkenti a rezsiköltségeket.
REZSI (ÁTALAGOS HAVI KÖLTSÉGEK)
Kb. 30 ezer Ft
A teljesen elektromos rendszer és a napelem kombinációja miatt a fenntartás ebben a kategóriában kiemelkedően kedvezőnek számít.
A rezsi díj tartalmazza a medencefűtést és az öntözőrendszert is.
ELHELYEZKEDÉS
Sashalom csendes, kertvárosi környezet
Zugló közelsége
Iskola, óvoda, bevásárlási lehetőségek a közelben
Jó közlekedés a belváros irányába
A lokáció egyszerre biztosít nyugalmat és kiváló elérhetőséget, ami különösen vonzó családosok számára.
ÖSSZEFOGLALÓ
Újszerű állapot
Magas műszaki színvonal
Alacsony fenntartási költség
Teljes körű felszereltség
Azonnal költözhető
Egy olyan otthon, ahol a modern technológia, az átgondolt kialakítás és a komfort kézzelfoghatóan jelen van a mindennapokban.
Ha egy valóban átgondolt, minőségi otthont keres, érdemes megnéznie – várom hívását, üzenetét. ...TOVÁBBI, TÖBBEZRES INGATLAN KÍNÁLAT: - GDN azonosító: 395246
Budapest XVI. kerületében, Sashalom csendes, kertvárosi részén, a Zugló határ közelében kínálunk megvételre egy 160 m²-es, kétszintes, újszerű állapotú családi házat, dupla garázzsal és tágas terasszal.
Ez az ingatlan ideális választás azok számára, akik modern műszaki tartalommal rendelkező, alacsony fenntartású és azonnal költözhető otthont keresnek.
FŐBB JELLEMZŐK
Alapterület: 160 m² dupla garázzsal (32,9 m²)
Terasz: 34 m²
Parkosított kert öntözőrendszerrel
3×6 m-es épített, fűthető medence
A ház jól átgondolt elrendezésű, élhető terekkel rendelkezik, ahol minden funkció kényelmesen elkülönül. A kert és a terasz valódi életteret ad a mindennapokhoz és a kikapcsolódáshoz.
MŰSZAKI TARTALOM
30 cm-es Porotherm tégla falazat
Vasbeton födém mindkét szinten
15 cm homlokzati és aljzatszigetelés
35 cm tető hőszigetelés
3 rétegű, 7 légkamrás nyílászárók
Elektromos alumínium redőnyök szúnyoghálóval
16 kW-os Panasonic All-in-One hőszivattyú
Teljes körű padlófűtés (garázsban is)
Hálószobákban falhűtés
A műszaki tartalom korszerű és energiahatékony megoldásokra épül, ami hosszú távon alacsony fenntartási költséget biztosít. A hőszivattyús rendszer és a kiváló szigetelés együttesen kiemelkedő komfortot ad.
FELSZERELTSÉG ÉS EXTRÁK
Beépített szekrények a hálószobákban
Minden helyiségben külön klíma
Elektromos redőnyök (távirányító + applikáció)
3 zónás riasztórendszer LCD kijelzővel
8 kamerás megfigyelőrendszer mobil eléréssel
Elektromos kapu és garázsajtó
10,2 kW-os napelemrendszer (szaldó elszámolás)
3×25 A villamos teljesítmény
Geo tarifás mérő (3×16 A, kedvezményes áram)
Az ingatlan okosotthon jellegű megoldásokkal felszerelt, ahol több rendszer is távolról vezérelhető. A napelem és a kedvezményes tarifa jelentősen csökkenti a rezsiköltségeket.
REZSI (ÁTALAGOS HAVI KÖLTSÉGEK)
Kb. 30 ezer Ft
A teljesen elektromos rendszer és a napelem kombinációja miatt a fenntartás ebben a kategóriában kiemelkedően kedvezőnek számít.
A rezsi díj tartalmazza a medencefűtést és az öntözőrendszert is.
ELHELYEZKEDÉS
Sashalom csendes, kertvárosi környezet
Zugló közelsége
Iskola, óvoda, bevásárlási lehetőségek a közelben
Jó közlekedés a belváros irányába
A lokáció egyszerre biztosít nyugalmat és kiváló elérhetőséget, ami különösen vonzó családosok számára.
ÖSSZEFOGLALÓ
Újszerű állapot
Magas műszaki színvonal
Alacsony fenntartási költség
Teljes körű felszereltség
Azonnal költözhető
Egy olyan otthon, ahol a modern technológia, az átgondolt kialakítás és a komfort kézzelfoghatóan jelen van a mindennapokban.
Ha egy valóban átgondolt, minőségi otthont keres, érdemes megnéznie – várom hívását, üzenetét. ...TOVÁBBI, TÖBBEZRES INGATLAN KÍNÁLAT: - GDN azonosító: 395246