Eladó Ház- házrész
Hirdetéskód: 9250382
GDN Ingatlanhálózat - GARDEN CITY
115.00 m2
ALAPTERÜLET3
SZOBASZÁMnincs megadva
ÉPÍTÉSnincs megadva
FŰTÉS- CSOK igénybe vehető nem
- Tetőtér beépíthető nem
- Klíma nem
- Szigetelt nem
A+++
A++
A+
A
B
C
D
E
F
G
H
I
Az ingatlan leírása
CSAK NÁLUNK!
ÚJSZERŰ, NAPELEMES, FŰTHETŐ MEDENCÉS IKERHÁZ ELADÓ SASHALOM KIEMELT RÉSZÉN – ZUGLÓ HATÁRÁN
Prémium műszaki tartalom, alacsony rezsi, kiváló lokáció – itt valóban nincs kompromisszum.
Sashalom egyik legkeresettebb, csendes kertvárosi utcájában, mindössze 100 méterre Zuglótól kínálunk megvételre egy 8 éve épült, újszerű állapotú, bruttó 139 m²-es ikerházat, 332 m²-es, gondozott telken.
Főbb paraméterek:
- Bruttó lakóterület: 139 m²
- Telek területe: 332 m²
- Építés éve: 2017
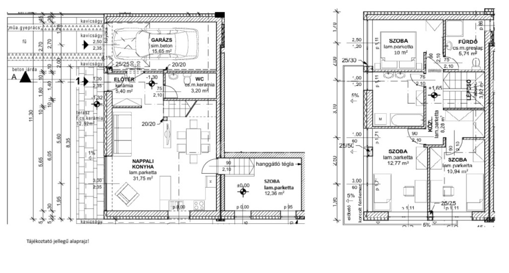
ELRENDEZÉS
Földszint - kertkapcsolattal:
- Világos, délnyugati tájolású nappali–konyha–étkező
- Hálószoba
- Fürdőszoba WC-vel
- Előszoba, közlekedő
- Garázs közvetlenül az előszobából
A nappaliból közvetlen kijárat nyílik a teraszos kertbe, ahol egy
5×3 méteres, beépített, hőszivattyúval fűthető medence,
6 m²-es faház, valamint tűzrakóhely került kialakításra.
A fűthető medence nemcsak a nyári hónapokban, hanem egész évben valódi kikapcsolódást biztosíthat.
A térkövezett udvar két autó parkolását teszi lehetővé.
Az egyedi tervezésű konyhabútor beépített gépekkel, kerámialapos főzőlappal felszerelt.
Emelet:
- 3 különnyíló hálószoba
- Tágas fürdőszoba WC-vel és káddal
- Az egyik hálószobához saját, zuhanyzós fürdőszoba tartozik
Műszaki tartalom, energetika:
- Hőszivattyús fűtés–hűtés rendszer
- Teljes épületben padlófűtés, emeleten kiegészítő falfűtés
- Nyári hűtés: földszinten klíma, emeleten falhűtés
- 14,3 kWh teljesítményű napelemes rendszer, szaldó elszámolással
- Porotherm Klíma tégla falazat, 15 cm homlokzati hőszigeteléssel
A modern műszaki megoldások kedvező energetikai besorolást és alacsony költségeket biztosítanak.
Extrák:
- Riasztórendszer
- Beépített konyhagépek
- Fűthető medence
- Garázs + 2 felszíni gépkocsibeálló
Lokáció és infrastruktúra:
- Bölcsőde, óvoda gyalogosan elérhető
- Iskola, orvosi rendelő, játszótér, bevásárlási lehetőségek pár perces távolságban
Örs Vezér tere
– autóval kb. 5 perc, tömegközlekedéssel ~10 perc
Összegzés
Ez az ingatlan nem kompromisszumos, hanem tudatos választás:
kiváló műszaki tartalom, átgondolt elrendezés, fűthető medencés kert és kitűnő lokáció egyben.
Amennyiben felkeltette érdeklődését, várom hívását vagy üzenetét, és örömmel állok rendelkezésére további információval, illetve személyes megtekintéssel kapcsolatban.
Eladná ingatlanát?
Értékesítésében átgondolt stratégiával, aktív jelenléttel és végigkísért folyamattal állok rendelkezésére.
A hirdetésben szereplő adatok tájékoztató jellegűek, nem minősülnek ajánlattételnek. ...TOVÁBBI, TÖBBEZRES INGATLAN KÍNÁLAT: - GDN azonosító: 391703
ÚJSZERŰ, NAPELEMES, FŰTHETŐ MEDENCÉS IKERHÁZ ELADÓ SASHALOM KIEMELT RÉSZÉN – ZUGLÓ HATÁRÁN
Prémium műszaki tartalom, alacsony rezsi, kiváló lokáció – itt valóban nincs kompromisszum.
Sashalom egyik legkeresettebb, csendes kertvárosi utcájában, mindössze 100 méterre Zuglótól kínálunk megvételre egy 8 éve épült, újszerű állapotú, bruttó 139 m²-es ikerházat, 332 m²-es, gondozott telken.
Főbb paraméterek:
- Bruttó lakóterület: 139 m²
- Telek területe: 332 m²
- Építés éve: 2017
ELRENDEZÉS
Földszint - kertkapcsolattal:
- Világos, délnyugati tájolású nappali–konyha–étkező
- Hálószoba
- Fürdőszoba WC-vel
- Előszoba, közlekedő
- Garázs közvetlenül az előszobából
A nappaliból közvetlen kijárat nyílik a teraszos kertbe, ahol egy
5×3 méteres, beépített, hőszivattyúval fűthető medence,
6 m²-es faház, valamint tűzrakóhely került kialakításra.
A fűthető medence nemcsak a nyári hónapokban, hanem egész évben valódi kikapcsolódást biztosíthat.
A térkövezett udvar két autó parkolását teszi lehetővé.
Az egyedi tervezésű konyhabútor beépített gépekkel, kerámialapos főzőlappal felszerelt.
Emelet:
- 3 különnyíló hálószoba
- Tágas fürdőszoba WC-vel és káddal
- Az egyik hálószobához saját, zuhanyzós fürdőszoba tartozik
Műszaki tartalom, energetika:
- Hőszivattyús fűtés–hűtés rendszer
- Teljes épületben padlófűtés, emeleten kiegészítő falfűtés
- Nyári hűtés: földszinten klíma, emeleten falhűtés
- 14,3 kWh teljesítményű napelemes rendszer, szaldó elszámolással
- Porotherm Klíma tégla falazat, 15 cm homlokzati hőszigeteléssel
A modern műszaki megoldások kedvező energetikai besorolást és alacsony költségeket biztosítanak.
Extrák:
- Riasztórendszer
- Beépített konyhagépek
- Fűthető medence
- Garázs + 2 felszíni gépkocsibeálló
Lokáció és infrastruktúra:
- Bölcsőde, óvoda gyalogosan elérhető
- Iskola, orvosi rendelő, játszótér, bevásárlási lehetőségek pár perces távolságban
Örs Vezér tere
– autóval kb. 5 perc, tömegközlekedéssel ~10 perc
Összegzés
Ez az ingatlan nem kompromisszumos, hanem tudatos választás:
kiváló műszaki tartalom, átgondolt elrendezés, fűthető medencés kert és kitűnő lokáció egyben.
Amennyiben felkeltette érdeklődését, várom hívását vagy üzenetét, és örömmel állok rendelkezésére további információval, illetve személyes megtekintéssel kapcsolatban.
Eladná ingatlanát?
Értékesítésében átgondolt stratégiával, aktív jelenléttel és végigkísért folyamattal állok rendelkezésére.
A hirdetésben szereplő adatok tájékoztató jellegűek, nem minősülnek ajánlattételnek. ...TOVÁBBI, TÖBBEZRES INGATLAN KÍNÁLAT: - GDN azonosító: 391703