Eladó Ház- házrész
Hirdetéskód: 9324669
5100 Jászberény Szentháromság tér 2. - OTP Ingatlanpont Iroda
Felújításhoz személyi kölcsönt keres? Kalkuláljon itt! →
Ez a hirdetés megfelelhet a FIX 3%-os programnak.
Tudj meg többet a részletekről itt.
80.00 m2
ALAPTERÜLET2
SZOBASZÁMnincs megadva
ÉPÍTÉSEgyéb fűtés
FŰTÉS- CSOK igénybe vehető nem
- Tetőtér beépíthető nem
- Építés éve 1984
- Fűtés Egyéb fűtés
- Klíma nem
- Szigetelt nem
A+++
A++
A+
A
B
C
D
E
F
G
H
I
Az ingatlan leírása
Árpádföldön egy igazi lehetőség várja új tulajdonosát - aki nem csak házat, hanem jövőt keres!!!
Kizárólag az OTP Ingatlanpont kínálatában!
Budapest XVI. kerületében, Árpádföldön kínálunk megvételre egy 915 nm-es telekkel rendelkező 80 nm-es családi házat, ahol a természet és a lehetőségek kéz a kézben járnak.
A telken termő gyümölcsfák, tágas tér és nyugalom fogad - ide tényleg jó hazaérkezni.
A jelenleg kétszobás ház könnyedén háromszobássá alakítható, így új tulajdonosa saját igényeire szabhatja - legyen szó családi otthonról vagy akár befektetésről.
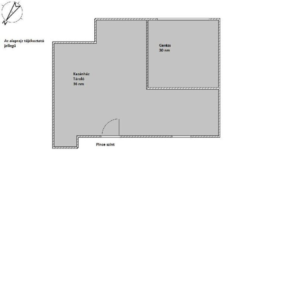
Az ingatlanhoz tartozik garázs és felszíni kocsibeálló is.
Fűtéséről vegyes tüzelésű kazán gondoskodik, nyáron a melegben klíma biztosítja a kellemes hőérzetet.
Ez az ingatlan azoknak szól, akik látnak a falakon túl is, akik szeretnék saját ízlésük szerint formálni otthonukat, és értéket teremteni.
Ha mindig arra vágytál, hogy egy igazi kertvárosi környezetben élj, akkor ezt látnod kell.
Nézzük meg együtt a leendő otthonod, várom hívásod a hét minden napján 9-20 h között.
Ügyfeleink részére ingyenes banki tanácsadással állunk rendelkezésre.
Kizárólag az OTP Ingatlanpont kínálatában!
Budapest XVI. kerületében, Árpádföldön kínálunk megvételre egy 915 nm-es telekkel rendelkező 80 nm-es családi házat, ahol a természet és a lehetőségek kéz a kézben járnak.
A telken termő gyümölcsfák, tágas tér és nyugalom fogad - ide tényleg jó hazaérkezni.
A jelenleg kétszobás ház könnyedén háromszobássá alakítható, így új tulajdonosa saját igényeire szabhatja - legyen szó családi otthonról vagy akár befektetésről.
Az ingatlanhoz tartozik garázs és felszíni kocsibeálló is.
Fűtéséről vegyes tüzelésű kazán gondoskodik, nyáron a melegben klíma biztosítja a kellemes hőérzetet.
Ez az ingatlan azoknak szól, akik látnak a falakon túl is, akik szeretnék saját ízlésük szerint formálni otthonukat, és értéket teremteni.
Ha mindig arra vágytál, hogy egy igazi kertvárosi környezetben élj, akkor ezt látnod kell.
Nézzük meg együtt a leendő otthonod, várom hívásod a hét minden napján 9-20 h között.
Ügyfeleink részére ingyenes banki tanácsadással állunk rendelkezésre.