Eladó Ház- házrész
Hirdetéskód: 9204555
GDN Ingatlanhálózat - Harmónia
130 m2
ALAPTERÜLET5
SZOBASZÁMnincs megadva
ÉPÍTÉSGáz (cirkó)
FŰTÉS- CSOK igénybe vehető nem
- Tetőtér beépíthető nem
- Fűtés Gáz (cirkó)
- Klíma nem
- Szigetelt nem
A+++
A++
A+
A
B
C
D
E
F
G
H
I
Az ingatlan leírása
KIVÉTELES ADOTTSÁGÚ IKERHÁZ REFERENCIÁVAL RENDELKEZŐ BERUHÁZÓTÓL A KIÍRT ÁRON KULCSRAKÉSZEN!
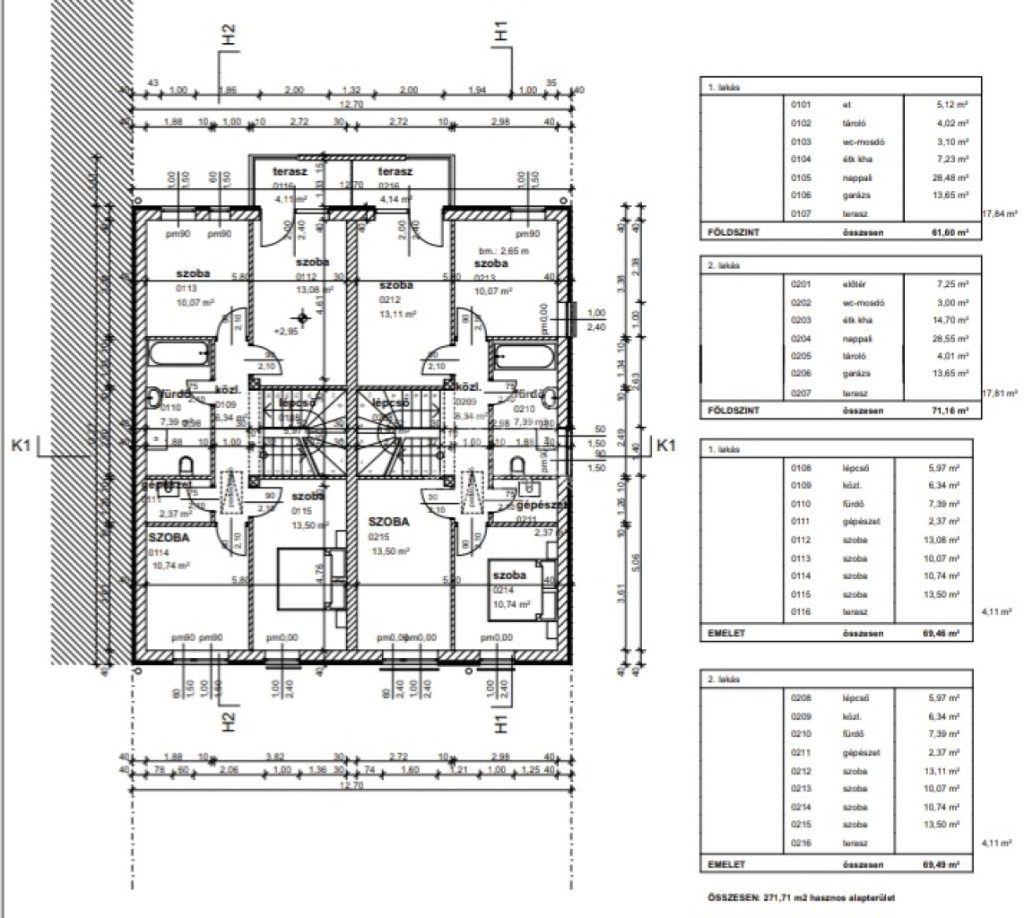
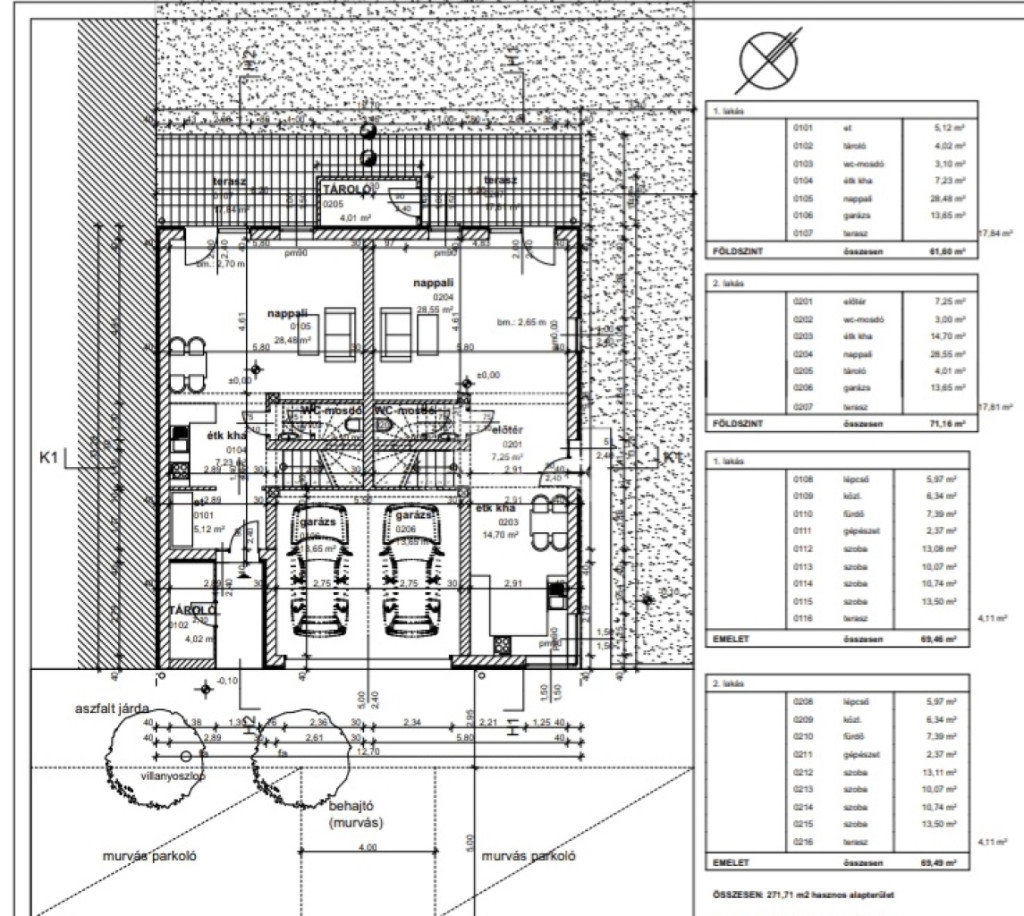
XV. kerület hangulatos kertvárosában, tömegközlekedési eszközök, közintézmények és számos szolgáltatás gyűrűjében kínálok eladásra, egy kitűnő adottságú, 350 m2 -es telken elhelyezkedő, 2025-ös építésű, két szintes, dupla komfortos, magas műszaki tartalommal rendelkező ikerházat.
Pillanatnyilag a ház mindkét lakása elérhető, amik az utcáról, egymástól elszeparáltan megközelíthetőek.
Az 1 lakás 130 m2 alapterülettel, a földszinten garázzsal,wc-vel ,amerikai konyhás-nappalival, az emeleten pedig 4 hálószobával + fürdőszobával került kialakításra.
A 2 lakás nagyobb kertkapcsolattal, 141 m2 alapterülettel, földszinten garázzsal,wc-vel ,amerikai konyhás-nappalival, az emeleten pedig 4 hálószobával + fürdőszobával került kialakításra.
A jelenlegi készültségi állapot lehető teszi, hogy a belső tartalom a vevő igényeihez legyen igazítva.
A tulajdonos a hideg és meleg burkolatokat 10 ezer, a szanitereket 400 ezer, a beltéri ajtókat 100 ezer forintos összeghatárig biztosítja, magasabb vevői igény a különbözet megfizetése után lehetséges.
Az ingatlan megtekinthető a hét bármely napján!
Várom a hívását, akár hétvégén is!
B.Cs. ...TOVÁBBI, TÖBBEZRES INGATLAN KÍNÁLAT: - GDN azonosító: 389333
XV. kerület hangulatos kertvárosában, tömegközlekedési eszközök, közintézmények és számos szolgáltatás gyűrűjében kínálok eladásra, egy kitűnő adottságú, 350 m2 -es telken elhelyezkedő, 2025-ös építésű, két szintes, dupla komfortos, magas műszaki tartalommal rendelkező ikerházat.
Pillanatnyilag a ház mindkét lakása elérhető, amik az utcáról, egymástól elszeparáltan megközelíthetőek.
Az 1 lakás 130 m2 alapterülettel, a földszinten garázzsal,wc-vel ,amerikai konyhás-nappalival, az emeleten pedig 4 hálószobával + fürdőszobával került kialakításra.
A 2 lakás nagyobb kertkapcsolattal, 141 m2 alapterülettel, földszinten garázzsal,wc-vel ,amerikai konyhás-nappalival, az emeleten pedig 4 hálószobával + fürdőszobával került kialakításra.
A jelenlegi készültségi állapot lehető teszi, hogy a belső tartalom a vevő igényeihez legyen igazítva.
A tulajdonos a hideg és meleg burkolatokat 10 ezer, a szanitereket 400 ezer, a beltéri ajtókat 100 ezer forintos összeghatárig biztosítja, magasabb vevői igény a különbözet megfizetése után lehetséges.
Az ingatlan megtekinthető a hét bármely napján!
Várom a hívását, akár hétvégén is!
B.Cs. ...TOVÁBBI, TÖBBEZRES INGATLAN KÍNÁLAT: - GDN azonosító: 389333